JKMM Office JKMM Architects
2016-05-06 03:00
© Marc Goodwin
c.马克·古德温
架构师提供的文本描述。当JKMM建筑师于1998年成立时,其办公室位于赫尔辛基的坎普。2007年底,该办公室迁至拉皮林尼3号(Lapinrinne 3),这是拉乌尔·雷曼(RaoulLehman)1978年设计的一栋办公楼。JKMM在这座大楼的三楼运营了七年多。随着办公室的扩大,决定将设施扩大到同一房地产的前三层。新办公空间的设计于2014年春季开始。该办公室于2015年4月迁至新房地。
Text description provided by the architects. When JKMM Architects was founded in 1998, its office was located in Kamp, Helsinki. At the end of 2007, the office moved to Lapinrinne 3, an office building designed by Raoul Lehman in 1978. JKMM operated from the third floor of this building for over seven years. As the office grew, the decision was made to expand the facilities to the top three floors of the same real estate. The designing of the new office space started in spring 2014. The office moved to the new premises in April 2015.
© Marc Goodwin
c.马克·古德温
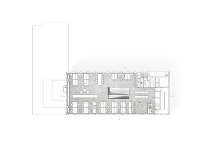
新办公室的主要想法是把三层楼合并成一间有两个直楼梯的空间。楼梯间的开放使楼层在视觉上和功能上统一起来,并在办公室中央创造了一个重要的会议空间。现在工作环境的本质是开放,它支持一种社区意识。所有固定工作站都位于开放式办公空间。附属空间和会议室被隔音玻璃墙和滑动玻璃门与多空间办公环境隔离开来。门框是用芬兰松木做的。宁静而现代的建筑创造了舒适的工作环境。在最底层,办公空间作为屋顶露台向外扩展,可以看到赫尔辛基市中心。
The main idea of the new office was to combine three floors into one space with two straight staircases. The stair opening unites the floors visually and functionally, as well as creates an important meeting space in the middle of the office. Now the essence of the work environment is openness and it supports a sense of community. All of the fixed workstations are located in the open office space. Ancillary spaces and conference rooms have been separated from the multi space office environment by sound proofed glass walls and sliding glass doors. The door frames are made from Finnish pine. The calm and modern architecture creates a comfortable working environment. On the lowest floor, the office space expands outwards as a roof terrace, which has a view of the Helsinki city center.
© Marc Goodwin
c.马克·古德温
中间楼板的开口用碳纤维复合材料加固。中间地板已矫直和涂层水泥涂层,已通过染色。楼梯的扶手和开口是用玻璃做的。经声学处理的纸巾表面已被平滑。一般照明由固定在天花板上的轮廓灯提供。办公室空间地板和天花板上的艺术作品是由平面艺术家Aimo Katajam Ki设计的。这幅画是由办公室的员工自己画的。在新的办公室里,所有的工作站都有符合人体工程学、高度可调的电动工作台。办公空间中的家具是用芬兰的木材和在芬兰手工制作的。该办公室设计的家具由Nikari、aksi和Sa轮puusep t制作。
Openings in the intermediate floor panels have been reinforced with carbon fiber composite. The intermediate floor panels have been straightened and coated with a cement coating that has been dyed through. The handrails of the stairs and the openings are made from glass. The acoustically treated papier-mâché surface has been smoothed. General lighting is provided by profile lights, which are fixed to the ceiling. The art work painted on the floors and ceilings in the office space is designed by graphic artist Aimo Katajamäki. The actual painting was done by the office’s own employees. All work stations have ergonomic, height adjustable electric work tables in the new office. The furniture in the office space is made from Finnish wood and handcrafted in Finland. The furniture designed by the office was crafted by Nikari, AKSI and Saaren puusepät.
© Marc Goodwin
c.马克·古德温
Architects JKMM Architects
Location Helsinki, Finland
Category Offices Interiors
Area 1007.0 sqm
Project Year 2015
Photographs Marc Goodwin

PintereAI








