The House of a Thousand and One Tales Natura Futura Arquitectura

2015-12-14 15:00
架构师提供的文本描述。很久以前,有一个名叫蒙塔沃的小县城,有24,000居民,距遥远国家厄瓜多尔沿海地区的巴巴霍约首府拉班西亚·德洛斯里奥斯20分钟车程。本州为25°C左右的气候,冬季平均年降雨量较高。
Text description provided by the architects. Once upon a time a small county called Montalvo, which had 24,000 inhabitants, 20 minutes from Babahoyo capital city of La provincia de los Rios, in the coastal region of a faraway country called Ecuador. This canton was a climate of about 25 °C with high average annual rainfall in the winter.
 Exploded Isometric
爆炸等距
一天,一个年轻的企业家家庭决定在县城中心建一座房子。就在那里,出现了二元性原则。(二元性总是存在于所有地方(抛光/乡村、空旷/充实、虚构/现实、沉默/噪音、轻盈/重量、轻盈/阴影)底层用裸露的砖块来实现,把乡村作为一种隐喻,用一天的活动动态来比喻;在顶楼,白色色调的包络在夜间加入了其余的被动部分,在构造和hábitat之间找到了一个平衡。
One day a young entrepreneurial family decided to build a house in the center of the county. It was there that appeared the principle of duality. (The duality was always in all places (polished/rustic, empty/full, fiction/reality, silence/noise, lightness/ weight, light/shadow) The ground floor was materialized with exposed brick, taking as a metaphor the rustic with the dynamic of the activities of the day; on the top floor, the envelope of hue with white joined the passive of the rest in the night, finding a balance between tectonics and the hábitat
 © Juan Carlos Donoso
胡安·卡洛斯·多诺索
在设计和施工过程中,以其为主要目标,寻求最小化成本,处理材料和限定各种空间,是利用景观和荒凉对他们的环境作出反应,他们使建筑手工在现场,利用技术和当地的劳动力。
During the process of design and construction, had as its main objective, minimal changes in the search for minimizing the costs, handling of materials and qualify the various spaces, is taken advantage of the views and desolations responding to their environment, they made the construction hand-crafted in situ, using the technique and local labor.
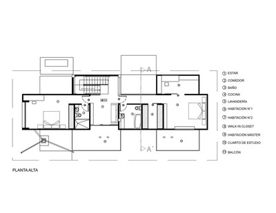
 Floor Plan

                            
 © Juan Carlos Donoso
胡安·卡洛斯·多诺索
 Floor Plan

                            
最终实现了这样一种架构,它邀请我们将构造理解为身份,将栖息地作为一种资源,作为一个故事,能够引发悬念、笑声、兴奋、联系、惊喜或反思,以帮助我们理解我们的意图,即所有这些都是明确和明确的;我们可以接受,我们会发现我们有一个充满可能性和解释混乱的宇宙。
At the end was achieved, an architecture that invites us to understand the tectonics as identity and the habitat as a resource, which function as a story, capable of provoking suspense, laughter, excitement, links, surprises or reflection, to help us to understand our intention that all this clear and defined; and we can accept that we are going to find us with a universe of possibilities and confusion of interpretation.
 © Juan Carlos Donoso
胡安·卡洛斯·多诺索
每个人都在房子上创造自己的真理,洗礼,命名,在试图创造和解释它的历史上留下它的印记,或者创造你自己的故事,…。
Each one creates its truth on the house, the baptizes, puts a name, puts its mark on the attempt to create and account of its history, or create your own story still in it…
 © Juan Carlos Donoso
胡安·卡洛斯·多诺索
 
 
 
 
 
 
 
 
 
 
 
 
 
 
 
 
 
 
 

                    

举报

郁则

什么也没写

1770 作品/ 0 人气

  • 别默默的看了,快登录帮我评论一下吧!:)

    注册 登录

    更多评论

    推荐作品


    相关文章

    下载

    加入到画夹管理

    添加画夹

    提示

    右键保存、高清大图仅支持VIP会员
    名师作品集【专享】
    全网名师最多、更新最快、作品最全
    作品库【无限查阅、一键下载】
    全球最大室内作品库,超33万部
    精品资料【下载】
    全年精品资料更新超1000部
    灵感搜索【原图下载】
    中文搜索全球顶尖案例灵感图
    设计师生活馆【内购价】
    5大电商平台官方合作,专享内购价
    CAD库【模型下载】
    cad单体模型库精准搜索查找下载
    免广告打扰【屏蔽】
    屏蔽全站广告,享受纯净体验
    3D模型【送199币值199元】
    分享全网最新精品3D模型
    名师与资料完善后,价格涨至699元/年