Christ Methodist Church K2LD Architects
2015-06-24 22:00
架构师提供的文本描述。受将传统观念融入当代建筑环境的挑战的启发,K2LD建筑师试图重新想象传统教堂。如何使用新的和不同的空间结构来传播同样的福音。教会的主要愿望归纳为三个要点:对形象、环境责任和多功能空间的需要。
Text description provided by the architects. Inspired by the challenges of bringing traditional ideas around worship into a contemporary architectural context, K2LD architects looked to re-imagine the traditional church. How new and different spatial configurations could be used to preach the same gospel. The main aspirations of the church where distilled into three key points; the need for an image, environmental responsibility, and multifunctional spaces.
© Patrick Bingham Hall
帕特里克·宾厄姆厅
创建图像
Creating an Image
为了回应教会通过强烈的形象向外界传达其使命的需要,一块镶有图案的屏幕创造性地揭示了十字架,体现了当代的敬拜和团契观念。当夜间照明时,小十字架似乎几乎在它的正面跳舞,进一步通知整个皮肤作为教堂和社区的一个图标。
In response to the need of a church to communicate to the outside community its mission through a strong image, a slatted screen innovatively unveils the cross, embodying contemporary notions of worship and fellowship. When illuminated at night, small crosses appear to almost dance across its facade, further informing the entirety of the skin as an icon for the church and community.
© Patrick Bingham Hall
帕特里克·宾厄姆厅
Environment
此外,屏幕正面遮住了来自热带气候的室内空间,并提供了所需的通风。这允许主要的中庭空间保持露天,同时保护不受元素的影响。随着流体波状图案从附近的海洋中汲取灵感,板条状的正面环境轻轻地包围了建筑物,在支持其环境议程的同时,在一个统一的前线后面包含了其谨慎的功能。在新加坡的气候条件下,垂直绿色植物被战略性地放置在东西向的立面上,以实现最佳的生长。
Furthermore, the screen facade shades the interior spaces from the tropical climate and provides needed ventilation. This allows for the main atrium space to remain open air, while being afforded protection from the elements. With fluid wavelike patterns taking inspiration from the nearby sea, the slatted facade condition softly envelops the building, containing its discreet functions behind a unified front while supporting its environmental agenda. Vertical greenery is then strategically placed on the east/west facades for optimal growth in Singapore’s climate.
© Patrick Bingham Hall
帕特里克·宾厄姆厅
多功能程序
Multifunctional Program
该设计着眼于程序的堆叠和它们形成的重叠关系。在入口处,建筑物从地面升起,允许下面的空间流过一楼。这个空间作为一个服务/停车场在溢流时间和露天活动空间。通常转换成一个大的露天餐厅空间,它是用来聚集外的主要礼拜大厅,以补充社区规划。
The design looks to the stacking of programs and overlapping relationships they form. At the entrance, the building is lifted from the ground to allow the spaces below to flow through the first floor. This space acts as a service/car park during overflow hours and open air event space. Often converted into a large open-air dining space, it is used to gather the congregation outside of the main worship halls for additional community programming.
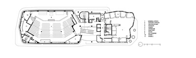
First Floor Plan
一层平面图
Cross Section
Second Floor Plan
二层平面图
然后,循环穿过建筑物的空间;一楼中间的一个大楼梯通过一个由楼板之间不对称的空隙形成的中庭将循环和空气带到上面。这允许垂直地跨各个编程区域维护可视化连接。
Circulation is then weaved through the spaces of the building; A large staircase in the centre of the first floor brings circulation and air up through an atrium formed by asymmetrical voids carved between floor plates. This allows for visual connection to be maintained across various programming areas vertically.
© Patrick Bingham Hall
帕特里克·宾厄姆厅
在二楼和三楼,主要的礼拜空间构成了建筑的心脏,中庭被注入其中。礼堂以礼堂的形式布置,目的是将观众定位于牧师,使观众更接近舞台。在第四层和第五层的上方是教育空间,这些空间得益于屋顶露台和室外游乐空间。
The main worship spaces form the heart of the building on the second and 3rd floors with the atrium feeding into it. Arranged in an auditorium style, the worship hall aims to orientate the audience to the minster, bringing its audience closer to the stage. Above on the 4th and 5th floors lie the education spaces which benefit from roof terraces and outdoor play spaces.
© Patrick Bingham Hall
帕特里克·宾厄姆厅
Architects K2LD Architects
Location East Coast Parkway, Singapore
Category Churches
Area 3953.0 sqm
Project Year 2013
Photographs Patrick Bingham Hall

PintereAI








