新作 . 小隐建筑|藏在川南山野的宝藏秘境,泸州梨花村·不在山林 首
2025-10-10 22:58
 
                                                                                                                     
                                                            梨花包裹的山林 ©形在空间
一瓣梨花,叩开一方院落:
隐匿于百年梨园的山野生活美学
从泸州市区驱车不过二十分钟,喧嚣便悄然退去。在蜀中名山方山的怀抱中,面对一片幽深的山谷梨园,
「不在山林」
安然栖居。此地是泸州江阳区的梨花村,村内植有梨树四万余株,其中百年古树逾千,春日梨花如雪,故名于此。背靠的方山,是蜀东南佛教发祥地,山巅始建于唐的云峰寺中,供奉着全国唯一一尊
黑脸观音
,为这片山野更添一分禅意与神秘
 
                                                                                                                     
                                                             
                                                                                                                     
                                                            梨花中的不在山林 ©形在空间
建筑及室内设计均由小隐建筑出品,延续了小隐建筑一直以来乡野建筑营造的基调,低调内敛而又特立独行,适宜的融于山林之中。川南民居与现代建筑的结合,辅以当地元素的点缀,将东方美学洒落在这片川南山野之中,山林、山花、雨雾、晚霞的浸润,赋予了不在山林诗意与灵气,在山野间演绎阴翳之美。
 
                                                                                                                     
                                                            梨花中的不在山林 ©小隐建筑
 
                                                                                                                     
                                                            梨花中的不在山林 ©形在空间
 
                                                                                                                     
                                                            梨花中的不在山林 ©小隐建筑
春光正好,山林被漫山雪白的梨花包裹着,三月的风还夹着柔情,轻抚山林,白色花瓣随风起舞,整个山谷都弥漫着春天的味道。
 
    
                                                                                                                     
                                                            梨花中的不在山林 ©形在空间
一片花瓣晃晃悠悠掉在宽阔的瓦屋面上,不经意间,轻叩出一方庭院,梨花小院就这样诞生了。
 
    
                                                                                                                     
                                                            梨花瓣砸出的院子 ©存在建筑
 
    
                                                                                                                     
                                                            梨花瓣砸出的院子 ©小隐建筑
 
    
                                                                                                                     
                                                            梨花瓣砸出的院子 ©存在建筑
 
    
                                                                                                                     
                                                             
    
                                                                                                                     
                                                             
    
                                                                                                                     
                                                            建筑原貌
停车信步,沿着巨石的指引拾阶而上,隔着粗粝的石墙,便窥见院子的侧脸。
 
    
                                                                                                                     
                                                            隔着石墙望见不在山林 ©形在空间
 
    
                                                                                                                     
                                                            不在山林屋檐局部 ©形在空间
 
    
                                                                                                                     
                                                            不在山林屋檐局部 ©存在建筑
 
    
                                                                                                                     
                                                            不在山林屋檐局部 ©形在空间
踏过石板桥,穿过阴蔽狭窄的石巷,迎头撞见空中白色的观景台挂在幽远苍翠的幕布之前。
 
    
                                                                                                                     
                                                            石巷的框景 ©形在空间
步入梨花小院,一条柔美的曲线屋檐将视线引向天空,又转向地面。顺着屋檐转身望去,开阔的山谷尽收眼底。扑面而来的巨幅画卷和隐蔽的入口形成了强烈的反差,这种曲径通幽处的豁然开朗让人心旷神怡。
 
    
                                                                                                                     
                                                            院子的曲线屋檐 ©形在空间
 
    
                                                                                                                     
                                                            梨花瓣院子 ©存在建筑
 
    
                                                                                                                     
                                                            梨花瓣院子 ©存在建筑
 
    
                                                                                                                     
                                                            曲线屋檐框出的晚霞 ©存在建筑
 
    
                                                                                                                     
                                                            院子里俯瞰梨园山谷 ©形在空间
入院后的身心
自然松弛
看似随意的窗洞、廊架和隙口,都精心框取着一幅幅如画山色,画随人动。
 
    
                                                                                                                     
                                                            院子里的框景 ©形在空间
 
    
                                                                                                                     
                                                            院子里的框景 ©形在空间
 
    
                                                                                                                     
                                                            院子里的框景 ©形在空间
 
    
                                                                                                                     
                                                            院子里的框景 ©形在空间
树林摇曳发出莎莎的声响,清晨的鸟语、白日的虫鸣、夜晚的蛙声挂满山林,正是“树林阴翳,鸣声上下”,萦绕在充满梨香的空气中,更透着些许山野禅意。
 
    
                                                                                                                     
                                                            层层递进的院子景观 ©形在空间
 
    
                                                                                                                     
                                                            清晨的不在山林 ©形在空间
 
    
                                                                                                                     
                                                            白日的不在山林 ©形在空间
 
    
                                                                                                                     
                                                            白日的不在山林 ©存在建筑
 
    
                                                                                                                     
                                                            白日的不在山林 ©存在建筑
 
    
                                                                                                                     
                                                            夜晚的不在山林 ©存在建筑
 
    
                                                                                                                     
                                                            夜晚的不在山林 ©存在建筑
偶得幽闲境,遂忘尘俗心。
始知真隐者,不必在山林。
 
    
                                                                                                                     
                                                            夜晚的不在山林 ©形在空间
 
    
                                                                                                                     
                                                            夜晚的不在山林 ©形在空间
 
    
                                                                                                                     
                                                            夜晚的不在山林 ©小隐建筑
不在山林,以诗而名,山野入画
闲时,煮茶独饮
坐看山间四时变幻
亦或,三五好友
诗书相伴,静享流年
 
    
                                                                                                                     
                                                            不在山林院子局部 ©形在空间
 
    
                                                                                                                     
                                                            不在山林后院局部 ©形在空间
 
    
                                                                                                                     
                                                            不在山林后院局部 ©形在空间
 
    
                                                                                                                     
                                                            不在山林后院局部 ©形在空间
置身山林,自在松弛
以茶为伴,食山之野
鸟语蝉鸣,听风阅书
在这方乡野的山林间
感受它独有的避世感
栖居在白居易悠然闲适的诗中
 
    
                                                                                                                     
                                                            不在山林院子局部 ©存在建筑
 
    
                                                                                                                     
                                                            不在山林屋面局部 ©小隐建筑
 
    
                                                                                                                     
                                                            不在山林屋面局部 ©小隐建筑
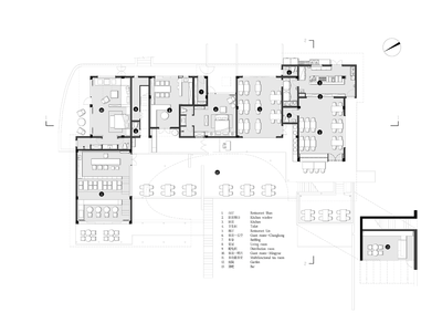
「不在山林」仅打造
间客房,每间客房各具特色。粗犷原生的小酒吧,精致素雅的餐厅、茶室,惬意野趣的户外汤池,满足不同客群的出行需求。一件家具、一扇窗、一束花、一缕光
..……
没有繁复的装修,却处处尽显东方美学。
 
    
                                                                                                                     
                                                            不在山林客房·明月 ©形在空间
 
    
                                                                                                                     
                                                            不在山林客房·明月 ©形在空间
 
    
                                                                                                                     
                                                            不在山林客房·明月 ©形在空间
 
    
                                                                                                                     
                                                            不在山林客房·望岳 ©形在空间
 
    
                                                                                                                     
                                                            不在山林客房·望岳 ©形在空间
 
    
                                                                                                                     
                                                            不在山林客房·望岳 ©形在空间
 
    
                                                                                                                     
                                                            不在山林客房·青云 ©形在空间
屋顶铺设传统小青瓦,户外地面满铺当地青石板,原石砌筑的院墙,暖白色的稻草漆外墙,木结构屋架,将传统川南建筑的神韵勾勒出来。
 
    
                                                                                                                     
                                                            不在山林餐厅 ©形在空间
 
    
                                                                                                                     
                                                            不在山林餐厅 ©形在空间
 
    
                                                                                                                     
                                                            不在山林餐厅 ©形在空间
 
    
                                                                                                                     
                                                            不在山林餐厅 ©形在空间
 
    
                                                                                                                     
                                                            不在山林餐厅 ©形在空间
 
    
                                                                                                                     
                                                            不在山林餐厅 ©形在空间
 
    
                                                                                                                     
                                                            不在山林餐厅 ©形在空间
整个建筑基本保留原有民房的空间格局,屋顶的彩钢棚取而代之是一个大悬挑的白色观景台,似一片白色花瓣飘在空中,赋予了不在山林独特的形象识别性。观景台不仅可俯瞰整个梨园山谷,更是观看山林日落的绝佳场所。
 
    
                                                                                                                     
                                                            不在山林茶室 ©形在空间
 
    
                                                                                                                     
                                                            不在山林酒吧 ©形在空间
 
    
                                                                                                                     
                                                            不在山林酒吧 ©形在空间
 
    
                                                                                                                     
                                                            不在山林泡池 ©形在空间
宽阔巨大的瓦屋面将一层建筑串联成一个整体,梨花瓣砸出的异形庭院为人们带来更加生动有趣的山野生活。置身山林,或是漫步山林之后,一切都悠然自得。
 
    
                                                                                                                     
                                                            观景台俯瞰梨园山谷 ©形在空间
 
    
                                                                                                                     
                                                            观景台俯瞰院子 ©形在空间
 
    
                                                                                                                     
                                                            不在山林后院局部 ©形在空间
室内整个空间延续了阴翳淡然的气质,淡雅柔和的色调与温润的木材结合,将度假感和自然感巧妙融合在了一起。通透的落地门窗将室外自然引入室内,每一个角落都散发出不动声色的拙雅之美。
 
    
                                                                                                                     
                                                            不在山林后院局部 ©形在空间
 
    
                                                                                                                     
                                                            餐厅廊下望向院子 ©形在空间
 
    
                                                                                                                     
                                                            餐厅望向院子 ©形在空间
 
    
                                                                                                                     
                                                            远眺观景台 ©形在空间
 
    
                                                                                                                     
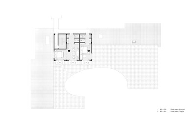
                                                            1F
 
    
                                                                                                                     
                                                            2F
 
    
                                                                                                                     
                                                            RF
 
    
                                                                                                                     
                                                            正立面 背立面
 
    
                                                                                                                     
                                                            侧立面
 
    
                                                                                                                     
                                                            剖面
建筑主创团队|小隐建筑事务所
主持建筑师|潘友才
设计总监|杨喆(合伙人)
技术总监|陈仁振(合伙人)
设计团队|杨锐、胡沁梅、赵亚线、苟源君
施工图团队|成都美厦建筑设计有限公司
业主单位|泸州市江阳区丹林镇人民政府
施工单位|泸州兴阳建川实业有限公司
摄影|存在建筑
建筑摄影、形在空间摄影、小隐建筑
撰文|潘友才
项目地址|中国 四川省 泸州市江阳区梨花村不在山林
建筑面积|
590
建筑材料|白色真石漆、钢化单银中空超白玻璃、钢结构(木纹漆)、实木椽条、实木望板、小青瓦、氟碳漆
建成时间|
2024
12
 
    
                                                                                                                     
                                                            陈仁振、杨喆、潘友才(左至右)
小隐建筑事务所主创团队
 
    
                                                                                                                     
                                                            2015年4月小隐建筑创立于中国成都。意象建筑论的开创者和践行者,意象建筑流派的先锋代表。将创造全新多维空间体验,营造具有感情和生命力的诗意空间环境作为核心理念。小隐建筑秉承“以意赋象,以象见意”,诗画创作结合东方哲学思考的建筑创作方法。意象作为人与自然相通的媒介,是一种“场景化”的存在,包含了现实与想象。意象建筑以自然和人文意象中提炼出来的原型构建场景,赋予建筑强烈的可读性和可识别性,进而形成叙事性的建筑空间,表达出特定的审美观点和艺术性的文化共情感,实现建筑的艺术升华。在建筑实践中追求美学性和适用性的平衡,保证建筑的功能要求和视觉效果的同时,最大限度地满足人们的精神审美需求。意象建筑希望将建筑转化为一种“建筑形象语言”,让建筑能同文字一样,被大众更容易地解读理解,为抽象的理论概念变为具体新颖的设计表述,带来了新的思路和可能性,力图成为中国文化及文明的传播者和创造者。
部分作品
 
    
                                                                                                                     
                                                             
    
                                                                                                                     
                                                             
    
                                                                                                                     
                                                            泸州·叙永·山岫茶宿
 
    
                                                                                                                     
                                                             
    
                                                                                                                     
                                                             
    
                                                                                                                     
                                                            △西藏·怒江72拐大峡谷景区
 
    
                                                                                                                     
                                                             
    
                                                                                                                     
                                                             
    
                                                                                                                     
                                                            宜宾·竹枝书院









 
             
                       
                                 
                                 
                                                 
                                             
                                         
                                                                                 
                                                     
                                                     
                                                     
                                         
                                         
                                         
                                         
                                         
                                         
                                         
                             
                     
             
                        
                    
 
            
        
