藤井厚二,珍藏一段旧时光 首
2025-10-14 19:44
Shokohara, Mariko Taya
在现代运动尚处于萌芽期的时代,有这样一位日本建筑师,他洞悉历史与现代主义的本质,以一种温柔的抵抗去应对盲目推崇西方流行的设计环境,展开了一场关于“理想住宅”的极致探索。这位与勒·柯布西耶同时代的建筑师不是别人,正是环境工程的先驱者
——
藤井厚二。
△藤井厚二
藤井厚二于
1888
年出生在一个条件优渥的金融世家,除了建筑之外,他也十分热爱茶道、插画、划船等日本传统活动与西方传入的服装、汽车和其他近现代的娱乐项目。在家庭的支持下,他不仅自费前往欧美展开了近一年的学习旅行,也多次于日本购买土地并设计住宅,致力于实验适合日本居住环境的住宅风格。
八木邸
在藤井厚二现存的建筑作品中,私人住宅占据了很大的比重。他对西方住宅和日本传统设计进行比较学习,推翻了明治维新后对西方模式的刻板模仿,强调历史人文、风俗习惯以及地域气候之于建筑的重要性。他的环境工程研究实践在自宅聴竹居的设计中得到完美的实现,并通过文字著作《日本の住宅》和图文合集《聴竹居図案集》的多种译本,向世界传播了日式住宅的魅力。
△小川邸
Shokohara, Mariko Taya, Takeru Koroda
2022
年重新开放参观的旧喜多源逸邸是藤井厚二在
1926
年为其同事设计的一座双层木结构瓦顶住宅,建筑的外观设计简洁而深邃,错落有致的挑檐和屋顶层次组成了一幅复杂而典雅的视觉构图,充分展现了日本传统美学以及玻璃等现代材料的融合运用。
Shokohara, Mariko Taya, Takeru Koroda
在住宅内部,可以清晰地感受到藤井厚二对于环境理念、理想住宅的思考与诠释,从开放式的走廊、视线齐平的榻榻米和座椅,到专为观赏京都五山送火的活动而设计的二楼小室,无不彰显着他对实际居住体验的洞察与精准表达。如今,这个日式与西洋共生的空间成为了一个用于收集展示实用艺术和北欧家具的画廊,面向游人开放参观。
Shokohara, Mariko Taya, Takeru Koroda
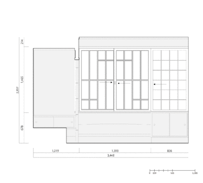
平面图
八木夕菜
坐落在天王山脚下的聴竹居大约修建于
100
年前,是藤井厚二为了融合日式与西式的生活方式而设计的一系列实验性住宅之一,也是建筑师本人的理想家园。聴竹居以藤井厚二创立的环境工程学为基础,与追求碳中和的被动式设计理念不谋而合,实现了建筑与自然气候的和谐共存。
八木夕菜,古川泰造,聴竹居倶楽部
从布局角度来看,聴竹居遵循了日本民居自古以来延续的传统,利用滑动的和纸拉门替代墙体来划分空间,以应对不同的使用场景与采光需求。然而不同的是,住宅南侧的核心区域是为家庭成员打造的共享空间,这一设计取代了过去用于待客的“座敷”,更符合现代追求的生活模式。
八木夕菜,古川泰造,聴竹居倶楽部
聴竹居的起居室分为客厅、餐厨空间、阅览室以及阳台,为了使
20
世纪初从西方传入的家具能够和谐地融入日式空间,藤井厚二将客厅的榻榻米抬高了约一英尺(
30.48cm
)的高度,保证坐在椅子或榻榻米上的人能够维持视线交流。而阅览室的空间则配置了在当时看来十分新潮的现代书桌与书架,并巧妙地通过和纸门窗连接客厅与阳台。
八木夕菜,古川泰造,聴竹居倶楽部
日本汉字中的窗写作
,建筑学者普遍认为下半部分的“心”指代内心及精神,而在藤井厚二的空间中,门窗洞口的切割造型也恰好印证了这一点。就窗户的设计而言,其整体造型与视线交互使得原本并不宽敞的空间显得开阔而深邃,在餐厅等多处引导人们看向空间的对角线,为原本严谨的构图增加了一丝不确定性。
八木夕菜,古川泰造,聴竹居倶楽部
住宅的卧室采用双向布局的模式,可由入户门厅和客厅两侧进入走廊。一块雪松木板条贯穿了主卧的天花板,人字纹的编织细节与几何灯饰交相呼应,在工艺上代表着东西方的两种不同文化。正如柯布西耶、密斯、赖特等大师为自己的住宅设计家具那样,藤井厚二也完善了住宅内的所有家具、灯具以及地毯等设计细节,使之成为其理念的物质化象征。
八木夕菜,古川泰造,聴竹居倶楽部
左右滑动查看更多图片
Hiroshi Ueda, Koji Fujii/Nacasa - Partners Inc.
在风景如画的传统日本港口小镇鞆之浦中,隐藏着一座俯瞰海湾风光的古老单层木结构建筑,这是藤井厚二于昭和初期为其兄弟藤井与一右卫门修建的别苑,也是他在当地留下的唯一一件作品。
2014
年,经过长达四年的维修重建后,曾一度荒废的经典再次作为画廊向公众开放,展现以工程学理论为基础的空间美学。
Hiroshi Ueda, Koji Fujii/Nacasa - Partners Inc.
住宅采用传统的梁柱结构和土墙作为空间基础,并使用了十分前卫的水泥瓦片增加屋顶的隔热性,是藤井厚二将现代材料与历史传统相融合的一处证明。而在住宅内部,磨砂玻璃与和纸的组合使用与他的自宅有着异曲同工之妙,不仅可以捕捉瀑布花园的小景,也能用于采光通风,保持舒适的室内温度。
Hiroshi Ueda, Koji Fujii/Nacasa - Partners Inc.

PintereAI








