la maison paysage
2016-08-30 23:01
南特的房屋扩建(法国)
扩建房屋意味着缩小地块的外部空间。我们为“景观屋”开发的项目的主题是归还外部空间。
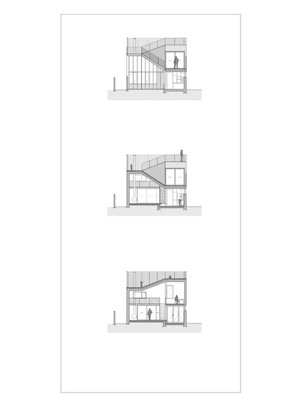
该项目的地点位于南特(法国),位于一座建于圣战军山脊上的地区。这片300平方米的地块底部有一座小房子,这是对这个社区过去的工人的见证。
我们设计了一条由一系列梯田连接而成的小径,形成了一条通往庭院的路线,通往街区中心小城市花园的景观,以及卢瓦尔河南岸的壮丽景色。
这条路径的发展定义了一个表面。这个表面的容积构成了房子的延伸,一系列的居住空间(客厅、厨房、车间)通过倾斜的视图连接起来,通过一个有水平的游戏,没有任何内部门。
与景观的关系是双重的:房子不仅与外部有着各种联系的潜力,而且与材料的工作是室内景观的创造。胶合板的粒状、建筑过程中雨水在金属结构上画出的图案、树脂的莫尔效应或水泥瓷砖的重复图案创造了一个单独的宇宙,就像云彩吸引人沉思一样。
南提斯扩展区(44)
Etenre une maison,c‘espace l’esspace extérieur de la parcelle sur laquelle elle prend place。
Le thème que nous avons dépoppépour
Le Site du Projet se situeàNantes,àCh产前,un quartier Institutionéle sillon de Bret格涅,l‘une des lignes de crète du massif armoricain。La parcelle de 300平方米,enson fond une te maison témoignant du Passéouvrier du quartier。
Nous avons in place un parCours constitu d‘un jeu de terrass coniées pares des gres,formant un itinéraire s’ouvranessur un patio,le paysage des cœurs‘lot et le Grand paysage des rives sud de la loire。
求和曲面。体积原位法
LaMeIn EnEngle 2 Maple的关节AutoDou-Tayo MayngigePar La Read Engle 2卷。
Il enésulte un effet thétral,un fen tre sur patio,autro duquel chaque maison,et le givile de la vie qui s‘y déroule,constitue le premier paysage de son endant。
Un Lilas,une甘氨酸,des Poiriers en espalier et les Multiple Filors qui orent le Patio s‘intercalent avec bonheur dans ce visàvis et lui confèrent une véritable维度végételes。
La maison Paysage-“联合国和平与合作伙伴关系”,Maiségalement un Travail Sur la matière qui constitue la création d‘un Paysage intérieur:le veination du contplaqueé,les motifs dessinés endant le chantier per la pluie sur la Structure métallique,le movage de la réou les motifs répétitifs des carreaux de ciment constitutions un univeres Part entière,au méme meTtre que les nuage dessinent des paysages inassidus and proiceàla conflplation。
Mabire Reich,建筑家
E2C,BET结构
Firm Mabire Reich Architectes
Type Residential › Private House
STATUS Built
YEAR 2015
SIZE 0 sqft - 1000 sqft
Photos Guillaume Satre - Photographe d'architecture
keywordsarchitecture, architecture news, interiors, interior design, portfolio, spec, brands, marketplace, products La maison paysage
关键词建筑,建筑新闻,内饰,室内设计,组合,规格,品牌,市场,产品拉米森报酬
南特的房屋扩建(法国)扩建房屋意味着缩小地块的外部空间。我们为“Landsca.










