paula souza center
2015-07-17 10:30
宝拉·苏扎中心是圣保罗州负责技术教育的机构,共有268所学校和学院。它的社会相关性使邦政府得以在其战略中使用它,在圣保罗市中心地区的Luz社区占领中占一定的一部分。
该项目由政府购置一座面积超过7.000平方米的大楼,最初由仓库、破旧的小房子和一栋七层楼高的建筑组成,这仍然是最后一套建筑中唯一的预先存在的建筑。这是一个独特的机会,与一个完整的街区在城市中心,从而颠倒了该地区的土地逻辑定义的小块土地。
在这样的城市条件下,我们的想法是在这个城市最密集的区域之一建立一个公共空间,一个广场可以整合两种最重要的设备:保罗·苏扎中心总部和一所技术学校。
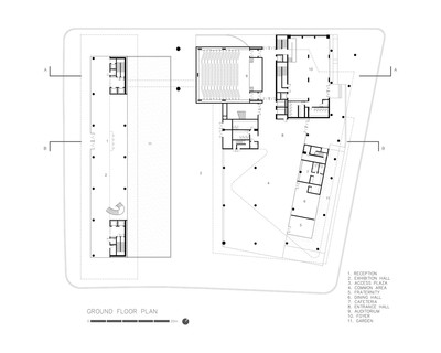
总部大楼由一层长77米5米的层叠体构成,集中了五层的行政管理活动,并在一楼的遗址考古博物馆与街道相联系。其余的建筑都与学校相连;它们形成了一个更多的集合,在广场上的许多层都有清晰的表达,引发了一条长廊-就像街道进了街区一样。
结构,主要是钢筋混凝土,是设计的组织要素,有时以一种表现性的方式出现-比如在悬空的庭院或学校曲折的阁楼的支撑下。基本体系由框架板组成,平均截面40 cm,大写45 cm。金属结构中的一些元素与大量的物质分离:屋顶、人行道和博物馆的阁楼。
该项目的核心要素之一是两个屋顶,在30米的高度连接体积,最多允许在附近。从技术上讲,在这两个屋顶上,结构是由两个纵梁组成,截面为0,95m,跨度可达30米。
插入一台有意成为城市变压器的设备无疑是一种押注,尤其是因为它仍然是一项与该地区更广泛的城市规划脱节的建筑。尽管如此,我们相信,这座城市是通过其重要的事实而形成的-这里我们包括了建筑。
Firm Spadoni AA
Type Commercial › Office Cultural › Cultural Center Educational › High School
STATUS Built
YEAR 2013
SIZE 25,000 sqft - 100,000 sqft
keywords:architecture, architecture news, interiors, interior design, portfolio, spec, brands, marketplace, products Paula Souza Center
关键词:建筑、建筑新闻、室内设计、组合、规格、品牌、市场、产品保拉·苏萨中心
宝拉·苏扎中心是圣保罗州负责技术教育的机构,共有268所学校和学院。它的社交功能.。

PintereAI








