House Behind The Roof Superhelix Pracownia Projektowa

2018-10-09 02:00
架构师提供的文本描述。豪斯位于波兰克拉科夫郊区。这座建筑是由10栋独栋房屋组成的住宅的一部分.该房地产的特点是高地价导致的密集开发。为了保证居民的隐私,房子被隐藏在房顶表面后面的通道和北方邻居的后面。这就解释了屋顶后面的房子的名字。
Text description provided by the architects. House is located in the suburban zone of Krakow in Poland. The building is part of a housing estate consisting of 10 single-family houses. The estate is characterized by dense development resulting from high land prices. In order to ensure the privacy of the residents, the house is hidden from access road and northern neighbors behind the roof surface. This explains the name - House behind the Roof.
Text description provided by the architects. House is located in the suburban zone of Krakow in Poland. The building is part of a housing estate consisting of 10 single-family houses. The estate is characterized by dense development resulting from high land prices. In order to ensure the privacy of the residents, the house is hidden from access road and northern neighbors behind the roof surface. This explains the name - House behind the Roof.
 © Bartlomiej Drabik
c.Bartlomiej Drabik
由于城市的动态发展,越来越多的自然区域被用于开发,因此生态设计方法显得尤为重要。建筑的北部屋顶覆盖着肉质物质,光伏电池被安置在阳光充足的南部地区。
Due to the dynamic development of the city, more and more natural areas are used for development, therefore ecological designing approach was particularly important. The northern roof of the building is covered with succulents and photovoltaic cells were placed on a well-sunlit southern part.
Due to the dynamic development of the city, more and more natural areas are used for development, therefore ecological designing approach was particularly important. The northern roof of the building is covered with succulents and photovoltaic cells were placed on a well-sunlit southern part.
 
这个绿色的屋顶有一个45度的斜坡.设计传统的平绿色屋顶会更容易,但是当地的建筑法律不允许这样做-屋顶必须倾斜。这一解决方案要昂贵得多,尽管绿色屋顶表面明显超过了建筑物占用的面积。因此,可以说,从自然中夺走的东西是以兴趣的方式归还的。
The green roof has a 45-degree slope. It would be easier to design a traditional flat green roof, but local building law did not allow that - the roof had to be sloped. This solution was much more expensive, although the green roof surface significantly exceeded the area occupied by the building. Therefore, it can be said that what has been taken from nature has been given back with interest.
The green roof has a 45-degree slope. It would be easier to design a traditional flat green roof, but local building law did not allow that - the roof had to be sloped. This solution was much more expensive, although the green roof surface significantly exceeded the area occupied by the building. Therefore, it can be said that what has been taken from nature has been given back with interest.
 © Bartlomiej Drabik
c.Bartlomiej Drabik
建筑的特点是用层合木结构,在屋顶的边缘有对角导向的单元和底部。它不仅暴露在外面,还渗透到建筑物的内部。在两个屋顶斜坡的连接处,窗户在光线中占了很大的比例。窗户是安装在较高的底层,当打开自然通风工程非常有效。
The characteristic element of the building is construction made of laminated timber with diagonally guided elements and undercuts at the edges of the roof. It has been exposed not only outside, it also penetrates to the interior of the building. At the connection of the two roof slopes there are windows letting in significant portion of light. Windows are mounted high above ground floor, when opened a natural ventilation works very efficiently.
The characteristic element of the building is construction made of laminated timber with diagonally guided elements and undercuts at the edges of the roof. It has been exposed not only outside, it also penetrates to the interior of the building. At the connection of the two roof slopes there are windows letting in significant portion of light. Windows are mounted high above ground floor, when opened a natural ventilation works very efficiently.
 Ground floor plan

                            
在Superhelix演播室里,人们总是特别注意建筑是如何随着时间的推移而变化的,用过的材料会发生什么变化。这座建筑的立面上覆盖着一片西方的红杉木板。这种木材没有受到气候条件和昆虫的保护-它根本不需要它,迟早它会变成高贵的帕蒂纳,并把它的颜色变成银灰色。绿色屋顶也不需要特别照顾。它不需要浇水,长时间的干旱不是一个问题。这是由阴凉的北方曝光和植物保水的保证。
In the Superhelix studio special attention is always paid to how building changes over time, what happens with used materials. The elevation of the building was covered with a Western Red Cedar planks. This wood has not been protected from weather conditions and insects - it simply does not require it, in time it will take on a noble patina and change its color to silver-gray. The green roof also does not need special care. It does not require watering, long-lasting dry periods are not an issue. It is guaranteed by the shady northern exposure and the plants water retention.
In the Superhelix studio special attention is always paid to how building changes over time, what happens with used materials. The elevation of the building was covered with a Western Red Cedar planks. This wood has not been protected from weather conditions and insects - it simply does not require it, in time it will take on a noble patina and change its color to silver-gray. The green roof also does not need special care. It does not require watering, long-lasting dry periods are not an issue. It is guaranteed by the shady northern exposure and the plants water retention.
 © Bartlomiej Drabik
c.Bartlomiej Drabik
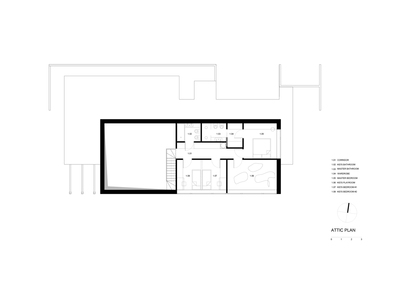
这座房子是按长方形设计的,有两层楼和189平方米。由于郊区的建筑位置,公共交通不发达,居住者主要使用汽车上下班。这就是为什么车库放在房子里面,在底层,在客厅和厨房附近。客房、卫生间和公共设施室也设在这一层。一楼有带更衣室和浴室的主卧室,两间儿童卧室,儿童浴室和儿童游戏室-可以根据需要进行调整。在家庭扩大的情况下。
The house has been designed on a rectangular plan, has two floors and 189 square meters. Due to the suburban location of building, where public transport is poorly developed, the ihabitants mainly use car to commute. That is why the garage is placed inside the house, on the ground floor, near to living room and kitchen. Guest room, toilet and utility rooms were also located at this level. On the first floor there is masterbedroom with dressing room and bathroom, two bedrooms for children, children's bathroom and kid's play room - can be adaptet as needed, eg. in the case of family enlarging.
The house has been designed on a rectangular plan, has two floors and 189 square meters. Due to the suburban location of building, where public transport is poorly developed, the ihabitants mainly use car to commute. That is why the garage is placed inside the house, on the ground floor, near to living room and kitchen. Guest room, toilet and utility rooms were also located at this level. On the first floor there is masterbedroom with dressing room and bathroom, two bedrooms for children, children's bathroom and kid's play room - can be adaptet as needed, eg. in the case of family enlarging.
 
 
 
 
 
 
 
 
 
 
 
 
 
 
 
 
 
 
 

                    

举报

北时一

什么也没写

1813 作品/ 0 人气

  • 别默默的看了,快登录帮我评论一下吧!:)

    注册 登录

    更多评论

    推荐作品


    相关文章

    下载

    加入到画夹管理

    添加画夹

    提示

    右键保存、高清大图仅支持VIP会员
    名师作品集【专享】
    全网名师最多、更新最快、作品最全
    作品库【无限查阅、一键下载】
    全球最大室内作品库,超33万部
    精品资料【下载】
    全年精品资料更新超1000部
    灵感搜索【原图下载】
    中文搜索全球顶尖案例灵感图
    设计师生活馆【内购价】
    5大电商平台官方合作,专享内购价
    CAD库【模型下载】
    cad单体模型库精准搜索查找下载
    免广告打扰【屏蔽】
    屏蔽全站广告,享受纯净体验
    3D模型【送199币值199元】
    分享全网最新精品3D模型
    名师与资料完善后,价格涨至699元/年