Lake Waconia House ALTUS Architecture + Design
2018-03-15 13:00
架构师提供的文本描述。坐落在瓦科尼亚湖西南岸,这座工业现代化的房子,为一个8口之家,寻求庆祝其自然环境通过自然材料和戏剧性的透明度。这座房子位于海岸线附近,毗邻一片有200年历史的橡树树林,是对湖面和树木的大胆雕塑式的回应。
Text description provided by the architects. Situated on the Southwest shore of Lake Waconia, this industrial modern house for a family of 8 seeks to celebrate its natural surroundings through natural materials and dramatic transparency. Located adjacent to a grove of 200 year old oak trees near the shoreline the house is organized as a bold sculptural response to the lake and trees.
© Paul Crosby
C.Paul Crosby
两层楼,5500平方英尺的住宅被设计用来推广家庭的户外和活跃的生活方式。中央起居室是一个两层的中庭,南北两侧都有玻璃墙,白天阳光明媚,可以透过房屋看到树木和湖外的景色。家庭活动空间是一个室内游泳池,可以直接进入。地产的湖边。上层是两翼,西边有一间主套房和运动空间,儿童翼配有两个浴室、洗衣房和三间两层阁楼卧室,可供6人(4名男孩和2名女孩)使用。
The two-story, 5,500 square foot home is designed to promote the outdoors and active lifestyle of the family. The central living room is created as a two story atrium with glass walls on the north and south edges capturing daylight throughout the day and inviting views through the house to the trees and lake beyond. The family activity space is an indoor swimming pool with direct access to the lakeside of the property. The upper level is organized as two wings, a master suite and exercise space on the west and the children’s wing with two bathrooms, laundry and three two level loft bedrooms for 6 (4 boys and 2 girls).
© Paul Crosby
C.Paul Crosby
Main Level plan
主平面计划
© Paul Crosby
C.Paul Crosby
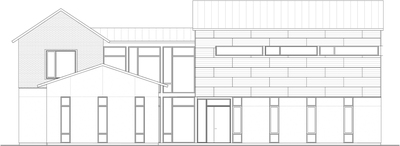
外部材料区分了设计的各种程序元素,地面是温暖的白色灰泥,主翼是深的奥本砖,儿童的翅膀用木板包裹,黑色的棕色和黑色的铝面板边缘细节都在一个黑色的青铜金属屋顶下。外部材料折叠在房子的内部。创造室内/室外对话,发展室内客厅中庭作为一个中心的空白空间。
The exterior materials differentiate the various program elements of the design, with the ground level being a warm white stucco, while the master wing is a deep auburn brick, and the children’s wing is wrapped in wood planks with a black brown stain and black aluminum panel edge details all under a dark bronze metal roof. The exterior materials fold into the interior of the house, creating an indoor/outdoor dialogue, and developing the interior living room atrium as a central void space.
© Paul Crosby
C.Paul Crosby
入口处的檐篷引入了耐候钢,与灰泥形成鲜明对比,并将其带入入口处。客厅和厨房的混凝土地板,带有辐射热的混凝土地板、钢楼梯和穿孔的黑钢天花板,传达了严格的现代美学,降低了空间装修的成本。儿童的翅膀采用彩色胶合板墙和天花板,定义了一个动画。有趣的环境,有戏剧性的树木景观,唤起了树屋的意象。
The entry canopy introduces weathering steel as a contrast to the stucco, carrying into the entry foyer as well. Concrete floors with radiant heat, a steel stair, and perforated blackened steel ceilings in the living room and kitchen convey a rigorous modern aesthetic and reduced cost to the finishing of the space. The children’s wing incorporates color stained plywood walls and ceilings, defining an animated, playful environment with dramatic views of the trees, evoking a tree-house imagery.
© Paul Crosby
C.Paul Crosby
Architects ALTUS Architecture + Design
Location Waconia, United States
Lead Architects Tim A. Alt, Roger Cummelin
Area 5500.0 ft2
Project Year 2015
Photographs Paul Crosby
Category Houses
Manufacturers Loading...

PintereAI








