Cottage in Vilnius Studio Interjero Architektura + Architect Indre Sunklodiene
2018-01-09 03:00
© Leonas Garbacauskas
(Leonas Garbacauskas)
架构师提供的文本描述。维尔纽斯这间小屋的客户是一对年轻夫妇,他们在伦敦工作,而他们在维尔纽斯的新家的所有项目都在进行中。这项任务是建造一个舒适的公寓,2层,舒适,现代-斯堪的纳维亚风格,边缘。
Text description provided by the architects. The clients of this cottage in Vilnius are a young couple, who worked in London while all project of their new home in Vilnius was in progress. This task was to make a cozy apartment with 2 floors in cozy modern- Scandinavian style with an edge.
© Leonas Garbacauskas
(Leonas Garbacauskas)
一楼的主要问题是长方形空间。一个长电视橱柜和一个柔软的餐桌长凳相结合的想法,就像解决这个问题一样,没有额外的饭区空间。巨大的金属架子和一个木制立方体为这个生活空间提供了一个深度。
The main problem in 1 floor was an oblong space. The idea of a long TV cabinet combined with a soft bench for a dining table came like solving this problem with no extra space for a dining area. Huge metal shelf with a wooden cubes gives a depth for this living space.
First Floor Plan
一层平面图
厨房的面积在一栋建筑的另一边,在一个狭小的空间里。白色菱形瓷砖倾泻到一堵黑色对比墙上的天花板上。明亮的橡木橱柜就像厨房里温暖舒适的材料。
The kitchen area is in the other back of a building in a narrow space. The white rhombus tiles poured out up to a ceiling on a black contrasted wall. Bright oak cabinets coming like a cozy warming material in a kitchen area.
© Leonas Garbacauskas
(Leonas Garbacauskas)
客厅的电视主墙呈灰暗效果,而对面的架子和壁炉墙则留下了旧的白色砖块。起居室的上天花板部分有一个结构灰色的灰泥残存混凝土,而其他墙壁和天花板则被涂成白色,周围是黑色的木结构,在颜色和结构上产生了对比效应。
The main tv wall in a living room in colored with a grey ombre effect and the opposite shelf and fireplace wall is left with old white colored bricks. Upper ceiling part in a living room has a structured grey painted stucco remaining concrete while other walls and ceilings are painted white with black wooden surrounds that gives a contrast effect in colors and structures.
© Leonas Garbacauskas
(Leonas Garbacauskas)
小WC空间有一个节省空间的门,打开双方。这些材料再次被用来对比:桦木胶合板和黑色六角形瓷砖,在洗脸盆下有白色的金属网细节,并用作捣碎机器空间的门。
Small WC space has a space-saving doors that opens to both sides. The materials are used in contrast again: birch plywood and black hexagonal tiles, with a white colored metal mesh details under the washbasin and as a door for a mashing machine space.
© Leonas Garbacauskas
(Leonas Garbacauskas)
狭窄的楼梯在中间层有一面镜子柜墙,以便有更多的光学空间。一堵墙用白色涂上一盏白色的几何墙灯,另一堵用深灰色漆到二楼,在那里,一个建筑项目的壁龛被用来做一个带引线的书架。
The narrow staircase has a mirror cabinet wall in the intermediate floor for a more optical space. One wall is painted in white with a white geometric wall lamps while the other is painted in dark grey and coming to the second floor where the niche left in a building project was used for a book shelf with a leads.
© Leonas Garbacauskas
(Leonas Garbacauskas)
这间卧室有一个不寻常的计划和空间-它很小,但天花板很高。有一个特色的墙壁,一个开放的百叶窗,白色的面板和长窗帘,以突出天花板的高度。
The bedroom has a not usual plan and space- it is small but has a high ceiling. There was a featured wall with an openwork shutter white panels and long curtains made to highlight the ceiling height.
© Leonas Garbacauskas
(Leonas Garbacauskas)
倾泻出来的雪佛龙形式的瓷砖是用于二楼浴室作为主导细节在这个单位。
The poured out chevron form tiles are used for a 2nd floor bathroom as the leading detail in this flat.
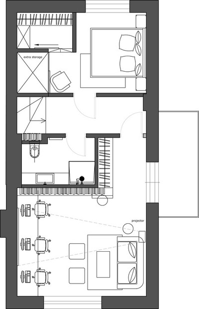
Second Floor Plan
二层平面图
这间小屋的主人用一个IT书圈工作,所以他们需要一个舒适的工作区域-橱柜。因此,该房间适应了他们的需要,两个工作空间,舒适的沙发和金属网壁架细节进入网格衣柜附近的角落。
The owners of this cottage works with a IT book sphere so they needed a big comfortable work area- cabinet. So that room was adapted to their needs with 2 working spaces, comfortable sofa and metal mesh wall- shelf detail coming into mesh closet around the corner.
© Leonas Garbacauskas
(Leonas Garbacauskas)
Architects Architect Indre Sunklodiene, Studio Interjero Architektura
Location Vilnius, Lithuania
Architect in Charge Indre Sunklodiene
Project Year 2016
Photographs Leonas Garbacauskas
Category Apartment Interiors
Manufacturers Loading...

PintereAI








