House in Macau Millimeter Interior Design

2017-04-08 19:00
架构师提供的文本描述。这座11,000平方英尺的房子位于澳门南侧的塔帕岛.业主和一个老人和三个孩子住在一起。了解业主的需要,设计师把空间变成一个更实用和更适合家庭居住的家。
Text description provided by the architects. This 11,000 square-feet house is located on Taipa Island in the Southern side of Macau. The owners live with one elderly and three children. Understanding the needs of the owners, the designer transformed the space into a more practical and suitable home for the family to settle in. 
 Courtesy of Millimeter interior design
米米室内设计
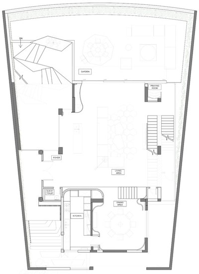
在功能上,设计师将楼梯安置在起居室内,为主人创造了一个有效而宽敞的居住空间。除了扩大起居面积外,设计师还为两个儿子设计了两间卧室,为女儿和祖母设计了两间相当大的套间卧室。一个主套房卧室的完整水平,一个开放的屋顶顶部休息区作为一个天空花园,一个壮观的海景,一个宽敞的步入式壁橱和立体声房。设计师特意在地下室为他们的三个孩子设计了一个自习室。自习室与花园相连,但现有花园的全高墙挡住了所有的自然阳光,无法进入地下室。设计师拆除了墙壁,创造了一个艺术的楼梯连接分裂的花园,从而允许阳光进入阅览室。地下室的另一边是一个酒窖,可以存放500多瓶。
Functionally, the designer relocated the staircase in the living area in order to create an effective and spacious living space for its owners. Apart from expanding the living area, the designer also designed two bedrooms for two sons, two sizable ensuite bedrooms for daughter and grandmother.  A full level for a master ensuite bedroom, with an open roof top sitting area as a sky garden with a spectacular sea view, a spacious walk-in closet, and stereo room. The designer purposely designed a study room in the basement for their three children. The study room is connected to the garden, but the full height wall in the existing garden has blocked all the natural sunlight and cannot reach into the basement. The designer demolished the wall and created an artistic staircase to link up the split garden, thus, allowing the sunlight to go into the reading room. The other side of the basement is a wine cellar which can store more than 500 bottles.
 Courtesy of Millimeter interior design
米米室内设计
在概念上,设计者以几何形式为主要设计理念。与室内使用的曲线相比,矩形的外部形状,创造了一个充满活力的运动贯穿整个房子。整个房子使用天然材料,墙面和地板用木板和大理石,用绿色装饰墙装饰房屋,营造自然的氛围。
Conceptually, the designer used geometry form as main design concept.  The rectangular shape exterior in contrast with the curved lines used in interior area, creates an energetic movement through out the entire house. The whole house uses natural materials, veneer and marble for the walls and floor and a decorative green wall to embellish the home to create a natural ambience.
 Courtesy of Millimeter interior design
米米室内设计
 Ground Floor

                            
 
 
 
 
 
 
 
 
 
 
 
 
 
 
 
 

                    

举报

创意实践

什么也没写

1819 作品/ 0 人气

  • 别默默的看了,快登录帮我评论一下吧!:)

    注册 登录

    更多评论

    推荐作品


    相关文章

    下载

    加入到画夹管理

    添加画夹

    提示

    右键保存、高清大图仅支持VIP会员
    名师作品集【专享】
    全网名师最多、更新最快、作品最全
    作品库【无限查阅、一键下载】
    全球最大室内作品库,超33万部
    精品资料【下载】
    全年精品资料更新超1000部
    灵感搜索【原图下载】
    中文搜索全球顶尖案例灵感图
    设计师生活馆【内购价】
    5大电商平台官方合作,专享内购价
    CAD库【模型下载】
    cad单体模型库精准搜索查找下载
    免广告打扰【屏蔽】
    屏蔽全站广告,享受纯净体验
    3D模型【送199币值199元】
    分享全网最新精品3D模型
    名师与资料完善后,价格涨至699元/年