JC House Plus Line Design
2017-04-01 09:00
© Vlad Patru
c.弗拉德·帕特鲁
架构师提供的文本描述。这所房子位于一条低交通街道上,一个四口之家的普通住宅。地势把房子放置在相邻的两堵隔墙之间,将空间分成两码:一个有限的前院,提供街道通道,并与私人的、美化的后院相连。第三个“庭院”建在室内,楼梯下面。这空旷的空间延伸到房子的宽度和高度,从墙到墙,并有一个超大的天窗提供充足的光线。
Text description provided by the architects. The house is located on a low traffic street with an ordinary residential use of a four-member family. The topography places the house between two adjoining blind walls, which divides the space into two yards: a limited front yard, which provides street access and connects with the private, landscaped backyard. A third “courtyard” is created indoors, beneath the staircase. This empty space stretches to the width and height of the house, from wall to wall and has an oversized skylight providing ample light.
© Vlad Patru
c.弗拉德·帕特鲁
这种天窗还通过电控窗为整个空间提供被动通风。
This skylight also provides passive ventilation for the entire space through an electric controlled window.
© Vlad Patru
c.弗拉德·帕特鲁
考虑到能源效率,房子被一个15厘米长的石羊毛层(上面的露台为20厘米)照射,西面的正面(朝后院)在二层的混凝土控制台和第一层的木棚和遮阳伞的保护下不受阳光照射。这些降低能源消耗的被动系统由太阳能电池板和地板辐射热补充。
With energy efficiency in mind, the house is insolated by a 15-centimeter stone wool layer (20cm for the upper terrace,) and the west facing facade (towards the backyard) is protected against the sun by a concrete console at second floor level and wooden pergola and sunshades at first level. These passive systems, which reduce energy consumption, are complemented by the solar panels and the floor radiant heat.
Ground Floor
© Vlad Patru
c.弗拉德·帕特鲁
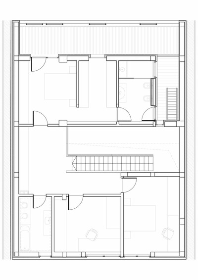
First Floor Plan
一层平面图
木板可在东面正面(街道侧)和室内(硬木地板在墙上或由中密度纤维板提高)。这创造了一种温暖自然的气氛。按照同样的趋势,院子里已经有了各种各样的植物种类,不同的盛开季节,提供了一个美丽的景观全年。
Wood plating can be found on the East facing facade (street side,) as well as indoors (hard wood flooring is raised on the walls or by MDF veneer.) This creates a warm, natural atmosphere. Following the same trend, the yards have been landscaped with various plants types, with varying blooming seasons to provide a beautiful landscape year-round.
© Vlad Patru
c.弗拉德·帕特鲁
© Vlad Patru
c.弗拉德·帕特鲁
最终,该项目的核心原则是与自然的联系(在有限的可利用土地的城市环境中)和能源效率。
Ultimately, the core principles of this project are the connection to nature (in an urban setting with limited available lot) and energy efficiency.
© Vlad Patru
c.弗拉德·帕特鲁
Architects Plus Line Design
Location Bucharest, Romania
Category Houses
Architects in Charge Eliodor Streza, Monica Streza
Area 257.2 m2
Project Year 2016
Photographs Vlad Patru
Manufacturers Loading...

PintereAI








