2Y House Sebastián Irarrázaval
2016-11-14 09:00
© Felipe Díaz Contardo
c Felipe Díaz Contardo
建筑师提供的文字说明。房子的主要目的是两个。首先,它在用户的日常体验中集成了森林;其次,它在整个白天尽可能多地接收阳光和阳光。为此目的,该程序适合于2Y字母图,其不仅在一天的不同时间创建用于输入太阳的双重取向,而且使居民对围绕他的视图进行曝光。换句话说,房子的极其延伸的周边和它的分叉,与一个紧凑的组织相反,加强了不在外部,但在它里面的体验,更具体地说,是在阳光和树木之间的顶叶关系中。
Text description provided by the architects. The main objectives of the house are two. Firstly; that it integrates the forest in the daily experience of the user and Secondly; that it receives as much light and sun as possible during the entire day. For that purposes the program is fit in a 2Y letters diagram that creates not only double orientations for entering sun at different times of the day but also exposes the inhabitant to views that surround him. In other words, the extremely extended perimeter of the house and it bifurcations, in opposition to a compact organization, potentiates the experience of being, not in front of the exteriority, but within it. More specifically, of being among the sun and trees in a parietal relationship.
© Felipe Díaz Contardo
c Felipe Díaz Contardo
此外,这种形状也使得不需要清理场地就能适应现有的树木。
Additionally this shape also made possible to fit into the existing trees without having to clean the site.
© Felipe Díaz Contardo
c Felipe Díaz Contardo
关于项目的物化,木材之所以被选择,不仅是因为木材是一种当地材料,可以通过与自然和文化联系在一起的方式将房屋锚定在这个地方,而且还因为木结构与其他材料组合相反,自然使用无限的线性元素建造,类似于森林中存在的无限感,可以进入一种与外部的振动。在这方面,结构和建筑计划是同时进行的,并且是在一次永久的对话中完成的。最后,很难区分两者。
Regarding the materialization of the project, timber was chosen not only because it is a local material that could anchor the house to the place by affiliations with the natural and the cultural, but also because the wooden structures, in opposition with other kind of material ensembles, are naturally built using infinite linear elements that as a result, resemble the sense of infinity that is present in forests and could enter in a sort of vibration with the exterior. In this respect, the structural and the architectural plans were done simultaneously and in a permanent conversation. At the end it is hard to distinguish one from the other.
关于与地面的关系,上述2Y图以不同的方式对坡度进行了协商。有时它在地面上强调和休息,而另一些则与土壤形成对比,强调建筑主体的人为性。
With regard to the relation with the ground, the above-mentioned 2Y diagram negotiates the slope in different manners. Sometimes it underlines and rests upon the ground and others it contrasts with the soil, stressing the artificiality of the architectonic body.
关于皮肤的外部处理,目的是创造一个持续的振动与大多数绿色的外观,这是众所周知的,可以实现使用红色的颜色。
With respect to the exterior treatment of the skin, the objective was to create a constant vibration with the mostly green exterior that, as it is well known, can be achieved using a red colour.
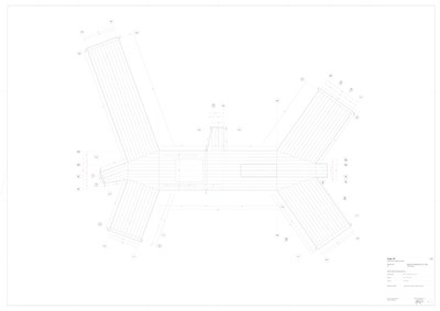
Floor Plan
© Felipe Díaz Contardo
c Felipe Díaz Contardo
Architects Sebastián Irarrázaval
Location Colico, Chile
Category Houses
Architect in Charge Sebastián Irarrazaval
Area 350.0 m2
Project Year 2013
Photographs Felipe Díaz Contardo

PintereAI








