Monolith House Rara Architecture
2016-10-21 19:00
© Christopher Alexander
克里斯托弗·亚历山大
架构师提供的文本描述。我们的使命是通过突出老房子的简单特征和它的整体形式来恢复它的荣耀。我们把它剥回中立状态。后方加成的高度有可能使原来的遗产家园相形见绌,所以,同情地说,我们模仿了屋顶的角度,但并没有隐藏它。没有任何关于加法的东西是“试图隐藏”任何东西。旧建筑在内部和外部平稳地过渡到新的、视觉上和情感上的新建筑-旧地板过渡到新的抛光混凝土板,旧的风化板过渡到穿孔的砖墙(勾勒出中央禅宗花园),然后又过渡到实心砖墙。加法,它可以
Text description provided by the architects. Our mission was to reinstate the old home's glory through highlighting it's simplistic characteristics and its overall form. We stripped it right back to a neutral state. The height of the rear addition had the potential to dwarf the original heritage home, so, sympathetically, we mimicked the roof angle, but didn't hide it. Nothing about the addition is 'trying to hide' anything. The old building transitions smoothly to the new, visually and emotionally, both internally and externally - the old floorboards transition to a new polished concrete slab, the old weatherboards transition to a perforated brick wall (outlining the central Zen garden) and then again to a solid brick wall. The addition, which can
© Christopher Alexander
克里斯托弗·亚历山大
享受从后巷和从内部的物业是自豪的,就像现有的爱德华;它矗立在高处,并没有任何夸张或过分,它是残酷的,最小的和雕像:一个独角兽。
be enjoyed from the rear lanes and from within the property stands proud, like the existing Edwardian; it stands high, and strong without any exaggeration or excess, it is brutal, minimal and statuesque: a monolith.
© Christopher Alexander
克里斯托弗·亚历山大
我们的客户雇佣了我们,知道架构师可以增加他们的空间的质量。比安卡让我们很难获得出色的建筑工作,而不是一件容易的事情。"拔下"作为业主建造者。这使我们得以探索一些具有挑战性的设计理念,这些设计理念在安理会中被推动了一段时间,结构上相当富有挑战性。
Our client hired us knowing the value an architect can add to the quality of their space. Bianca pushed us really hard to getting an exceptional work of architecture and not something easy they could 'pull off' as owner builders. This licensed us to explore some challenging design ideas that were pushed around in council for a while and was quite challenging structurally.
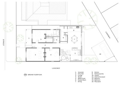
Ground Floor Plan
效果显著。这是一个简陋的房子,有一个简单和适度的扩展,符合最高的标准-一切都被考虑在内。有各种不同的空间来享受和储存一切。没有人会猜到有两个蹒跚学步的孩子住在这个空间里。
The result is outstanding. It’s a humble house, with a simple and modest extension that meets the highest standards - everything is considered. With a variety of different spaces to enjoy and storage for everything. No one would guess there were two toddlers living in the space.
© Alison McWhirter Photography
Alison McWhirter摄影
前半部是一个完全翻新的双正面风向板爱德华带一个平静的灰色调色板,真正庆祝老。新的模仿爱德华的惊人形式,同时使用现代材料建造的持久。设计的目的是让空间感觉无边无际,不受限制;无论你身在何处,都能看穿房子。新的开放计划居住和就餐区拥有充足的娱乐空间,取消岛屿长椅。客户想把所有的便利设施打包在墙上,所以我们就给了她这个。
The front half is a fully refurbished double fronted weatherboard Edwardian with a calm grey palette that really celebrates the old. The new mimics the striking form of the Edwardian, while employing the use of modern materials built to last. The design intent is to make the space feel endless and not confined; to be able to see right through the house, regardless of where you are. The new open plan living and dining areas boast ample space for entertaining by eliminating the island bench. The client wanted to pack away the amenities behind a wall; so we gave her exactly that.
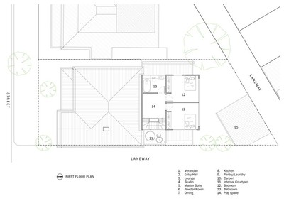
1st Floor Plan
第1层平面图
在楼上,我们设法避免了结霜的窗户,把固定的窗户扔到地板上(对孩子们来说更有交互性),而可打开的窗户则在1.7米以上。前倾的大教堂天花板使空间感觉比在游戏室/书房区域更大。
Upstairs, we managed to avoid frosted windows by dropping fixed windows to the floor (more interactive for the children), while having the openable windows above 1.7m. The raked cathedral ceilings make the space feel larger than it is in the playroom/study area.
该网站占地不到300平方米,因此很难设计出一套功能齐全的3居室家庭住宅,为每个家庭成员提供足够的附属空间,以满足今天的市场预期。因此,我们决定忘掉市场的期望,创造一个真正美丽的空间,让所有这些事情简单、完美、适合一个家庭。
The site is less than 300sqm, making it difficult to design a functional 3 bedroom family home with enough subsidiary space for each family member that meets today’s market expectations. So we decided to forget about the market's expectations and make a truly beautiful space that did all of those things simply and perfectly and suited for a family.
© Alison McWhirter Photography
Alison McWhirter摄影
其结果是一个空间,感觉它是浮动的。从外部看,墙面上只有一扇细长的线条窗,它的底部布满了一片亮丽的空白整体墙,隐约出现在后院。
The result is a space that feels like it's floating. Externally, the facade dons only a slim line window ribboning the bottom leaving a brilliantly blank monolithic wall looming over the back yard.
© Alison McWhirter Photography
Alison McWhirter摄影
产品说明。我们选择在第1层扩展覆层中使用CemetelBarrostone,因为我们想要的是相当大的东西,同时也很低的维护和成本效益。我们很喜欢它的重量轻,有大量的床单,而且易于安装。压缩纤维水泥板的饰面具有令人印象深刻的混凝土手感,并且酥脆且优雅,使得悬垂的延伸部看起来很自豪和整体,该项目被命名为“后”。
Product Description. We choose to use Cemintel Barestone for the 1st floor extension cladding as we wanted something substantial while also low maintenance and cost effective. We love that it’s lightweight, comes in large sheets and is easy to install. The finish of the compressed fiber cement panels has an impressive concrete feel to it and is crisp and elegant making the overhanging extension look proud and monolithic, which the project was named after.
Architects Rara Architecture
Location Clifton Hill, Australia
Category Houses
Architect in Charge Wesley Spencer
Area 208.0 sqm
Project Year 2016
Photographs Alison McWhirter Photography
Manufacturers Loading...

PintereAI








