Mews House Russell Jones
2016-10-07 03:00
© Rory Gardiner
罗里·嘉丁纳
架构师提供的文本描述。在海盖特,一座68平方米的紧凑型2卧室住宅和11平方米的封闭庭院。这座2层高的砖房面对着一片安静的鹅卵石铺着的房屋。它的90平方米的土地,在5层当地上市的建筑物后面的土地上,以前被一个废弃的车库和废弃的花园占据。它坐落在后面的围栏花园,车库,草屋和临时后方广告和最近完成的房子,也由罗素琼斯。
Text description provided by the architects. A 68 square metre compact 2 bedroom mews house and enclosed courtyard of 11 square metres in Highgate. This 2 storey brick house faces onto a quiet cobbled mews. Its 90 square metre site, on land to the rear of a 5 story locally listed building, was formerly occupied by a disused garage and derelict garden. It sits amongst a patchwork of rear fenced off gardens, garages, mews houses and ad-hoc rear ad-ons and a recently completed house, also by Russell Jones.
© Rory Gardiner
罗里·嘉丁纳
原先是一个破旧的后备区,破旧废弃的车库,犯罪和放飞的避难所,现在这个位置正逐渐发展成为一个隐居的居住飞地。
Originally a decrepit backland area, of run down and disused garages and a haven for crime and fly tipping, the location is now gradually developing into a secluded residential enclave.
该项目是在视觉、空间和结构手段的经济条件下设计和开发的。材料调色板和设计故意保持简单。在处理这些建筑物时,最大限度地利用了大多数高地上可俯瞰邻居的小场地,从而形成了一座具有整体空间感的建筑,而且在伦敦这种规模的房产中也很少能看到它的平静。精心挑选和精心制作的材料创造了一个基本的质量,这是不明显的材料本身。由此产生的家,虽然紧凑,但感觉宽敞而特别。
The project was designed and developed with an economy of visual, spatial and structural means. The material palette and the design were kept intentionally simple. The volumes were handled in such a way as to make the most of a small site constrained by overlooking neighbours on most elevations, resulting in a building that has an overall sense of space and calm infrequently seen in properties of this size in London. The careful selection and crafted use of materials create an essential quality that isn’t apparent in the materials themselves. The resulting home, although compact, feels spacious and special.
© Rory Gardiner
罗里·嘉丁纳
© Rory Gardiner
罗里·嘉丁纳
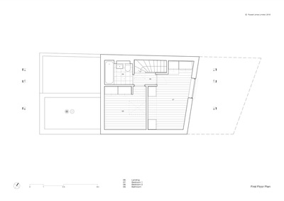
在底层,有盖的主入口可以直接进入开放式的居住、厨房和就餐区。这一区域通过从地板到天花板的玻璃延伸到后面的庭院,这提供了空间的物理和视觉的延续。铺路石形成一个连续的表面,从前面的外部入口,通过内部区域,并延伸到后面的庭院。在入口点提供一个外部自行车,服务和回收商店,并在门旁边,一个完全高度遮挡玻璃窗口。后面是一层厕所,里面有洗衣柜。一楼是通过在砖墙旁边盘旋的一个飞行楼梯进入的。一楼有两间卧室,每间都有内置的储藏室和浴室。多尔默和天窗被仔细定位,以使日光进入室内。
On the ground floor the covered main entrance provides direct access to an open plan living, kitchen and dining area. This area opens out onto a rear courtyard via floor to ceiling glazing which provides a physical and visual continuation of the space. The paving stones form a continuous surface from the front external entrance through the internal areas and out into the rear courtyard. At the point of entry an external bicycle, services and recycling store is provided and, adjacent the door, a full height obscured glazed window. To the rear is a ground floor WC with laundry cupboard. The first floor is accessed via a single flight stair hovering beside the brick wall. On the first floor are 2 bedrooms, each with built-in storage, and a bathroom. Dormer and skylights are carefully positioned to bring daylight in to the interior.
在院子里,一个小的nicHed区域被并入到砖墙中,以便居民将蜡烛或草药和植物放置在院子的地方。
In the courtyard a small niched area is incorporated into the brickwork wall for residents to place candles or herbs and plants to enliven the courtyard place.
© Rory Gardiner
罗里·嘉丁纳
这座位于海盖特的小型Mews住宅的建筑材料的选择受到了原始环境的影响,并且正在发展成为一个新的住宅飞地。突出的山墙正面露台,面向A1行车道的一侧,呈现出自己的背地位置,作为一个连续的墙标点符号伦敦公共砖墙。通过与哈林盖规划部的讨论,我们选择了一种浅色的砖瓦和灰泥来建造新建筑,这与后面的风化肮脏的公共建筑形成了鲜明的对比,以统一和灌输一种连续性的感觉,使这些建筑的新发展具有连续性,同时也提高了鹅卵石通道沿线的照明水平。
The choice of building material for this small Mews House in Highgate was influenced by the original context, and the ongoing development of the mews into a new residential enclave. The prominent gable fronted terrace that faces the A1 carriageway on one side, presents itself to this backland location as a continuous wall of punctuated London Common Brickwork. Discussion with the Haringey Planning department led to a selection of a light coloured brick and mortar for new buildings in the mews, as a contrast to the weathered and dirty commons behind, to unify and instil a sense of continuity to the new developments in the mews, and also to increase light levels along the cobbled passage.
© Rory Gardiner
罗里·嘉丁纳
WienerbergerMarziale最初在Mews中被罗素·琼斯(RussellJones)用于另一个项目,并继续作为小房子的主要材料。马齐亚勒被选为所有外部和内部结构墙,预制混凝土铺路石以轻色调与砖块匹配,整个底层内部和外部都使用了预制混凝土铺路石。
Wienerberger Marziale was initially used in the Mews on another project by Russell Jones and continued as the primary material for the small house. Marziale was selected for all external and internal structural walls, and precast concrete paving stones in a light tone to match the brickwork were used throughout the ground floor interior and exterior.
© Rory Gardiner
罗里·嘉丁纳
通过使用经过精心挑选的灰泥,使用白色水泥、石灰和洗过的河沙,以及使用斯堪的纳维亚称为“S kkeskinging”的方法微妙地处理表面纹理,提高了砖瓦的质量;一种类似的饰面,称为“套袋”,在20世纪60年代和70年代在澳大利亚很受欢迎。这种表面光洁度被认为是一种创造更完整的建筑的方法,同时又不失去每一块砖块的特性。
The quality of the brickwork has been enhanced through the use of a carefully selected mortar, using white cement, lime and washed river sand, and a subtle manipulation of the surface texture using a method known in Scandinavia as ‘Sækkeskuring’; A similar finish, known as ‘bagging’ was popular in Australia in the 1960s and 70s. This surface finish was appreciated as a way of creating a more monolithic Architecture, without losing the identity of each and every brick.
© Rory Gardiner
罗里·嘉丁纳
道格拉斯杉木被用于一楼的房间和入口细木工。楼梯采用道格拉斯杉木踏板和冷杉表面结构胶合板。对此,采用白油作为整理剂。
Douglas Fir was used in the first floor rooms and for the entrance joinery. Douglas Fir treads and fir faced structural plywood were used for the stair. To these, white oil was applied as the finish.
© Rory Gardiner
罗里·嘉丁纳
这座建筑包括地下采暖,整个建筑采用雨水收集系统和光伏电池板,建造到第3层的“可持续住宅守则”。
The building includes underfloor heating throughout and, built to level 3 Code for Sustainable Homes, makes use of a rainwater harvesting system and photovoltaic panels.
Architects Russell Jones
Location London, United Kingdom
Category Houses
Area 68.0 sqm
Project Year 2015
Photographs Rory Gardiner
Manufacturers Loading...

PintereAI








