Lüleburgaz Bus Station Collective Architects - Rasa Studio
2016-09-23 02:00
© Engin Gerçek
(Engin Ger Ek)
建筑师提供的文字说明。交通建筑是城市的入口点。因此,它不仅具有符号值,而且具有可记忆性和唯一性。我们的目的是利用土地的潜力来设计Lobolgaz的一个功能和社会运输复合体,并认识到它的性质是一个里程碑。
Text description provided by the architects. Transportation building is the entrance point of the city. Thus, it should has not only symbolic value but also memorizable and unique. Our purpose is to design a functional and social transportation complex in Lüleburgaz by using the potential of land and realize that its nature as a landmark.
© Ahmet Kazu
(Ahmet Kazu)
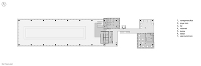
该大楼的土地是位于MuraatHaghinDavenigarSt.和IstiklalSt之间的EDRNE-伊斯坦布尔MainRoad,该道路位于旧的公交车站。通过使用与旧的入口点相同的输入-出口点,在陆地上设计出不同的循环路线。此外,该建筑位于东-西轴线上,该轴线为从主要道路直接看到建筑物提供了一个机会。
The land of the building is on the Edirne-Istanbul mainroad that is between Murat Hüdavendigar St. and İstiklal St. which is placed the old bus station. By using the same enter-exit point with the old one, different circulation route is desgined in the land. Also, the building is located on east-west axis which gives an opportunity to be seen directly the building from the mainroad.
城际公共汽车月台位于大楼南侧,而区域巴士月台则位于北面。这些平台之间的分离是由建筑物本身提供的。
Intercity bus platforms are located at the south side of the building, although regional bus platforms are located in north side. The seperation between those platforms is been provided by building itself.
© Engin Gerçek
(Engin Ger Ek)
室内设计的主要理念是在出发区和到达区不分开的情况下得到一个地方,所以售票处和商店都设在候机室之间,这一理念为未来的大楼改造提供了条件。
The main idea of interior design is getting one place without any separation between departure and arrival areas, so ticket sales offices and shops are placed between waiting lounges. That idea provides transformation of the building in future.
© Engin Gerçek
(Engin Ger Ek)
建筑的西点,城市的接入点,顶棚设计为具有不同倾斜屋顶系统的有效公共前厅。餐厅、咖啡厅和商业空间不仅是为乘客提供的,而且也是公共用途。
West point of the building ,the access point from the city, canopy is designed as an effective public front space with different sloped roof system. Restaurant, cafe and commercial spaces are located at that part not only for passengers but also public use.
因此,设计的目的是在公共空间内整合等候区,并为Lüleburgaz创建一个地标。
Consequently, the design aim is to integrated waiting areas within public spaces and create a landmark for Lüleburgaz.
© Engin Gerçek
(Engin Ger Ek)
Architects Collective Architects & Rasa Studio
Location Lüleburgaz, Kırklareli, Turkey
Category Bus Station
Area 1200.0 sqm
Project Year 2016
Photographs Engin Gerçek, Ahmet Kazu
Manufacturers Loading...

PintereAI








