Joachim Herz Foundation Kitzmann Architekten
2016-06-10 05:00
© Kitzmann Architekten With Heiner Leiska
c Kitzmann Architekten与Heiner Leiska
架构师提供的文本描述。约阿希姆·赫兹基金会成立于2008年,是德国最大的基金会之一。有13亿欧元的资源,主要目标是促进教育、科学和研究。
Text description provided by the architects. Founded in 2008, the Joachim Herz Foundation is one oft he largest foundations in Germany. With resources of 1.3 billion Euros the main objective is to promote education, science and research.
20世纪70年代以来,汉堡的一位企业家约阿希姆·赫兹(Joachim Herz)的办公室曾是一家咖啡烘焙厂。德国。上世纪90年代,他把那座古老的烘焙塔改造成了一间现代化的办公室。在他于2008年去世后,这座塔仍然是约阿希姆·赫兹基金会的中心和家。
Since the 1970s, a former coffee roastery was the office of Joachim Herz, an entrepreneur from Hamburg. Germany. In the 1990s, he modificated the old roasting-tower into a modern office. After his death in 2008 the tower remained the heart and home of the Joachim Herz Foundation.
© Kitzmann Architekten With Heiner Leiska
c Kitzmann Architekten与Heiner Leiska
新总部建于2014年,建在旧咖啡烘焙厂的工地上。生产大厅被拆除,但25米(82英尺)高的焙烧塔仍然存在,并被整合到新的组合,创造性和功能。这座3层楼高的建筑围绕着焙烧塔,就像蜿蜒曲折,在老塔和新房子之间制造了一种刺激的紧张气氛。
The new headquarter was built in 2014 on the site of the old coffee roastery. The production halls were teared down, but the 25 m (82 ft) high roasting-tower remained and was integrated into the new ensemble both creatively and functionally. The 3-storey building surrounds the roasting-tower like a meander, that creates a stimulating tension between the old tower and the new house.
© Kitzmann Architekten With Heiner Leiska
c Kitzmann Architekten与Heiner Leiska
新楼分为东部和西部,第二层有一座桥连接着它。这样,一个半公共的露台就出现了。从这里你可以进入2层的入口大厅.在一楼,你可以找到功能厅、礼堂、会议室和图书馆。在一楼的西部,咖啡厅通向一个宽阔的湖台和一个新设计的花园。
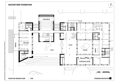
The new building is divided into an eastern and a western part, which is connected by a bridge in the second level. Thereby a semi-public patio arises. From here you are able toenter the 2-storey entrance hall. On the ground floor you find function rooms, an auditorium, conference rooms and a library. In the western part of the ground floor the cafete- ria opens up to a generous lake terrace and a newly designed garden.
2nd Floor Plan
二楼图则
© Kitzmann Architekten With Heiner Leiska
c Kitzmann Architekten与Heiner Leiska
楼上的办公室有带有玻璃隔墙的走廊和房间高的窗户,营造出一种自然光的大气。与庭院的相互影响,一致的材料和不情愿的色彩方案提供了一个平静的气氛,正面由精密预制混凝土段制造,给建筑一个空间深度。
The offices on the upper floors have corridors with glass partition walls and room-high windows which creates a generous atmosphere with natural light. The intervisibility with the courtyards, the consistent materials and the reluctant color scheme give a calm atmosphere.The facade manufactured of precision precast concrete segments give the building a spatial depth.
在现有的建筑物被拆除后,室外设施被改造成一个700平方米(7.535英尺2)的花园,有一个大湖。
After the existing buildings were demolished the outdoor installation were transformed into a 700 m2 (7.535 ft2) garden with a large lake.
© Kitzmann Architekten With Heiner Leiska
c Kitzmann Architekten与Heiner Leiska
Architects Kitzmann Architekten
Location Langenhorner Chaussee 384, 22419 Hamburg, Germany
Category Research Center
Architect in Charge Kitzmann Architekten
Area 5740.0 sqm
Project Year 2014
Photographs Kitzmann Architekten With Heiner Leiska

PintereAI








