Two Beams House Yuri Vital
2016-04-22 09:00
架构师提供的文本描述。通过不同的层次和对立的因素,我们得到了一个非常丰富的空间,我认为我们达到了目标。房子里的任何地方都有三大要素:景观、通风和自然照明。
Text description provided by the architects. Through the different levels and the opposing elements, we got a very rich spatiality, I think we reach the goal. Any place in the house has three essential items: view, ventilation and natural lighting.
© Nelson Kon
(Kon)
我的想法是创造一个有新概念的家,我认为打破范式对于设计创新的东西是很重要的。
The idea was to create a home with a new concept, I think that the breaking of paradigms was important to design something innovative.
© Nelson Kon
(Kon)
这座建筑由两根横梁和四根柱子支撑,由建筑师尤里·斯提尔在南蒂博海滩(Tibau Do Sul)、纳塔尔(Natal)、北里奥格兰德(Rio Grande Do Norte)建造的这座房屋以其设计和创新脱颖而出,
Supported only by two beams and four pillars, the house projected by the architect Yuri Vital in Tibau do Sul beach, Natal, Rio Grande do Norte, Brazil stands out for its design and innovation, allied at an affordable cost.
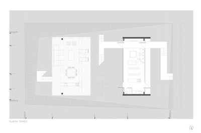
一(1)层住宅设置在两个展馆中,两者之间的高度为1.5米,由一组楼梯连接,允许从任何空间看到海洋和自然景观。底部的空隙,是由于层次的不同而形成的,用作娱乐、聚会和会议的空间,或者只是一个休息的房间。
The one(1) floor residence is disposed in two pavilions with 1.5m in height between them, connected by a set of stairs, allowing the ocean and nature view from any space. A void at the bottom, which is formed due to the difference of levels, works as a space of recreation, parties and meetings or simply as a room to rest .
© Nelson Kon
(Kon)
在前面的亭子和楼梯上有一个日光浴室,在那里海景更加优越,观赏者在树的水平上;树,在较低的亭子中产生一个阴影,利用大自然为房子服务。
Over the front pavilion and through stairs there is a solarium, where the sea view is even more privileged, by the observer, being above the level of the tree; tree, that generates a shade in the lower pavilion, using the nature in favor of the house.
© Nelson Kon
(Kon)
为了减少维修,这座房子将在没有重大投资的情况下建造,因为我们几乎不使用混凝土、玻璃、经过处理的木材和防腐金属,这就增加了这两座梁式房屋的空间和体积。
Built with resistant materials in order to reduce the maintenance, this house will be perpetuated during its lifetime, without major investments, cause we barely used concrete, glass, treated wood and anticorrosive metal, that compound the spatiality and volume of the Two beam house.
Architects Yuri Vital
Location Tibau do Sul, Brazil
Category Houses
Ambience S + N Architecture and Interiors
Constructor Roberto Morais - Podium Construtora
Area 220.0 sqm
Project Year 2016
Photographs Nelson Kon
Manufacturers Loading...

PintereAI








