Reaccomodation GustoMSC Schiedam JHK Architecten
2016-03-14 10:00
© Marcel van der Burg
马塞尔·范德伯格
架构师提供的文本描述。海上工程公司GustoMSC搬进了“TimmerFabriek”,这是一座独特的工业建筑,最初建于1948年,当时位于Schiedam的Wilton Fijenoord码头。JHK建筑公司与GustoMSC和ABT密切合作,对这座9.500平方米的建筑进行改造和改造,以实现既符合新用户的需要,又符合现有建筑的先决条件的设计。
Text description provided by the architects. The offshore engineering company GustoMSC moved into the ‘Timmerfabriek’; a distinctive industrial building that was originally constructed in 1948 at the former terrain of the Wilton Fijenoord dock in Schiedam. JHK architecten worked in close collaboration with GustoMSC and ABT on the transformation and transfiguration of the 9.500 m2 building, in order to achieve a design that fits both with the needs of the new user and the preconditions imposed by the existing building.
© Marcel van der Burg
马塞尔·范德伯格
现有的建筑物TimmerFabriek可以认为是一个独特的建筑。这艘船的木工工场有三层开阔的大地板,围绕着一个中央中庭。每层至少有5米高,大玻璃表面提供充足的光线和空间。具有表现力的建筑结构,具有50×50米的脚印,已完全在混凝土中进行。混凝土屋面是突出其外观的一个重要特征,无论是外部还是内部都是如此。真实的细节,如工业桥梁,巧妙建造的混凝土楼梯和中庭天窗,也强调了该建筑冷静而优雅的特点,并与其工业历史相关。
The existing building The Timmerfabriek can be considered a unique building. The former ship’s carpentry workshop counts three big open floors organised around a central atrium. Each floor has a minimum height of five meters and large glass surfaces providing an abundance of light and space. The expressive building structure, with a 50 by 50 meter footprint, has been completely carried out in concrete. The concrete shell roofs are an important feature in accentuating its remarkable appearance, both externally and internally. Authentic details like the industrial bridges, skilfully built concrete staircases and the atrium skylights, too, underline the building’s sober yet elegant character and relate back to its industrial history.
© Marcel van der Burg
马塞尔·范德伯格
设计中心要把原来的车间改造成一个优良的工作环境,就是要保持和维修建筑的开放质量,同时又不把重点放在创造一个舒适的工作场所上。连接所有楼层的中庭,被打开到原来的状态,从而成为建筑物的调节和视觉中心。
The design Central to the transformation of the original workshop into an excellent work environment, was to maintain and repair the building’s open quality without losing focus on creating a comfortable place to work. The atrium, which connects all floors, is opened up to its original state and thus becomes the regulative and visual heart of the building.
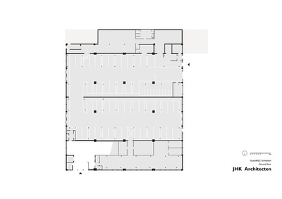
为了把巨大的七米高的底层变成一个有用的空间,增加了一个中间层。这样,新的一楼可以用作50辆汽车的停车位,而新一层的中央办公设施则留有足够的高度。这层楼是由一个大的,温和的楼梯通往中央中庭的入口。壮观的中庭空间是公司餐厅的主人,周围是围绕着立面的会议和工作空间。
In order to turn the massive, seven meters high ground floor into a useful space, an in-between level was added. In this way, the new ground floor can be used as parking space for about 50 cars, while plenty of height is left to accommodate the central office facilities on the new first floor. This floor is reached from the entrance by a big, gentle staircase leading up to the central atrium. The spectacular atrium space hosts the company’s restaurant and is surrounded by meeting and work spaces grouped along the facade.
© Marcel van der Burg
马塞尔·范德伯格
两个新的开放楼梯,沿着中庭周界,从这一层开始,并连接中央设施和其他两层楼。在这些楼层,大部分工作空间都是有组织的。楼梯成为不同办公区域之间的快速连接,同时激活中庭空间。
Two new open staircases that run along the atrium perimeter start at this level and connect the central facilities with the other two floors. On these floors, most of the working spaces are organised. The staircases become a quick link between different office areas and at the same time activate the atrium space.
© Marcel van der Burg
马塞尔·范德伯格
一个玻璃板隔开工作地板与中庭,以防止火灾渗透和闪光灯,以及噪音污染。此外,我们的目标是尽量保持一套开放的楼面图则,以配合大厦的工业规模。储藏室,复制设施,会议区域和集中空间被配置为独立的容量,提供高度的隐私和限制噪音污染。固定的工作空间主要位于立面上,通过中高、灵活的隔音隔板彼此隔开。这些创造声学和视觉舒适,可以很容易地重新安排,但不干扰开放的办公室气氛。
A glass panel separates the working floors from the atrium to prevent fire penetration and flash-over, as well as noise pollution. Apart from this, the aim has been to keep an open floor plan as much as possible in order to do justice to the industrial scale of the building. Pantries, repro facilities, meeting areas and concentration spaces are configured as free-standing volumes that provide degrees of privacy and limit noise pollution. The regular working spaces are largely situated along the facade and are separated from each other by medium high, flexible acoustic partitions. These create acoustic and visual comfort, and can be rearranged easily yet do not interfere with the open office atmosphere.
原始建筑的清醒性和功能性也通过色彩和材料的选择体现在建筑内部。一个白色和灰色的调色板,混合混凝土和玻璃表面,构成一个中立的基础为TimmerFabriek内部。新的内部元素,同时指的是建筑物的以前的功能,一个木工车间。例如,独立的卷和隔板有一个木制的饰面.这不仅是作为一个历史参考,它还创造了温暖的口音在一个原本凉爽的环境。家具、地板和墙面涂饰中存在着与GustoMSC的海上特性相匹配的钢蓝色色调。
The sober and functional character of the original building is also reflected in its interior through choice of colour and material. A white and gray palette, mixed with concrete and glass surfaces, make up a neutral base for the Timmerfabriek interior. New interior elements at the same time refer back to the building’s former function of a carpentry workshop. The free-standing volumes and partitions for example, have a wooden finish. This is not only done as a historical reference, it also creates warm accents within an otherwise cool environment. Colour accents in furniture and floor and wall finishing exist of steel blue shades that match with the maritime identity of GustoMSC.
© Marcel van der Burg
马塞尔·范德伯格
该公司的中央中庭餐厅已成为一个绿色的室内花园,是一个很好的午餐和愉快的工作景观。一个绿色的单色调色板在家具和地板整理,与一棵活的树,这一概念。
The company’s central atrium restaurant has been materialised as a green interior garden that is great for lunch and pleasant as a working view. A monochromatic palette of green in furniture and floor finishing contribute, together with a living tree, to this concept.
© Marcel van der Burg
马塞尔·范德伯格
技术与追求开放的外观,一个重要的目标是提出一个尽可能干净的设计,并以此加强代表性的建筑结构。为达到这一目的,设施大多被隐藏在凸起的地板下。这些楼层有一个额外的优点,使地板水平与玻璃正面,因为原来的栏杆是1,5米高。
Technique Together with striving for an open appearance, an important aim was to come up with a design as clean as possible and in this way reinforce the representative building structure. To achieve this, installations are mostly concealed under raised floors. These floors have an additional advantage of aligning floor levels with the glass facade, as the original parapets are 1,5 meters high.
© Marcel van der Burg
马塞尔·范德伯格
进排气格栅和电插座已被纳入地板,并通过使用模块化地板系统,可以重新安排根据愿望。照明是集成在声学天花板上,这些天花板是悬挂在现有结构之外的。这样才能充分利用混凝土的累积承载力,使原有的结构留在视线之内。
Intake and exhaust grilles and electric sockets have been incorporated in the floor and, by use of a modular floor system, can be rearranged according to wish. Lighting is integrated in acoustic ceilings that are hanging free from the existing structure. In this way, the accumulative capacity of the concrete is fully utilised and the original construction is left in sight.
建筑物正面已经安装了新的窗框和隔热玻璃板。然而,事实证明,护栏和屋顶没有隔热,这就是为什么采取措施,在屋顶顶部使用侧板和屋顶绝缘,以保持围护天花板上的能见度。此外,为了加热建筑物,使用在隔壁工厂生产过程中释放的余热。
The building facades were already provided with new window frames and insulated glass panels. The parapets and roof however proved to not be insulated, which is why measures were taken by using side sheeting and roof insulation on top of the roof to preserve visibility on the coffered ceiling. Furthermore, to heat the building, residual heat is used that is released during production processes of a next door factory.
© Marcel van der Burg
马塞尔·范德伯格
从第一次设计到项目完成,各方面之间的整体做法和密切合作已经产生了一个令人钦佩的结果:古斯多MSC的可持续、轻巧和舒适的办公环境被安置在一座独特的海洋历史建筑中。
The integral approach and close collaboration among various parties lasting from first design until completion of the project has led to an admirable result: a sustainable, light and comfortable office environment for GustoMSC that is accommodated inside a unique, maritime-historical building.
© Marcel van der Burg
马塞尔·范德伯格
Architects JHK Architecten
Location Karel Doormanweg 35, 3115 JD Schiedam, Netherlands
Category Adaptive Reuse
Area 9500.0 m2
Project Year 2015
Photographs Marcel van der Burg
Manufacturers Loading...

PintereAI








