Family House in Taipei Preposition Architecture

2016-01-13 15:00
架构师提供的文本描述。立地
Text description provided by the architects. Site
这座独栋住宅位于台北附近一座山丘上的一个封闭社区。自设计开始以来,土地产权的一部分没有得到明确的界定(这个问题后来得到解决),因此,该结构仅限于该地点的西北部。结果是,只有98平方米的土地获准在这280平方米的土地上发展,建筑物必须垂直增长,每一层的面积由46平方米至76平方米不等(包括楼梯)。
This single family house is located in a gated community on a hill near Taipei. Ever since the beginning of the design, a portion of the land property right was not clearly defined (the issue had been resolved later) hence the structure is limited to be in the North-West of the site. The result is that only 98 sqm of the land is permitted to be developed on this 280 sqm site and the building has to grow vertically with each interior floor area varies from 46 sqm to 76 sqm only (including stair case & elevator shaft).
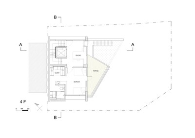
 Floor Plan

                            
一个主要的挑战是满足多代人的生活方式(祖父母、父母和一起生活的孩子)的需要,在如此有限的空间内由6名家庭成员组成。另一个主要挑战是如何应对以高温为特征的当地气候。
One main challenge is to satisfy the needs of a multi-generational life style (grandparents, parents, and kids living together) consists of 6 family members in such a limited space. Another main challenge is to respond the local climate which is characterized by intensive heat & sunlight, frequent rain, and high humidity.
 Courtesy of Preposition Architecture
介词建筑
一个身份,多个战线
One Identity, Multiple Fronts
这栋房子在6米宽的社区大路和一条4米宽的车道之间的一个拐角处。邻近的房屋都朝向西南侧的4米车道。该设计遵循这一模式,使其西南立面从外部被视为建筑正面。这是房子的第一个“前面”。由于隐私要求和西方对直接阳光的曝光率,在这第一条战线上只创造了有限的开口。所有主要的洞口都面向东南方向,允许从这个方向发出自然光。因此,从内部看,房子的“正面”被认为是面向花园的,而不是面向小巷的-“前面”从外到内90度。为了提供足够的隐私,花园将主要路线保持在一段距离内。这是房子的第二个“前面”。
The House is at a corner between a 6M wide community major rout and a 4M wide lane. The neighboring houses are all facing the 4M lane on the South-West side. The design follows this pattern making its South-West facade to be perceived as a building front from exterior. This is the first “front” of the house. Only few limited openings are created on this first front due to privacy requirements and western exposure to direct sunlight. All the major openings are facing South-East allowing natural light from this direction. Therefore, from the interior, the “front” of the house would be perceived as the one facing the garden instead of the one facing the lane – the “front” turns 90 degrees from outside to inside. The garden keeps the major route in a distance to provide adequate privacy. This is the second “front” of the house.
 Courtesy of Preposition Architecture
介词建筑
在网站的右侧,主要的社区路线做出了一个大转弯,并引导所有上坡的观点向这个房子。为了解决这一重要方向,在东翼创建了一个卷,并向这个特定的方向倾斜。当接近房子上坡时,这个倾斜的立面就变成了房子的“正面”。这第三个战线也连接了另外两个,完成了房子的整体和身份。
Right by the site, the major community route makes a big turn and directs all uphill views toward this house. To address this significant direction, a volume is created on the East wing and angled towards this specific direction. When approaching the house uphill, this angled facade becomes the “front” of the house. This third front also connects the other two and completes the totality and identity of the house.
 Courtesy of Preposition Architecture
介词建筑
人物探微
Exploring the Characters & Possibilities of Suburb Taipei
该地区具有台北郊区的鲜明特色:自然范围内的高密度发展。它们是群山之间的小城市街区。大部分土地面积很小,空地非常有限。我们把卷集中在网站的一边,留下近一半的土地是一个花园-一个足够的开放空间给自己。项目完成后不久,鸟类,蜜蜂,青蛙.。很快就在花园里安顿下来。实心和虚空在项目中扮演着同样重要的角色;它们相互制衡,成为彼此的背景。创造了多层次的户外空间,允许开放空间从地面延伸到地面。
The area has the distinct characters of suburb Taipei: high density development within natural surroundings. They are small urban blocks between mountains. Most land lots are very small with very limited open space. We concentrate the volumes on one side of the site leaving nearly half of the site being a garden – a sufficient open space to itself. Shortly after the project completion, birds, bees, frogs... quickly settled in the garden. The solid and the void play equally important roles in the project; they counter weight each other and being a backdrop for each other. Multiple levels of outdoor space were created allowing open space extends from ground level up.
 Courtesy of Preposition Architecture
介词建筑
基于设计策略的小气候控制
Micro-climate Control via Design Strategies
台湾位于亚热带,夏季长而密集,因此减少吸热是一个需要小心处理的问题。建筑是一种储存大量热能和影响物理环境的钢筋混凝土结构。该项目不依赖于机械设备,而是通过设计策略来响应热冲击。体积布置在更大范围内起着第一防御的作用。西长方形体积比东三角形体积大、高,东体积比西体积有更大的倒退距离。
Located in sub-tropical zone, Taiwan has long and intensive summer hence reducing heat absorption is an issue needed to be addressed carefully. The building is a RC structure which stores large amount of thermal energy and affect physical environment. Rather than relying on mechanical equipments, this project responds the heat attack through design strategies. The volumetric arrangement plays a role as the first defense at a larger scale. The West rectangular volume is substantially larger and taller than the East triangular volume, and the East volume has more setback distance than the West volume has.
 Courtesy of Preposition Architecture
介词建筑
这种安排使西卷成为东方的遮阳场所,夏季下午2点后完全被西卷遮挡,从而减少了辐射热的吸收。西部的音量被遮挡了来自西方和南方的直接阳光的百叶窗覆盖着。西卷内的洗衣房和浴室位于西边的角落,突出在外面,进一步阻挡西面阳光直射到卧室外墙,帮助减少洗衣房和浴室的湿度。
This arrangement makes the West volume being a sun-shelter to the East which will be completely under the shadow of the West volume after 2PM in summer hence reduces the radiant heat absorption. The West volume is covered with louvers blocking direct sunlight from the West and South. The laundry room and bathrooms inside the West volume are placed at the very West corner and protrude outside to further block direct West sunlight to bedroom exterior wall and help reducing the humidity in the laundry room and bathrooms.
 Courtesy of Preposition Architecture
介词建筑
 
 
 
 
 
 
 
 
 
 
 
 
 
 
 
 
 
 
 
 
 
 
 
 
 
 
 
 
 
 
 
 
 

                    

举报

林跖蓝

什么也没写

1787 作品/ 0 人气

  • 别默默的看了,快登录帮我评论一下吧!:)

    注册 登录

    更多评论

    推荐作品


    相关文章

    下载

    加入到画夹管理

    添加画夹

    提示

    右键保存、高清大图仅支持VIP会员
    名师作品集【专享】
    全网名师最多、更新最快、作品最全
    作品库【无限查阅、一键下载】
    全球最大室内作品库,超33万部
    精品资料【下载】
    全年精品资料更新超1000部
    灵感搜索【原图下载】
    中文搜索全球顶尖案例灵感图
    设计师生活馆【内购价】
    5大电商平台官方合作,专享内购价
    CAD库【模型下载】
    cad单体模型库精准搜索查找下载
    免广告打扰【屏蔽】
    屏蔽全站广告,享受纯净体验
    3D模型【送199币值199元】
    分享全网最新精品3D模型
    名师与资料完善后,价格涨至699元/年