St Kevin’s College, Victor McMahon Music Centre Baldasso Cortese Architects
2015-04-19 21:00
© Peter Clarke
彼得·克拉克
架构师提供的文本描述。圣凯文学院(StKevinsCollege)的规模已经超过了其格伦达洛(Glendalough)小校区现有的音乐中心。简报呼吁建立一个新的设施,以满足其日益增长的音乐项目的需求,无论是来自海因顿校区的初中生和高年级学生,以及学校社区的表演和聚会。
Text description provided by the architects. St Kevin’s College had outgrown its existing music centre’s on their Glendalough Junior campus. The brief called for a new facility to meet the needs of its growing music program for both junior and senior students from their Heyington campus and to be accessible to the school community for performances and gatherings.
© Peter Clarke
彼得·克拉克
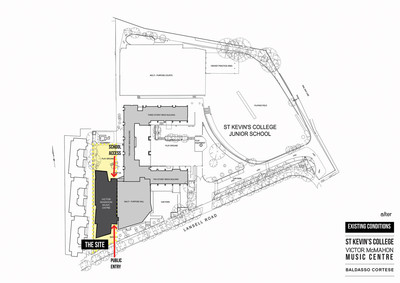
这个地方又窄又陡,西边是住宅公寓,东边是学院大厅。设计考虑到了这些和其他限制因素,提供了一种反应,解决了视觉体积、规模、对街景的兴趣和对邻居的隔音等问题。为学校和公共部门的所有人提供安全和公平的机会的需要,通过建立一个中央画廊长廊供聚会和非正式表演来解决,两个门户将学校入口与公众入口连接起来。
The site is narrow and steep, bounded by residential apartments to the west and the college hall to the east. The design gives consideration to these and other constraints providing a response that addresses issues of visual bulk, scale, interest in the streetscape and acoustic separation to the neighbours. The need to provide a safe and equitable access for all from both the school and public side was addressed through the creation of a central gallery promenade for gathering and informal performances. Two portals connect the school entry to the public entry.
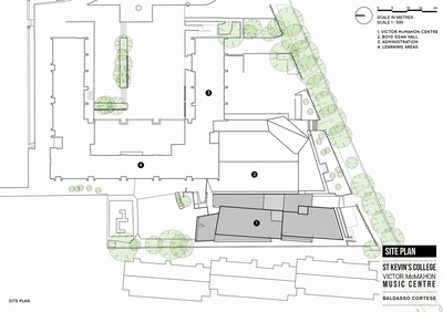
Ground Floor Plan
音乐中心提供一个大型的独奏和排练空间和一个听力画廊,而一系列的中小型空间为个人和团体练习各种乐器提供机会。
The music centre provides a large recital and rehearsal space with a listening gallery, whilst a range of small and medium spaces provide opportunity for individual and group practice for various instruments.
© Peter Clarke
彼得·克拉克
新音乐中心的外部建筑表现形式包括一个坚固的材料调色板,它响应学院附近的运动场,穿着木炭锌,并从爱尔兰圣凯尔文修道院的建筑遗产中汲取线索,那里有坚实的花岗岩建筑和狭小的狭缝窗户,后者是通过三重玻璃窗来实现的,这些窗户提供了更好的声学和热性能。通过对材料的不断使用,音乐中心融入了建筑的构成,形成了学院走向兰塞尔路的公众形象。
The external architectural expression of the new music centre consist of a robust palette of materials, responding to the college’s adjacent sports hall clad in charcoal zinc and taking cues from the architectural heritage of St Kelvin’s Monastery in Ireland with its solid granite construction and small slit windows, the latter of which is achieved with triple glazed windows providing improved acoustic and thermal performance. Through the consistent use of materials the Music centre integrates into the composition of buildings forming the college’s public face on to Lansell road.
© Peter Clarke
彼得·克拉克
与之相反,室内的墙壁和天花板都被维多利亚时代的灰所覆盖;就像一种乐器一样,空间的细节和造型都是温暖和质感的,用材选择了它的美丽和声学特性。内部细节的声学天花板进一步参考外部外观与它的块状图案。图形已被用来庆祝校友维克多麦克马洪的生命。“前进澳大利亚博览会”已经被代表在楼梯井,以提供‘归属感’和一个机会学习音乐以外的设计空间。
In contrast the interiors are inviting with walls and ceilings clad in Victorian Ash; like a musical instrument the spaces are detailed and sculpted to be warm and textural with timber chosen for its beauty and acoustic property. The interior detailing of the acoustic ceiling makes further reference to exterior facades with its block patterning. Graphics have been used to celebrate the life of Alumni Victor McMahon. “Advance Australia Fair” has been represented on the stairwell to provide a ‘sense of belonging' and an opportunity to learn music outside designed spaces.
© Peter Clarke
彼得·克拉克
© Peter Clarke
彼得·克拉克
一个新的圣殿已经被创造出来,作为一个自我反省的地方。一个人通过压缩的空间进入演讲室,进入一个很小的高天花板空间。除了一个单独的金色和黑色马赛克组合,庆祝圣凯文,空间是包覆青石,以创造一种修道院的感觉。两个小开口带来光明。一个在西边提供白天的环境光,而一个从墙壁到屋顶的狭缝窗户提供一个戏剧性的光轴标记一天中的时间,轴的光落在马赛克在每年6月3日的早晨-圣凯文的节日(St Kevin‘s Feast Day)。
A new Oratory has been created as a place of personal reflection within. One enters the oratory through a compressed space into a small high ceiling space. Except for a solitary gold and black mosaic composition that celebrates St Kevin, the space is clad in bluestone to create a monastic feel. Two small openings bring in light. One to the west provides ambient light through the day whilst a slit window wrapping from wall to roof provides a dramatic shaft of light that marks the time of day, the shaft of light falls on the mosaic on the morning of 3rd June every year- St Kevin’s Feast Day.
Architects Baldasso Cortese Architects
Location 73-75 Lansell Road, Toorak VIC 3142, Australia
Category Elementary & Middle School
Project team David Chandler, Steven Cortese, Loris Rebeschini, Marina Potter, Sophie Russell, Sherman Tan
Project Year 2014
Photographs Peter Clarke
Manufacturers Loading...

PintereAI








