367 House Mateo Ponce de León
2015-04-17 14:00
© Gonzalo Viramonte
c Gonzalo Viramonte
架构师提供的文本描述。367所房子是在地段的最高点设计的,这是陡峭的,面积很大。该地段位于门迪奥拉扎市,其目的是加强对山区和科尔多瓦市的看法。这个想法包括两个平行的长方形棱镜,结果得到一个“L”形状的房子。
Text description provided by the architects. 367 house was designed over the highest point of the lot, which is steep and has a big area. The lot is located in the city of Mendiolaza and the intervetion seeks to enhance the views to the mountains and also to the city of Cordoba. The idea consist of two juxtaposed rectangular prisms, getting as result a house with an "L" shape.
© Gonzalo Viramonte
c Gonzalo Viramonte
其中一本书是社会生活发生的地方,它有一个开放的计划和一个面向北方的大透明区域。它在现场上空飞行,与景观结合。在结构上,采用四根混凝土柱和大尺寸的倒梁来解决,以达到四米的悬臂,在主庭院上创造了一个双高的空间。
In one of the volumes is where social life happens, it has an open plan and a big transparent area which face north. It flies over the site integrating itself to the landscape. Structurally it is solved by four concrete columns and inverted beams of big dimensions in order to achieve that four meters cantilever, which creates a double height space over the main courtyard.
© Gonzalo Viramonte
c Gonzalo Viramonte
另一卷,包含“私人活动”的半埋藏,由石头和玻璃制成,它直接与景观对话。它的屋顶,是用来扩大社会部门,也是为了节省两辆汽车时,不使用。它的主要入口也在这里,它是由一个轻金属结构所保护的。
The other volume, which contains the "private activities" is semi buried and made of stone and glass, it dialogues directly with the landscape. The rooftop of it, is used as expansion of the social sector and also to save two cars when not in use. The main entry it´s also here, which is protected by a light metalic structure.
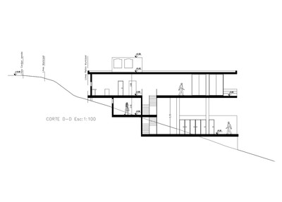
Section DD
DD节
垂直循环是通过两个体积的交汇处的楼梯来解决的,它是由木材和混凝土组成的。开敞的、部分覆盖的和覆盖的空间再加上双高,使这所房子变得灵活、流畅,并与环境保持不断的接触。
The vertical circulation is solved by a stairs in the intersection of the two volumes, made of wood and concrete. The convination of open, partially covered and covered spaces plus double heights make this house flexible, fluid and in constant contact with the enviroment.
© Gonzalo Viramonte
c Gonzalo Viramonte
Architects Mateo Ponce de León
Location Mendiolaza, Argentina
Category Houses
Area 300.0 sqm
Project Year 2014
Photographs Gonzalo Viramonte

PintereAI








