The Happiness Foundation THE_SYSTEM LAB

2015-01-17 01:00
架构师提供的文本描述。在讨论建筑作为一项建筑工程之前,最重要的是理解和认识幸福基金会作为社会事业的本质。架构师从一开始就坚持使用两个概念:对社区的贡献,以及为用户创造一个有目的空间。
Text description provided by the architects. Before the discussion of the building as an architectural project, it was most important to understand and recognise The Happiness Foundation's nature as social enterprise. The architects have been persistent from the very beginning with two concepts: contribution to the community, and to create a purposeful space for the users.
 © Yongkwan Kim
金永坤
在讨论建筑作为一项建筑工程之前,最重要的是理解和认识幸福基金会作为社会事业的本质。架构师从一开始就坚持使用两个概念:对社区的贡献,以及为用户创造一个有目的空间。
Before the discussion of the building as an architectural project, it was most important to understand and recognize The Happiness Foundation¡¯s nature as social enterprise. The architects have been persistent from the very beginning with two concepts: contribution to the community, and to create a purposeful space for the users.
 © Yongkwan Kim
金永坤
第二,用户。考虑到“哈佛商业评论”(HBR)中关于办公空间环境与员工工作效率之间关系的数据,以便为用户提供一个有目的空间。总结数据分析,员工身体健康和情感健康的可持续性是工作空间中效率最高的因素。
Second, the user. The data from Harvard Business Review (HBR), in regards to the relationship between the environments of the office spaces to the efficiency of the work of employees, was taken into consideration to acknowledge a purposeful space for the users. In conclusion to the data analysis, it is the sustainability of the employee¡¯s health in both physical and emotional that brings the most efficiency in a work space.
 © Yongkwan Kim
金永坤
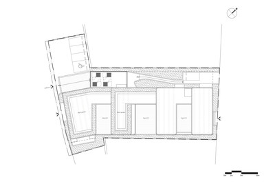
考虑到周围环境(有限的开口)和使用者的心理健康(要求最大限度地利用自然光和空气),设计了3个庭院和3个屋顶花园以及室内空间。该建筑分为四个部分,可以理解为四个不同的建筑物,并增加了质量。这类似于生态系统的进化,在那里它扩大了表面积,以获得更多的光、营养和氧气给细胞;以及在房地产开发中发现的做法。
The consideration of the surrounding (having limited openings) and the user¡¯s psychological health (requiring maximization of openings for natural light and air) led to a conclusion of programming 3 courtyards and 3 roof gardens along with the interior spaces. The building is divided into four segments, which can be read as four different buildings and increase in mass. This is similar to the evolution of ecosystem where it enlarges the surface area to attain more light, nutrient, and oxygen to the cells; and the practices found in real-estate development.
 
这三个庭院在视觉上连接了四座建筑的内部空间,提供了可以从建筑物内任何地方到达的室外风景。这种组织形式背离了传统的办公空间,有着整齐的隔间,缺乏物质和管理效率。以及能源效率,其中表面积的增加导致更多的使用需求在温度控制系统中。然而,这种方法的持久性是由增加雇员与自然的接触以及自然通风的概念所驱动的。这种安排给那些每天在室内工作8小时的人带来了心理上的安慰。
The three courtyards visually connect the interior spaces of the four buildings, and provide outdoor scenery that can be accessible from anywhere within the building. This form of organization departs from the traditional office space with aligned cubicles, and lacks in physical and management efficiency. As well as energy efficiency, in which the increase in surface area consequences more demand of usage in temperature control systems. Nevertheless, the persistence in this approach is driven by the concept of increase the employees contact with the nature along with natural ventilation. This arrangement results in psychological comfort for those working 8-hours a day at indoors.
 © Yongkwan Kim
金永坤
设计中的另一个考虑因素是人类尺度的空间,在这个空间中,具有相似特征的部门将被聚成一组,形成一个协作的办公环境。这也会在员工之间产生一种牢固的友谊纽带。我们的方法不同于环境友好型概念,并指向心理可持续性的概念。
Another consideration in design was the human-scaled space, in which, the divisions that share similar characteristics would be clustered into a group to form a collaborated office environment. This also generates a strong bond of fellowship between the employees. Our approach differs from the environment-friendly concept, and directs into the concept of psychological sustainability.
 © Yongkwan Kim
金永坤
包括3个庭院和3个屋顶花园产生的建筑物与最大限度的室外接触相对于建筑物的大小。换句话说,它提供了一个充满活力的办公室组织。由于建筑物似乎是通过形成四个不同的扇区而分开的,因此有两个特性充当了桥梁:一是线芯,另一种是在裸露混凝土上铺设复合木材的铁丝。这种双面复合木材为每个花园的环形排水提供了一条道路,并作为常春藤加长生长的一个元素来创建一个垂直花园。它还尽量减少了对大使馆的开放,并传达了对其高度安全的确认信息。作为回报,该项目在整个建设过程中得到了两个大使馆的积极支持。作者:金长中
The inclusion of 3 courtyards and 3 roof gardens generates a building with maximized outdoor contact in relative to the size of the building. In other words, provides a breathing/lively office organization. As the building may seem to be divided through formation of four separate sectors, two identities act as a bridge: the linear core, and the iron wire with composite wood placed on exposed concrete. The double-skin composite wood provides a path for the looped-drain from each garden, and as an element for the ivy to grow overtime to create a vertical garden. It also minimized the openings toward the embassies and delivered the message of acknowledgement of their high-security. And in return the project received active supports from both embassies throughout the construction. Written by Chanjoong Kim
 © Yongkwan Kim
金永坤
 
 
 
 
 
 
 
 
 
 
 
 
 
 
 
 
 
 
 
 
 
 
 
 
 
 
 
 
 
 
 
 
 
 
 

                    

举报

Lottie

什么也没写

1789 作品/ 0 人气

  • 别默默的看了,快登录帮我评论一下吧!:)

    注册 登录

    更多评论

    推荐作品


    相关文章

    下载

    加入到画夹管理

    添加画夹

    提示

    右键保存、高清大图仅支持VIP会员
    名师作品集【专享】
    全网名师最多、更新最快、作品最全
    作品库【无限查阅、一键下载】
    全球最大室内作品库,超33万部
    精品资料【下载】
    全年精品资料更新超1000部
    灵感搜索【原图下载】
    中文搜索全球顶尖案例灵感图
    设计师生活馆【内购价】
    5大电商平台官方合作,专享内购价
    CAD库【模型下载】
    cad单体模型库精准搜索查找下载
    免广告打扰【屏蔽】
    屏蔽全站广告,享受纯净体验
    3D模型【送199币值199元】
    分享全网最新精品3D模型
    名师与资料完善后,价格涨至699元/年