City Block Center Pablo Dellatorre
2014-09-03 01:00
© Gonzalo Viramonte
c Gonzalo Viramonte
架构师提供的文本描述。12间42平方米的工作室/住宅和10平方米的露台组成了“城市街区中心”。阿根廷科尔多瓦巴里奥·格梅斯街区中心的一座建筑。居住在一群年轻的艺术家,建筑师,设计师,摄影师,音乐家,演员和公关人员的生活。离市中心几个街区,穿过地役权,就是通往建筑群中央庭院的通道,所有公寓或工作室的露台都可以俯瞰。这个用植被装饰的庭院被一个半透明的玻璃盒子分隔成两个,里面有折叠的金属板楼梯,通向每一个单元。
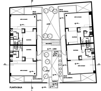
Text description provided by the architects. Twelve studios / dwellings of 42m2 and 10m2 terrace make up "City Block Center". A building in the center of the block, in Barrio Guemes, Cordoba, Argentina. Inhabited by a group of young artists, architects, designers, photographers, musicians, actors and publicists give it life. A few blocks from downtown and crossing an easement, is the access to the central courtyard of the complex where all the terraces from the apartments or studios overlook. This courtyard, decorated with vegetation, is crossed and divided into two by a semi translucent glass box containing the folded metal sheet stairs, leading to each of the u
© Gonzalo Viramonte
c Gonzalo Viramonte
尽管面积很小,但每个工作室都有一个露台,由木材开口和作者设计的筛子构成。这些是地板到天花板,滑动打开释放角度,并产生一个大幅度的空间和室内/室外的流动性。这种流动性是基于作者对社区住房的看法。
Despite its small areas, each studio has a terrace, materialized by timber openings with a screening designed by the author. These are floor to ceiling, sliding open to free the angle and generate a large amplitude of space and indoor / outdoor fluidity. This fluidity is based on the author's idea of community housing.
© Gonzalo Viramonte
c Gonzalo Viramonte
物化是具体的。楼板、梁和柱的钢筋混凝土结构被暴露出来,寻找给这个地方赋予身份的质朴。圆形柱增加了空间流动性,实心混凝土板具有独特的光洁度,可以在照片中看到。
The materialization was concrete. The reinforced concrete structure of slabs, beams and columns was left exposed, seeking for the rusticity that gives identity to the place. Circular columns increase the spatial fluidity, solid concrete slabs with a peculiar finish that can be seen in photographs.
© Gonzalo Viramonte
c Gonzalo Viramonte
建筑物的其余部分、开口、围护室的部件、栏杆和其他一切都是干性和轻巧的建筑。还开发了一种金属结构,以产生私人梯田和覆盖公共循环。
The rest of the building, openings, components of the enclosures, railings, and everything else is dry and light construction. A metal structure is also developed to generate the private terraces and covered common circulations.
内部外观是单一的,也是最重要的一个,因为项目是在党派之间的墙壁。盖伊比拉木信封几乎在三个层次上衬里整个正面是独特和真实的形象,创造了或多或少的隐私和在光线和阴影不断变化的情况。这种木皮在夜间从有人居住的单位产生室内庭院的照明。这使建筑物有一个稳定的室内外关系。
The interior facade is the single and most important one, as the project is between party walls. The guayubira wood envelope lining almost the entire facade on the three levels is the distinctive and authentic image of the place, creating situations of more or less privacy and constant changes in light and shadow. This wooden skin generates at night the lighting for the interior courtyards from inhabited units. This allows the building to have a steady indoor-outdoor relationship.
© Gonzalo Viramonte
c Gonzalo Viramonte
该露台被干预,以关闭项目,有游泳池,一个花园和一个会议空间,由木板和酚醛残留物建成的酒吧/烧烤,许多混凝土倾泻。
The terrace was intervened to close the project, there is the pool, a garden and a meeting space with bar / grill built from boards and phenolic residues that survived many concrete pours.
© Gonzalo Viramonte
c Gonzalo Viramonte
该网站提出海滩客栈的感觉比永久住所更多。
The site proposes the feeling of a beach inn more than a permanent residence.
© Gonzalo Viramonte
c Gonzalo Viramonte
GRONcho是该建筑皇冠的标题:一个带有工人灵感的烤架。这里现在是艺术家们在“城市街区中心”寻找灵感的地方,也是不止一个大型活动的地点。
GRONcho is the title of the building's crown: a grill with a workers inspiration. This is now the meeting place around the fire for artists seeking inspiration in "City Block Center" and the place for more than one mass
© Gonzalo Viramonte
c Gonzalo Viramonte
Architects Pablo Dellatorre
Location Montevideo 951, Córdoba, Córdoba Province, Argentina, Argentina
Category Apartments
Authors Mar Pattochi
Project Area 42.0 m2
Project Year 2010
Photographs Gonzalo Viramonte

PintereAI








