Erasmus University College in Rotterdam Erick van Egeraat

2014-07-11 01:00
架构师提供的文本描述。伊拉斯谟大学学院位于荷兰鹿特丹市中心的Nieuwemarkt,现在正式投入使用。1924年以前的市立图书馆由城市建筑师D.B.Logemann设计,门面上装饰艺术雕塑由J.P.H.van Lunteren设计,彩色玻璃窗由J.W.Gidding设计。这是1940年第二次世界大战轰炸市中心后幸存下来的少数建筑物之一。
Text description provided by the architects. The Erasmus University College, beautifully located at the Nieuwemarkt in the centre of Rotterdam, The Netherlands, is now officially in use. The former municipal library from 1924 was designed by city architect D.B. Logemann, with Art Deco sculptures on the facades designed by J.P.H. van Lunteren and stained glass windows by J.W. Gidding. It is one of the few buildings which survived the Second World War bombardment of the city centre in 1940.
 
Erick van Egeraat设计的修复和改造是根据“威尼斯古迹保护和恢复宪章”的原则进行的。Erick van Egeraat展示并恢复了这座建筑的非凡美,它的装饰华丽、天花板围护、木板镶板、天然石材元素、雕塑和彩色玻璃,几十年来,这些建筑都被石膏板墙和掉下的天花板覆盖着。除了修复工程外,建筑师还增加了现代元素,使之成为符合大学建筑设计简约和现行标准的现代教师队伍。
The restoration and transformation designed by Erick van Egeraat was developed according to the principles of the Venice Charter for the Conservation and Restoration of Monuments and Sites. Erick van Egeraat reveals and restores the exceptional beauty of this building, with its generous decorations, coffered ceilings, wood paneling, natural stone elements, sculptures and stained glass which, for decades, had all been covered by gypsum board walls and dropped ceilings. In addition to restoration works, the architect added contemporary elements to make this a modern faculty which meets the design brief and current standards for university buildings.
 © Ossip van Duivenbode
c.OsSIP van Duivenbode
在建筑的中心有一个优雅的中庭,有玻璃墙和玻璃屋顶,允许丰富的自然光进入建筑物。在中庭,两部玻璃电梯连接所有五层楼。三楼是教职员工的办公场所,旧藏书库的功能主义结构无法保留,但在新的设计中被强调为轻巧细腻的设计。
In the center of the building there is an elegant atrium with glass walls and a glass roof, allowing an abundance of natural light to enter into the building. In the atrium two glass elevators connect all five floors. On the third floor the offices of the faculty and staff are located. The functionalist structure of the former book depository could not be kept, but has been emphasized in the new design with a nuanced light design.
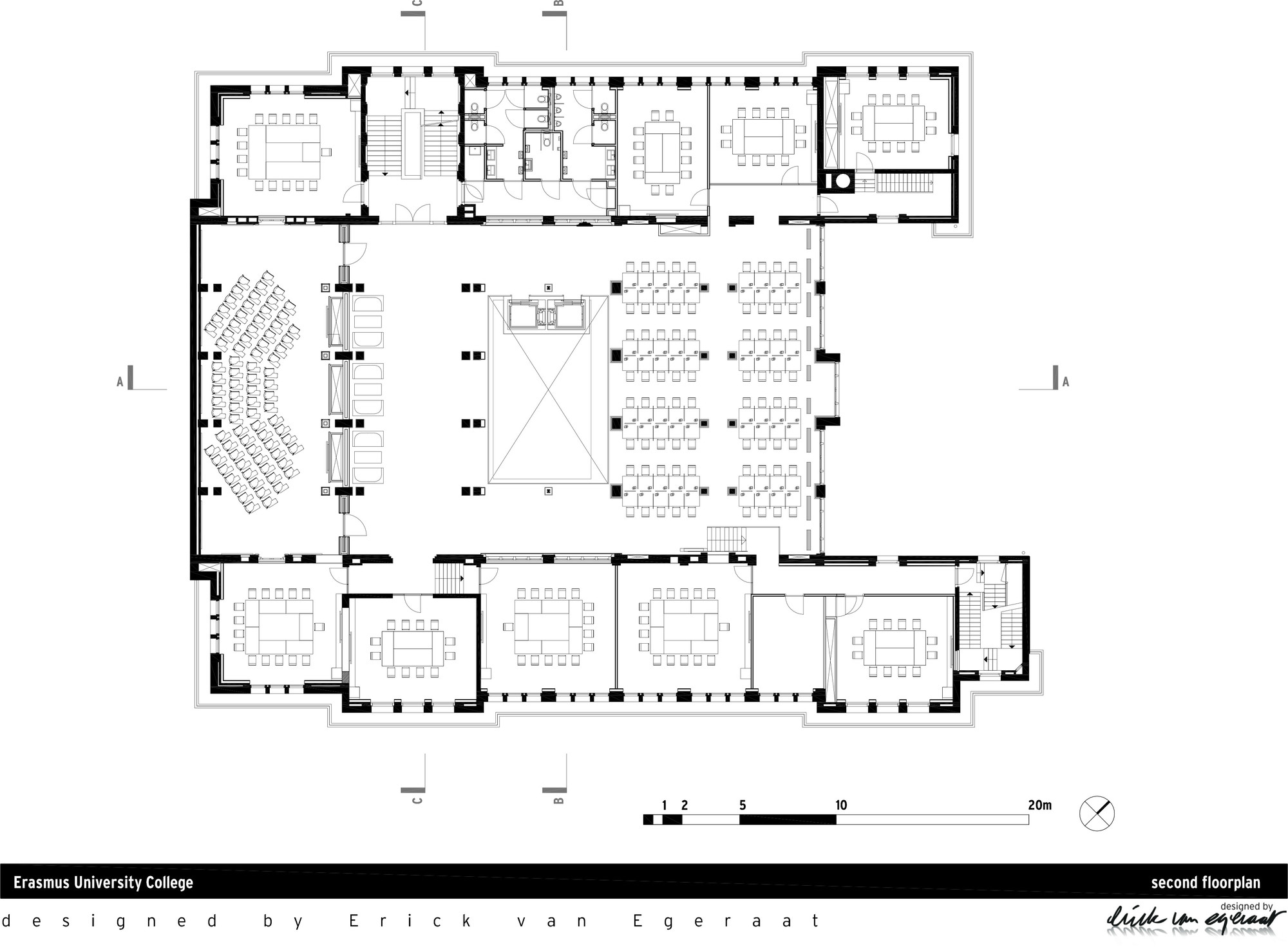
 Floor Plan

                            
伊拉斯谟大学学院是一个微妙的转变,使这座纪念碑得以重新启动,并成为伊拉斯谟大学和鹿特丹市的一项杰出资产。伊拉斯谟大学学院是一座教育建筑,适合Erick van Egeraat设计的长期重建和改造项目。其他即将完工的教育大楼是德国莱比锡大学的保林大楼和俄罗斯莫斯科郊外的斯伯班克企业大学。
The Erasmus University College is a subtle transformation that allows this monument to be re-activated, and represents an outstanding asset to the Erasmus University and the city of Rotterdam. The Erasmus University College is an educational building that fits in a long line of both redevelopment and transformation projects designed by Erick van Egeraat. Other education buildings nearing completion are the Paulinum Building for the Leipzig University in Germany and the Sberbank Corporate University just outside Moscow, Russia.
 © Ossip van Duivenbode
c.OsSIP van Duivenbode
 
 
 
 
 
 
 
 
 
 
 
 
 
 
 
 
 
 
 
 
 
 
 
 
 
 
 
 
 
 

                    

举报

白妙

什么也没写

1882 作品/ 0 人气

  • 别默默的看了,快登录帮我评论一下吧!:)

    注册 登录

    更多评论

    推荐作品


    相关文章

    下载

    加入到画夹管理

    添加画夹

    提示

    右键保存、高清大图仅支持VIP会员
    名师作品集【专享】
    全网名师最多、更新最快、作品最全
    作品库【无限查阅、一键下载】
    全球最大室内作品库,超33万部
    精品资料【下载】
    全年精品资料更新超1000部
    灵感搜索【原图下载】
    中文搜索全球顶尖案例灵感图
    设计师生活馆【内购价】
    5大电商平台官方合作,专享内购价
    CAD库【模型下载】
    cad单体模型库精准搜索查找下载
    免广告打扰【屏蔽】
    屏蔽全站广告,享受纯净体验
    3D模型【送199币值199元】
    分享全网最新精品3D模型
    名师与资料完善后,价格涨至699元/年