Xan House MAPA
2014-03-30 00:00
© Leonardo Finotti
莱昂纳多·芬诺蒂
架构师提供的文本描述。一种双重生存状态:对立与互补
Text description provided by the architects. A dual condition of living: The antagonistic and the complementary
Xan是一个单身家庭住宅,位于Xangrilá的一个私人社区,这是一个位于海岸边的小镇,距离巴西阿雷格里港(PortoAlegre)135公里。
XAN is single family residence, located in a private neighborhood in Xangrilá, a little town in the coast side, 135 km South from Porto Alegre, Brazil.
Ground Floor Plan
夏天的房子是一个充满自由的空间,一个享受户外生活的地方。这一事实决定了项目面临的方式。
A summer house is a space full of freedom, a place to enjoy an outdoor life. This fact conditioned the way the project was faced.
© Leonardo Finotti
莱昂纳多·芬诺蒂
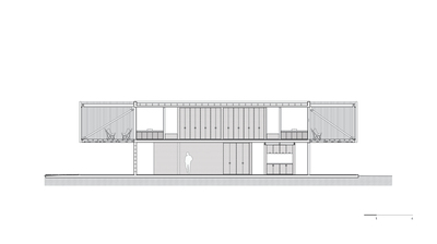
区别很简单。社会生活停留在底层,与周围环境直接互动。私人生活,分离和孤立,属于二楼。在卧室旁边的扩展空间中的视觉过滤器允许具有另一种性质的露天体验。
The distinction is simple. Social life stays in the ground floor, in direct interaction with its surroundings. Private life, separated and isolated, belongs to the second floor. Visual filters in expansion spaces next to bedrooms allow open air experiences of another nature.
© Leonardo Finotti
莱昂纳多·芬诺蒂
Xan House,一种空间和生活体验的对立和互补的游戏。
XAN House, an antagonistic and complementary game of spaces and living experiences.
© Leonardo Finotti
莱昂纳多·芬诺蒂
Architects MAPA
Location Xangrilá, Brazil
Category Houses
Authors Luciano Andrades, Maurício Lopez, Rochelle Castro, Matías Carballal, Andrés Gobba e Silvio Machado
Area 350.0 m2
Project Year 2013
Photographs Leonardo Finotti
Manufacturers Loading...

PintereAI








