Open Eye Gallery RCKa

2014-03-22 01:00
 © Mark McNulty
c.马克·麦克纳尔蒂
架构师提供的文本描述。开放眼画廊是一个公共资助的摄影画廊,位于利物浦的码头。这座建筑是联合国教科文组织世界遗产地曼恩岛大开发项目的一部分。
Text description provided by the architects. Open Eye Gallery is a publicly funded photographic gallery located on Liverpool's dock. The building forms part of the wider Mann Island Development, within a UNESCO world heritage site.
该设计兼顾了具体的馆藏要求和以有限的预算创造一个独特的、面向公众的、引人入胜的空间的需求。希望让公众更容易接触到艺术的愿望,导致了一种打开这座著名建筑的最大价值的方法,它提供了一座引人入胜的建筑,同时也提供了比原先设想的更多的画廊空间。
The design balances the specific curatorial requirements with the need to create a unique, public-facing and engaging space out of a limited budget. The desire to make art more accessible to the public, led an approach which unlocked the maximum value from this prominent site, delivering an arresting building whilst also providing more gallery space than was originally envisaged.
 Courtesy of RCKa
RCKa提供
画廊提供了各种各样的画廊空间,只要有可能,建筑就会向周围的环境开放,宣传画廊的存在,从而吸引路过的游客,并最终鼓励游客前来参观。有三个内部展览空间,每个空间在性质和目的上各不相同:从一个画廊正门内的双高空间;到第三个展厅,容纳了庞大的摄影档案馆的小规模展览;第二个展厅向城市开放,举办活动和艺术家讲座,从而使东面生动,并向更广泛的公众宣传画廊的活动。不同的画廊空间之间的门槛是黑色的橡木走廊,这是亲密和触觉的标志。
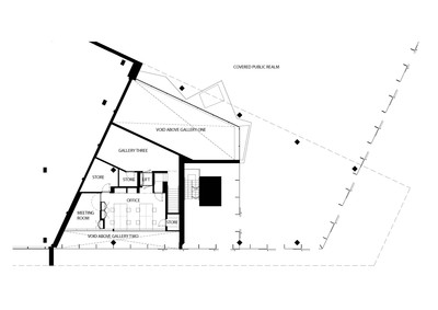
A diverse range of gallery spaces are provided and, wherever possible, the building opens up to its surroundings to advertise the Gallery's presence, thus engaging with passers-by and ultimately encouraging visitors. There are three internal exhibition spaces, each distinctive in character and purpose: from Gallery One's double height space just inside the main entrance; to Gallery Three which accommodates smaller scale exhibitions from the vast photographic archive; Gallery Two is open to the city and accommodates events and artists' talks, thus animating the Eastern façade and advertising the gallery's activities to the wider public. The threshold between the distinct Gallery Spaces is marked by dark stained oak corridors, which are both intimate and tactile.
 First Floor Plan
一层平面图
该设计的一个关键特点是在画廊和被覆盖的公共领域之间引入了西面墙。墙壁为安装提供了一个刺激的画布;将画廊的内部直接带入公众的视线;允许画廊占用被覆盖的公共领域作为其第四个画廊空间。墙的折叠形式有目的地用主人曼恩岛建筑的特征来包装,并在前面的柱子线上嬉戏地移动。其引人注目的形式充分利用了与公众接触的机会,并为书店创造了一个高度可见的位置,而不影响第一画廊的空间质量。
A key feature in the design is the introduction of the Western Wall between the Gallery and the Covered Public Realm. The wall provides a stimulating canvas for installations; bringing the inside of the gallery out and directly into the public's gaze; allowing the gallery to appropriate the Covered Public Realm as its fourth gallery space. The folding form of the wall purposefully jars with the character of the host Mann Island building and playfully moves around the line of columns in front of it. Its arresting form makes the most of the opportunity to engage with the public and creates a highly visible location for the bookshop without compromising the spatial quality of Gallery One.
 © Mark Reeves
C.Mark Reeves
西面墙是由半透明的柯里安制成的,它提供了一种洁净和空灵的品质。这与更有形的元素形成对比,例如未经处理的黄铜门把手和未漆的橡木接待处,这些都会随着使用而褪色和老化。
The Western Wall is made of a semi-translucent Corian which gives a clean and ethereal quality. This contrasts with more tangible elements such as the untreated brass door handles and unlacquered oak reception desk which will tarnish and age with use.
这座新建筑增加了开放式画廊的规模,使游客人数从平均6,000人增加到了53,000人。
The new building has given greater presence to the Open Eye Gallery increasing visitor figures from an average of 6-7,000 visitors to 53,000 visitors in its first year of opening.
 Ground Floor Plan

                            
更大的知名度增加了画廊通过零售销售,捐赠和画廊租用的自我创造的收入。游客数量的增加导致来自英格兰艺术委员会的收入增加了9%,当时ACE在全国范围内同时拥有资本和收入资金。因此,这座建筑不仅加强了开放式画廊的项目,而且保证了它的财政前景。
Greater visibility has increased the gallery’s self-generated income through retail sales, donations and gallery hire. The increase in visitor numbers lead to a 9% increase in revenue funding from the Arts Council of England’s at a time when ACE was reigning in both capital and revenue funding nationwide. The building has therefore not only enhanced the Open Eye Gallery programme; it has also assured it’s financial future.
 © Mark Reeves
C.Mark Reeves
 
 
 
 
 
 
 
 
 
 
Architects RCKa
Location Mann Island, Liverpool, Merseyside L3, United Kingdom
Category Gallery
Design Team Tim Riley, Tim O'Callaghan
Area 400.0 sqm
Photographs Mark Reeves, Mark McNulty

                    

举报

柒十二凉

什么也没写

1789 作品/ 0 人气

  • 别默默的看了,快登录帮我评论一下吧!:)

    注册 登录

    更多评论

    推荐作品


    相关文章

    下载

    加入到画夹管理

    添加画夹

    提示

    右键保存、高清大图仅支持VIP会员
    名师作品集【专享】
    全网名师最多、更新最快、作品最全
    作品库【无限查阅、一键下载】
    全球最大室内作品库,超33万部
    精品资料【下载】
    全年精品资料更新超1000部
    灵感搜索【原图下载】
    中文搜索全球顶尖案例灵感图
    设计师生活馆【内购价】
    5大电商平台官方合作,专享内购价
    CAD库【模型下载】
    cad单体模型库精准搜索查找下载
    免广告打扰【屏蔽】
    屏蔽全站广告,享受纯净体验
    3D模型【送199币值199元】
    分享全网最新精品3D模型
    名师与资料完善后,价格涨至699元/年