Hackney Townhouse ZCD Architects

2014-03-21 01:00
 © Charles Hosea
c.Charles Hosea
这个项目涉及到一座60年代末的3层梯级联排别墅的彻底翻新和扩建。这是一个前地方政府的财产,这座建筑坐落在一排6栋房子的尽头,这些房子形成了一个街区,街道主要由半独立的维多利亚晚期房屋组成,其中许多都列在清单上。露台是街道自然保护区范围内的一种反常现象。
This project involved the complete refurbishment and extension of a late 1960’s 3-storey terraced townhouse. An ex-local authority property, the building sits at the end of a row of 6 houses which form a block within a street made up mainly of semi-detached late-Victorian houses, many of which are listed. The terrace is an anomaly within the Conservation Area context of the street.
 © Charles Hosea
c.Charles Hosea
客户的简报是创建一个大而特殊的家庭之家。作为修行师,一个具体的要求是仔细考虑和定位房子内的布苏丹。我觉得这需要在房子的中心位置,所以很多内部改造都围绕着这一点,同时也考虑到了底层新的和现有的体积之间的联系和大量的自然光。
The brief from the client was to create a large and special family home. Being practising Buddists, one specific requirement was the careful consideration and positioning of the Butsudan within the house. This I felt needed to be at the heart of the house, so much of the internal remodelling was centred around this, as well as considering the connections between new and existing volumes at ground floor and lots of natural light.
 
现有的建筑状况相当差,许多现有的外部结构需要升级。翻修工作包括拆除所有外墙面板和窗户,只留下坚实的砖块部分放在侧面和前面的高地上。在设计阶段,考虑了通过横向条带、原始砖块和窗户开窗而形成的立面的清晰度,并在早期阶段作出了承认露台其他部分节奏的决定。
The existing building was in fairly poor condition and much of the existing external fabric needed to be up-graded. The refurbishment included removing all of the exterior wall panels and windows, leaving only the solid sections of brickwork to the side and front elevations. The articulation of the façade through horizontal banding, the original brickwork and the window fenestration were all considered during the design phase, and a decision was taken at an early stage to acknowledge the rhythm of the rest of the terrace.
 © Charles Hosea
c.Charles Hosea
新的更大的窗户在现有的开口被提议到房子的前面和上后立面,以最大限度地利用自然光。第一层的后立面(第二客厅,也是布苏丹的房子)被全高的玻璃部分所取代,这些部分滑过了延伸部分和下面花园的未来绿色屋顶。
New larger windows within the existing openings were proposed to the front of the house and the upper rear façade, to maximise natural light. The 1st floor rear façade (the second living room which also houses the Butsudan) was replaced with full-height glazed sections which slide to open up over the future green roof of the extension and garden below.
 
新的保温型腔墙取代了薄的白色PVC墙板下面的窗户,这里介绍了一个黑色工程砖,以对比现有的。新的砖墙不仅改善了建筑的整体热性能,而且外砖在外墙上引入了一种带有凸起砖的表面的有趣的连接方式。在回弹中,在底层的后部外墙和内墙上引入了倒孔砖表面。新的墙壁创造了一个纹理和图案的表面,它改变了与阴影和光的关系。
New insulated cavity walls replace the thin white PVC wall panels below the windows and here a black engineering brick was introduced to contrast with the existing. The new brick walls not only improve the overall thermal performance of the building, but the exterior brickwork introduces a playful articulation of surface with protruding bricks to the upper exterior walls. In counter-play, an inverted and perforated brick surface was introduced to the rear external and internal walls at Ground floor level. The new walls create a textured and patterned surface, which changes in relation to shadow and light.
 © Charles Hosea
c.Charles Hosea
在底层的侧方和后方的延伸,提供了额外的50平方米的空间,容纳了一个新的入口、游戏室、厨房、餐厅和生活区,环绕着大楼现有的足迹。在侧面延伸的后面,一个大的固定木框架窗户俯瞰一个外部平台,并将花园架在外面。后面的延伸,坐在花园里,是由两个大铝框架门框架,其中一个滑动打开客厅/餐厅和厨房区域的外部。两边和后面的延伸是统一的一个大型混凝土外部露台,框架的深色砖墙,和一个延伸的镀锌钢框架在屋顶水平,为未来的蓝色太阳提供了一个结构。一条7米长的双木横梁横跨后部和侧边的全部宽度。口袋和穿孔的黑砖墙,现在填充了小饰品和装饰,延伸到界定的生活区,标志着门槛,原来的足迹结束和新的空间开始。
The extension to the side and rear at the Ground floor level, provided an additional 50m2 of space to house a new entrance, playroom, kitchen, dining and living area, which wraps around the existing footprint of the building. At the rear of the side extension, a large fixed timber framed window overlooks an external terrace and frames the garden beyond. The rear extension, which sits forward into the garden is framed by two large aluminium framed doors, one of which slides to open up the living/dining and kitchen area to the exterior. Both side and rear extension are unified by a large concrete external terrace, framed by dark brick walls, and an extended galvanised steel frame at roof level that provides a structure for a future brie soleil. A 7m long double timber beam stretches across the full width of the rear and side extension. The pocketed and perforated dark brick walls, now populated with trinkets and ornaments, extend inside to define the living area, marking the threshold where the original footprint of the house ends and the new space starts.
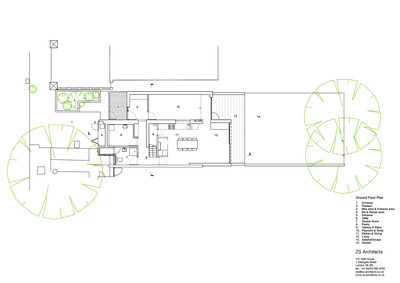
 Floor Plan

                            
现有的车库以前的位置和延伸到前面的房子,是作为内部空间,和原来的入口改建为一楼浴室。在新的空间和现有的房子之间和周围形成了一个连续不断的循环流。
The existing garage previously positioned and extending back into the front of the house, was reclaimed as internal space, and the original entrance converted into a ground floor bathroom. A continuous flow of circulation is created around and between the new spaces and the existing house.
 © Charles Hosea
c.Charles Hosea
在一楼,一个新的洞口在一个现有的墙壁,使第一层的起居室开放到房子的其他部分,创造了一个不间断的流通流经客厅和楼梯登陆周围。两边两扇全高的门都可以打开,与相同深度的中央墙壁平齐坐着,给人一种空间开放的感觉,中间有一个全高的橱柜单元。
At 1st floor level, a new opening was made in one of the existing walls, to allow the 1st floor living room to be opened up to the rest of the house, creating an uninterrupted flow of circulation through the living room and around the stair landing. Two full height doors at either side can be opened to sit flush against central walls of the same depth, giving a sense that the space is open plan with a full height cabinetry unit in the middle.
在现有屋顶中引入大型天窗是一项重要的工作。
The introduction of large skylights in the existing roof was an important
 
 
 
 
 
 
 
 
 
 
 
 
 
 
 
 
 
 
 
 
 
Architects ZCD Architects
Location London, United Kingdom
Category Extension
Area 158.0 sqm
Project Year 2013
Photographs Charles Hosea

                    

举报

蓝雯轩

什么也没写

1797 作品/ 0 人气

  • 别默默的看了,快登录帮我评论一下吧!:)

    注册 登录

    更多评论

    推荐作品


    相关文章

    下载

    加入到画夹管理

    添加画夹

    提示

    右键保存、高清大图仅支持VIP会员
    名师作品集【专享】
    全网名师最多、更新最快、作品最全
    作品库【无限查阅、一键下载】
    全球最大室内作品库,超33万部
    精品资料【下载】
    全年精品资料更新超1000部
    灵感搜索【原图下载】
    中文搜索全球顶尖案例灵感图
    设计师生活馆【内购价】
    5大电商平台官方合作,专享内购价
    CAD库【模型下载】
    cad单体模型库精准搜索查找下载
    免广告打扰【屏蔽】
    屏蔽全站广告,享受纯净体验
    3D模型【送199币值199元】
    分享全网最新精品3D模型
    名师与资料完善后,价格涨至699元/年