Triton Building Saeta Estudi + Lluís Cantallops + Juan Domingo
2014-03-23 01:00
架构师提供的文本描述。Triton大楼包括住房、商店和停车场。它位于一个特权的地方,旧的城市电网的波布勒努与新的巴塞罗那,在海洋前面。为了应对这一特殊位置,该建筑有两个面:一个是平静、规则和有序的陶瓷外墙,另一个是明亮、金属、充满活力和垂直组合的面向大海的立面。
Text description provided by the architects. The Triton Building contains housing, shops and parking. It is located in a privileged place where the old urban grid of Poble Nou meets the new Barcelona, in front of the sea. To respond to this particular location, the building has two faces: a calm, regular and ordered ceramic façade to the city and a bright, metallic, vibrant and vertically composed façade to the sea.
Courtesy of Saeta estudi
Saeta estudi提供
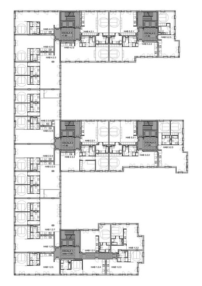
建筑图由四部分组成,由楼梯连接。其中三层有八层,与第四层垂直。最后一座建在Carrer Perelló对面,有五层楼,作为Poble Nou的建筑,位于街道的另一边。Perellófacade是由小而暗的瓷砖制成的,在底层有一个门廊,为行人提供住所。窗户遵循严格而有图案的节奏。
The building plan has four parts, connected by stairways. Three of them have eight floors and are placed perpendicularly to the fourth one. The last builds the front across Carrer Perelló, and has five floors, as the buildings of Poble Nou at the other side of the street. The Perelló façade is made of small, dark ceramic tiles and has a porch in the ground floor offering shelter to pedestrians. The windows follow a strict and patterned rhythm.
Ground Floor Plan
在面向大海的三个部分中,通过不同色调的铝皮形成了一个动态的外观,分解了窗户的严格节奏,并引入了新的体积。底层以其石质模仿公共空间。屋顶,从这四栋建筑可到达,是第五个立面,它配备了一个芳香的花园和两个游泳池。
In the three parts facing the sea, the façade takes a dynamic shape through an aluminum skin of different tones decomposing the strict rhythm of the windows and introducing new emerging volumes. The ground floor mimics the public space by its stony character. The roof, accessible from the four buildings is a fifth façade and it is equipped with an aromatic garden and two swimming pools.
Courtesy of Saeta estudi
Saeta estudi提供
E形向海岸开放,几乎所有的公寓都能看到大海和公园。
The E shape is open to the coast in a way that allows views to the sea and to the park from almost all the apartments.
Courtesy of Saeta estudi
Saeta estudi提供
建筑之间的空间是开放的庭院,给城市结构以整体的连续性。他们允许从PobleNou的历史中心到海滩。
The spaces between buildings are open courtyards and give continuity inside the whole to the urban fabric. They allow the passage from the historical center of Poble Nou to the beach.
Architects Saeta Estudi, Lluís Cantallops , Juan Domingo
Location Passeig Calvell, 45, 08005 Barcelona, Spain
Category Store
Architects in Charge Bet Cantallops, Pere Ortega , Lluís Cantallops, Juan Domingo
Area 12290.0 sqm
Project Year 2010

PintereAI








