House in La Jolla Metropolis
2014-03-13 01:00
First Level Plan
一级计划
架构师提供的文本描述。该项目位于利马省卡尼特省亚洲地区拉霍拉城市化第一排第50块F-1区。土地面积为300平方米。
Text description provided by the architects. The project is located on Lot 50 block F-1, First Row, La Jolla Urbanisation, District of Asia, Cañete Province, Lima Department. The land has an area of 300 m2.
© Juan Solano Ojasi
胡安·索拉诺·奥贾西
该建议包括开发一栋带有两层楼的单一家庭海滨别墅,外加一个服务地下室。
The proposal includes the development of a single family beach house with two floors, plus a service basement.
© Juan Solano Ojasi
胡安·索拉诺·奥贾西
该物业的主要通道是从-0.00m的水平,与行人入口的房子位于右侧,从后面可以看到,它有3个停车位和服务入口。
The main access to the property is from the level + /-0.00m, with the pedestrian entrance to the house located on the right side, seen from the back, it has 3 parking spaces and service entrance.
© Juan Solano Ojasi
胡安·索拉诺·奥贾西
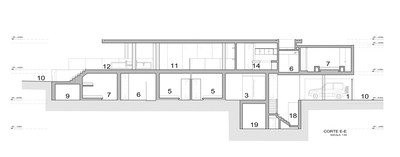
地下室和一层
Basement and First Level
第一级规定如下:
The first level is laid out as follows:
© Juan Solano Ojasi
胡安·索拉诺·奥贾西
房子里面有一个大厅,客厅,两间带浴室和壁橱的卧室,两间带浴室和壁橱的主卧室。(水平/-0.00m)。
Inside the house there is a hall, living room, 2 bedrooms with bathroom and closet, 2 master bedrooms with full bath and walk in closet. (Level + /-0.00m).
© Juan Solano Ojasi
胡安·索拉诺·奥贾西
有一个服务楼梯连接第一层(层/-0.00米)到地下室(层-3.00米),其中包括两个服务卧室带浴室,衣柜,洗衣房和锅炉房。(海拔-3.00米)。
There is a service staircase linking the first floor (level + /-0.00m) to the basement (level-3.00m), which includes two service bedrooms with bathroom, closet, laundry area, and boiler room. (Level-3.00m).
© Juan Solano Ojasi
胡安·索拉诺·奥贾西
有一个主楼梯连接一楼(-0.00m)到二楼(3.00层)及其社会区域。
There is a main staircase that links the first floor (level + /-0.00m) to the second floor (level +3.00) and its social area.
© Juan Solano Ojasi
胡安·索拉诺·奥贾西
Second Floor
二楼(3.00米)通过上述楼梯进入。客厅-餐厅与露台、客厅、烧烤区和游泳池融为一体。房子的另一边是厨房,客人浴室和两间卧室,一间带浴室和壁橱的客房,一间主卧室,里面有完整的浴室和壁橱。
The second floor (level +3.00 m) is accessed through the aforementioned staircase. The living area - dining room is integrated with the terrace, a living room, grill area and pool. To the other side of the house there is the kitchen, guest bathroom and two bedrooms, a guest bedroom with bathroom and closet, and a master bedroom with full bathroom and closet.
Architects Metropolis
Location Peru
Category Houses
Project Architect José Orrego Herrera
Project Area 570.0 m2
Project Year 2014
Photography Juan Solano Ojasi

PintereAI








