School Isabel Besora NAM Arquitectura
2014-03-06 01:00
© José Hevia
(JoséHevia)
架构师提供的文本描述。这座建筑坐落在一片面积缩小的三角形地块上,其特点是与铁路一侧的铁路直接接触,而另一侧则是一套砖砌的住宅建筑。
Text description provided by the architects. The building sits on a triangular plot of reduced dimensions and in an environment characterized by direct contact with the railroad on one side and a set of residential buildings of brickwork on the other.
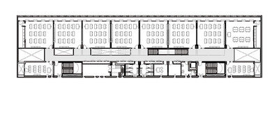
Ground Floor Plan
这就说明了建筑物在太阳的边缘实施本身,以及主体四层楼的密度,在这样的建筑物中有一个奇怪的高度。这个身体,基本上包含了所有的课堂课程和服务,与它相连,在另一卷书上形成了一个“L”,其中两个最大的节目空间,厨房和健身房。除此之外,我们还在PB的其他总务部门,如接待、礼宾、秘书、管理、职员室、办公室、图书馆和服务等。在上面两层,p1和p2找到小学教室和教室-1级儿童(使用地块的斜率)。
This explains the implementation of the building on the edge of the sun itself and also the density in the main body of four floors, a strange height in such buildings . This body , which basically contains all the classroom program and services, is attached to it forming an " L" on another volume in which the two largest program spaces are located, the kitchen and gym. Besides these, we also find in the rest of pb general services such as reception , concierge , secretarial , management, staff rooms , offices , library and services. In the upper two floors p1 and p2 find elementary classrooms and classroom level -1 child (using the slope of the plot ) .
© José Hevia
(JoséHevia)
在每一家工厂中,都有一条中央走廊将小规模的服务项目分隔开来,这是街道上最大的阳光教室项目。这条主要路线还通过楼梯与天窗之间的直线部分相连,而天窗则能照亮中心不同区域的照明和缝隙。
In each of these plants , a central corridor separates the small service program aimed at the street 's largest classroom program that spill into the sun . This major route also relates in a linear section through staircase and a skylight that illuminates and gaps related to various different areas of the center.
© José Hevia
(JoséHevia)
将建筑物与铁路分隔开来的是室内游戏、运动场和树木繁茂的娱乐区,以消除可能的视觉和声音接触。在白天,一系列户外门廊也允许学生到图书馆,餐厅,健身房和更衣室。
Separating the building in respect of railways is the indoor games, sports court and wooded recreation area to fluff the possible visual and acoustic contact. During the day, a series of outdoor porches also allow covered movement of students to library, dining room , gym and locker rooms .
© José Hevia
(JoséHevia)
整个建筑是用混凝土和模板木碑(垂直和水平)建造的。一旦提出这一简单和基本的结构,该建筑是通过使用玻璃作为一个封闭的不同大小和完成,以及垂直钢桁架深灰色,允许进入和控制光线在教室和其他空间。
The whole building is constructed with concrete and formwork wooden tablet (vertical and horizontal). Once posed this simple and basic structure , the construction is completed by the use of glass as an enclosure in various sizes and finishes , and the vertical steel trusses of dark gray that allow entry and control of light in classrooms and other spaces .
内饰,内衬白色油漆中密度纤维板,试图简化和尽量减少任何视觉污染,集中所有的注意力创造一个明亮和中立的环境。同一灰色色调的图形系统代码表示外教和学生在市中心不同的教室和空间。
The interior, lined with white painted MDF , attempts to simplify and minimize any visual pollution focusing all the attention on creating a bright and neutral environment . A graphic system codes in the same gray tone indicates foreign teachers and students the different classrooms and spaces downtown.
Architects NAM Arquitectura
Location Carrer Fuster Valldeperes, 7, 43204 Reus, Tarragona, Spain
Category Schools
Architect in Charge Nacho Alvarez Martinez
Area 4024.0 sqm
Project Year 2012
Photographs José Hevia

PintereAI








