Pedroso House BAK Architects

2014-02-11 01:00
这是位于马阿祖尔森林拐角处的一个小规模地形,其特点是:面积小,拐角附近的森林(大面积的松树)集中,这一地段的水平(地块最高)与对面2.50米的高度之间有着突然的差别。另一个重要的事实是,只有地块最长的一侧才能进入街道,面对一个没有树木和茂盛牧场的地段,因此在这方面,该地段太暴露在街景之下。
It is a small-scale terrain on a corner located in the forest of Mar Azul, whose particularities are: its small size, the concentration of forestry (pine trees of great size) at the near end of the corner and an abrupt difference between this sector level (the highest of the lot) and the opposite end of 2.50 meters. Another important fact is that only the longest side of the lot has access to street level, facing a sector without trees and abundant pastures so that on this front the lot is too exposed to the street view.
 Ground Floor Plan

                            
那代办
The commission
专员的命令(一对已婚夫妇有一个较大的孩子)是一栋不超过100平方米的两居室房子,设计主要在夏天使用,有时在一年中使用。它必须有两个卧室,两个浴室和最低限度的措施和一个共同使用的空间(与综合厨房)尽可能慷慨。特别强调了重要的户外扩建工程的必要性。此外,还需要一笔押金,以保存各种海滩物品。
The order of commissioners (a married couple with an older child) was a two bedroom house which did not exceed 100m2, designed to be used primarily in the summer and occasionally during the year. It must have two bedrooms, two baths with minimum measures and a common use space (with integrated kitchen) as generous as possible. Was particularly emphasized the need of important outdoors expansions. It was also required a deposit for saving various beach items.
 © Gustavo Sosa Pinilla
c.Gustavo Sosa Pinilla

                            
The proposal
这当然是罗得的独特之处,它给这个家带来了奇异。
It is certainly the peculiarity of lot which gives singularity to this home.
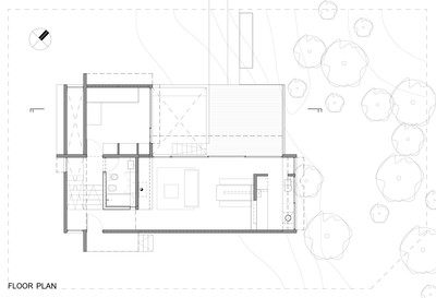
地形和树木的数量、质量和位置一直在确定两个关键项目决定的问题:第一,确定房屋的位置,试图保存现有树木的整体,因此与从一条街道可到达的较长一侧平行;第二,提高社会领域和进入房屋的街道,以实现隐私,并更好地联系到最高点的地段。由于这些决定,似乎适合解决两层的卧室,每一层约半层的社会区域,并位于垂直于它。因此,房子的定义是两卷,每一卷嵌入和形成一个L,其中包含了不同的扩张在不同的水平。这样,所有与地面接触的房间都会通过不同高度的甲板与混凝土室外楼梯相连而延长到外面。
The topography and the quantity, quality and location of the trees have been defining issues of the two key project decisions: first, locating the house trying to preserve the totality of the existing trees, and therefore parallel to the longer side reachable from one of the streets and, second, to elevate the social area and access to the house regarding the street to achieve privacy and to better relate with the highest point of the lot. As a result of these decisions seemed appropriate to solve the bedrooms on two floors, each about half level of the social area and located perpendicular to it. The house is thus defined by two volumes, each embedded and forming an L, which encloses expansions at different levels. This way, all the rooms in contact with the ground are prolonged to the outside by decks at different heights related to each other with a concrete outdoor staircase.
 
职能组织
The functional organization
你进入房子的主层,通过混凝土楼梯拯救一个斜坡。过了前门,从一个小门厅,你可以看到两段楼梯,半层以上,通向一间卧室和一间共用浴室,半层低,一半埋在沙丘里,主卧室有一个区域,用作书桌和浴室,也是共用的。从这个房间,你走到一个院子里,通过楼梯提升到主楼层的扩展,然后,从那里,到地块中最高架和最茂密的区域。坦率地说,这所房子的社交圈是开放的,通过厨房部分可以看到树林,而沿着整个门面的一个低矮的洞口保护着房子不受街景的影响。
You access the main level of the house saving a slope through a concrete staircase. Once crossed the front door, and from a small entrance hall, you see two sections of stairs leading, half level above, to one of the bedrooms and a shared bathroom and, half level down and half buried in the dune, the main bedroom with an area to be used as a desk and a bathroom, also shared. From this room you get out to a courtyard and ascend via a stairway to the expansion of the main floor and, from there, to the most elevated and wooded area of the lot. The social area of the house is frankly open to this expansion and with views through the kitchen sector into the woods, while remains protected from the street views by a low opening along the entire front.
 © Gustavo Sosa Pinilla
c.Gustavo Sosa Pinilla

                            
Construction
这座房子由三种基本材料组成:室外甲板上的裸露混凝土、玻璃、围护梁和松木。
The house is constructed of three basic materials: exposed concrete, glass, enclosure beams and pine wood in the outdoor decks.
 South East Elevation
东南高程
不同体积的板由墙和裸露的混凝土倒梁支撑,并以最小的坡度完成,以产生更快的雨水径流。它是在马阿祖尔(H21与流态化剂)的其他工程中使用的相同的混凝土,这是一种低水量的混合物,在锻造时会产生更紧密的混凝土。少数空心砖内部隔墙采用抹灰和油漆,地板采用混凝土平板布,用铝板隔开。开口为暗青铜阳极氧化铝。由于该地区没有天然气,因此加热系统是通过将火蜥蜴、瓶装煤气炉和电炉结合起来解决的。
The slabs of the different volumes are supported by walls and exposed concrete reversed beams, and are finished with a minimum slope in order to produce a faster rainwater runoff. It was used the same concrete of the other works in Mar Azul (H21 with fluidizer) a mixture with low amount of water that when forge create a more compact concrete. The few hollow brick internal partitions are plastered and painted and the floors are of concrete screed cloths divided by plates of aluminum. The openings are of dark bronze anodized aluminum. The heating system, since there is no natural gas in the area, is solved by combining salamander, bottled gas stoves and electric stoves.
 © Gustavo Sosa Pinilla
c.Gustavo Sosa Pinilla
除了大号床、扶手椅和其他设备外,这座房子的其他设备都是用混凝土解决的。甚至次级卧室的床都是有孔的悬臂板。
Except the queen size bed, the armchairs and chairs, the other equipment of this house is solved in concrete. Even the secondary bedroom beds are perforated cantilever slabs.
 
 
 
 
 
 
 
 
 
 
 
 
 
 
 
 
 
 
 
 
 
 

                    

举报

小苗说

//北京市

1789 作品/ 0 人气

  • 别默默的看了,快登录帮我评论一下吧!:)

    注册 登录

    更多评论

    推荐作品


    相关文章

    下载

    加入到画夹管理

    添加画夹

    提示

    右键保存、高清大图仅支持VIP会员
    名师作品集【专享】
    全网名师最多、更新最快、作品最全
    作品库【无限查阅、一键下载】
    全球最大室内作品库,超33万部
    精品资料【下载】
    全年精品资料更新超1000部
    灵感搜索【原图下载】
    中文搜索全球顶尖案例灵感图
    设计师生活馆【内购价】
    5大电商平台官方合作,专享内购价
    CAD库【模型下载】
    cad单体模型库精准搜索查找下载
    免广告打扰【屏蔽】
    屏蔽全站广告,享受纯净体验
    3D模型【送199币值199元】
    分享全网最新精品3D模型
    名师与资料完善后,价格涨至699元/年