653 10th Ave. Housing Cannon Design

2013-10-04 01:00
 Courtesy of Cannon Design
加农炮设计
架构师提供的文本描述。该项目位于纽约市克林顿历史街区第46街和第十大道的拐角处。除较低比例的褐石外,大部分城市织物由六层砖混房屋组成。这种建筑类型被安排成长的直线砌块,它们的街道墙位于地产线上。后面的院子里出现了挫折,形成了面向街道的单元,还有一些面向内部庭院和花园的单元。
Text description provided by the architects. Site Characteristics The project is located on the corner of 46th Street and Tenth Avenue in New York City’s Clinton historical district. Most of the urban fabric consists of six story brick masonry tenement buildings in addition to lower scale brownstones. This building typology is arranged into long rectilinear blocks with their street walls located on the property lines. Setbacks are provided in the rear yards, creating units that face the street and some that face the inner courtyards and gardens.
 Courtesy of Cannon Design
加农炮设计
客户商业房地产公司简介
Description of Client Commercial Real Estate Firm
该计划要求为20个住宅单位提供一层商业空间。这些单位需要有充足的日光,以及主要的看法。这些要求需要得到满足,同时保持该地区的褐石公寓的内容和重建原来的城市街区填补一个角落的空隙。必须严格遵守历史街区的要求。
Program Requirements The program required providing 20 residential units with a ground floor commercial space. The units needed to have ample daylight as well as prime views. These requirements would need to be fulfilled while keeping in character with the area’s brownstone tenement content and reconstructing the original urban block by infilling a corner void. Strict Historical district requirements were required to be adhered to.
 Courtesy of Cannon Design
加农炮设计
设计方案6层,位于场地的街道交汇处,以确定和完成街道的墙壁和拐角处。所需的开放区域位于该网站的西部部分,作为一个私人花园,并创造了第二个转角的机会。垂直循环核心与北侧墙相邻,最大限度地增加了三面的玻璃化机会。由一间工作室、两间一间卧室和一间卧室组成的四个单元被设计成环绕偏移核心。居住区域位于建筑物的外角,每个单元在这些地点提供两种不同的曝光。厨房提供充足的自然光,景观和自然通风。
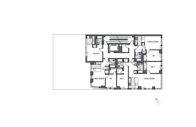
Design Solution A six story mass is located at the street intersection of the site to define and complete the street wall and corner. The required open area is located on the western portion of the site to serve as a private garden and create a second corner opportunity. The vertical circulation core is adjacent to the north party wall, maximizing the building perimeter for glazing opportunities on the three exposed sides. Four units consisting of a studio, two one bedroom and a two bedroom are designed to wrap around the offset core. Living areas are situated along the building’s outer corners, providing two different exposures to each unit at these locations. Kitchens are provided with ample natural light, views and natural ventilation.
 Courtesy of Cannon Design
加农炮设计
该建筑的主要体积是一个雨幕立面,覆盖着纤维水泥面板,补充了现有街道织物的材质、质地和颜色。这些包层元素的大尺度最大限度地利用穿孔的开口来获取自然光,这些开口由起居空间中的大的、几乎全高的窗户组成,而较小的窗户则在卧室和厨房提供了一个更亲密的内部。这种构图安排给了建筑一个生动和现代的外观。在角落单位的起居空间的环绕窗户提供两个曝光和框架不间断的看法天际线。这种开角布置是通过钢筋混凝土悬臂桁架立面结构来实现的。为遵守分区规划的规定,第七层由街道墙向后凹。一个分层的顶层阁楼单元被覆盖成一个连续的包层带,它起源于花园,一直延伸到大楼的西面,直到顶楼的尽头。
The building’s main volume features a rain-screen façade clad in fiber-cement panels that complement the material texture and colors of the existing street fabric. The large scale of these cladding elements maximizes the harvesting of natural daylight through punched openings consisting of large, almost full-height windows in the living spaces and smaller scale windows provide a more intimate interior in the bedrooms and kitchens. This compositional arrangement gives the building an animated and contemporary look. The wrap around windows in the corner unit’s living spaces provides two exposures and frame uninterrupted views of the skyline. This open corner arrangement was achieved thru a reinforced concrete cantilever truss façade structure. To adhere to zoning requirements, level 7 is recessed back from the street wall. A split level penthouse unit is clad into continue a band of cladding that originates at the garden and continues up the West façade of the building terminating at the penthouse.
 Courtesy of Cannon Design
加农炮设计
底层由零售空间和独立的住宅入口和大堂组成。位于第46街附近的住宅入口是倒角和凹槽,但从46街和第十大道可以完全看到。这一元素是通过使用石灰石面板作为覆层材料和极简玻璃店面包装进入花园区域而得到加强的。分隔花园和街道的围墙是第二种石灰石类型,它返回玻璃入口,强调主要入口。漂浮的不锈钢天篷有助于将组合物绑在一起。
The ground floor consists of retail space and a separate residential entrance and lobby. The residential entrance located off 46th street is chamfered and recessed yet fully visible from 46th Street and Tenth Avenue. This element is enhanced by the use of limestone panels as a cladding material and a minimalist glass storefront which wraps into the garden area. The enclosure wall dividing the garden from street is clad in a second limestone type and it returns into the glass entry opening emphasizing the main entrance. A floating stainless steel canopy helps tie the composition together.
 Courtesy of Cannon Design
加农炮设计
一个私人花园只能从大楼的主要大厅进入,并包含水的特点,作为一个后置的大厅。花园的定义是绿色的墙壁,暴露的混凝土元素和房子的反射池,瀑布和树木,提供阴影,帮助创造一个小气候。零售空间的入口处位于第十大道,以利用这条街充满活力的商业生活。入口处由角钢板定义,它平衡了整个门面的组成。地下室内有设备齐全的健身房、房客储藏室和自行车架。
A private garden is accessible only from the building’s main lobby and contains water features which act as a back drop to the lobby. The garden is defined by green walls and exposed concrete elements and houses a reflecting pool, waterfall, and trees that provide shade and help create a microclimate. The entrance to the retail space is prominently located on Tenth Avenue to capitalize upon the street’s energized commercial life. The entry is defined by angled corten steel panels which balance the overall façade composition. The basement harbors a well-equipped fitness room, tenant storage and bicycle racks.
 Ground Floor Plan

                            
 
 
 
 
 
 
 
 
 
 
 
 
 
 
 
 
 
 
 
 
 
 
 
 
 
 
 
 
 
 
 
 
 
 
 
 
 
 
 
 
 

                    

举报

nicoooola

什么也没写

1762 作品/ 0 人气

  • 别默默的看了,快登录帮我评论一下吧!:)

    注册 登录

    更多评论

    推荐作品


    相关文章

    下载

    加入到画夹管理

    添加画夹

    提示

    右键保存、高清大图仅支持VIP会员
    名师作品集【专享】
    全网名师最多、更新最快、作品最全
    作品库【无限查阅、一键下载】
    全球最大室内作品库,超33万部
    精品资料【下载】
    全年精品资料更新超1000部
    灵感搜索【原图下载】
    中文搜索全球顶尖案例灵感图
    设计师生活馆【内购价】
    5大电商平台官方合作,专享内购价
    CAD库【模型下载】
    cad单体模型库精准搜索查找下载
    免广告打扰【屏蔽】
    屏蔽全站广告,享受纯净体验
    3D模型【送199币值199元】
    分享全网最新精品3D模型
    名师与资料完善后,价格涨至699元/年