Qinmo Village Rural Urban Framework

2013-05-31 01:00
架构师提供的文本描述。秦摩村是位于广东省西北部的一个偏远的乡村.由于工业化的城市化,大多数身体健康的村民已经迁移到南方的工厂镇。剩下的很老和很小的人口过着以维持生计为主的生活,种植水稻和养猪养鸡。农业不再是主要的经济驱动因素,因为村民们现在依赖于从在工厂工作的亲戚那里汇回的汇款。目标是通过一系列引进教育和改变农业生产方法的项目,实现该村的长期可持续发展,使该村摆脱依赖经济自给自足的地位。
Text description provided by the architects. Qinmo Village is a remote rural village located in the North-West of Guangdong Province. Due to industrialized urbanization the majority of able-bodied villagers have migrated to factory towns in the south. The remaining population of the very old and the very young lead a predominantly subsistence life growing rice and keeping pigs and chickens. Farming is no longer a key economic driver as the villagers now rely on remittances being sent back from their relatives working in the factories. The objective is the long-term sustainable development of the village through a series of projects that introduce education and changes in methods of agricultural production to shift the village away from a position of reliance towards economic self–sufficiency.
 © Rural Urban Framework
(三)农村城市框架
该项目旨在实现中国农村的可持续发展.它是一所乡村学校的原型,它通过整合教育方案和可持续的理念,超越了单纯的建筑建设。作为一次设计研讨会的一部分,在2006年开始重新思考标准的3层混凝土建筑,这些建筑通常是作为农村地区的学校捐赠的,提议的设计强调了可持续性和生态责任。屋顶是为了融入农业露台的环境而设计的,它也被用作与下面教室相关的社区花园。学校本身的形成过程是沿着一个现有的水稻梯田切割和填土的过程。从篮球场到屋顶的一系列连续步骤在村里创造了一个新的公共空间。村民们参与了为立面粉刷个别砖块的活动。
The project is aimed at the long-term sustainable development of a rural Chinese village. It is a prototype for a village school which goes beyond mere building construction by integrating educational programs and sustainable concepts. Initiated in 2006 as part of a design workshop to re-think the standard 3 story concrete buildings which are typically donated as schools in rural areas, the proposed design stressed sustainability and ecological responsibility. Designed to blend into the environment of farming terraces, the roof is also used as a community garden related to the classrooms below. The school itself takes shape through a process of cut and filled earth along an existing rice terrace. A continuous series of steps extends from the basketball court onto the roof creating a new public space in the village. The villagers participated by painting the individual bricks for the facade.
 © Rural Urban Framework
(三)农村城市框架
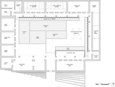
该项目包括改造一所旧的庭院学校建筑为社区中心和示范生态家庭。新计划包括会议室、宿舍、大型餐厅、公用厨房和办公空间。该中心被村民用作举办生态研讨会和志愿者的场所.示范户农场包括猪和鸡、温室和精选的蔬菜。设立农场的专业知识来自香港嘉道理农场的职员。
The project involves the renovation of an old courtyard school building into a community center and demonstration eco-household. The new program includes a meeting room, dormitory, large dining area, communal kitchen and office space. The center is used by villagers and as a place to host eco-workshops and volunteers. The demonstration household farm includes pigs and chickens, a greenhouse and a selection of vegetables. Expertise in setting up the farm came from staff of Kadoorie farms in Hong Kong.
 Floor Plan

                            
 
 
 
 
 
 
 
 
 
 
 
 
 
 
 
 
 

                    

举报

半小时室内

什么也没写

1885 作品/ 0 人气

  • 别默默的看了,快登录帮我评论一下吧!:)

    注册 登录

    更多评论

    推荐作品


    相关文章

    下载

    加入到画夹管理

    添加画夹

    提示

    右键保存、高清大图仅支持VIP会员
    名师作品集【专享】
    全网名师最多、更新最快、作品最全
    作品库【无限查阅、一键下载】
    全球最大室内作品库,超33万部
    精品资料【下载】
    全年精品资料更新超1000部
    灵感搜索【原图下载】
    中文搜索全球顶尖案例灵感图
    设计师生活馆【内购价】
    5大电商平台官方合作,专享内购价
    CAD库【模型下载】
    cad单体模型库精准搜索查找下载
    免广告打扰【屏蔽】
    屏蔽全站广告,享受纯净体验
    3D模型【送199币值199元】
    分享全网最新精品3D模型
    名师与资料完善后,价格涨至699元/年