Corpo Santo House Rui Cerqueira Barros

2012-11-24 00:00
架构师提供的文本描述。一座破旧的房子被分成三个不同的单元,是这个项目的出发点。
Text description provided by the architects. An old and ruined house divided in three different flats was the departing point for this project.
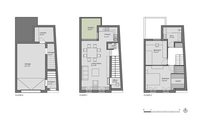
增加了一个新的卷来连接这三个层次,除了楼梯,它还包括厕所、厨房和洗衣房。
A new volume has been added to join the three levels and, beside the stairs, it contains toilets, kitchen and laundry room.
 © José Campos
(JoséCampos)
在入口处我们有车库和洗衣房。社交圈在中间层,客厅通向厨房,还有一个小庭院。
In the entrance floor we have the garage and laundry. The social area is on the middle floor, with living room open to the kitchen and a small courtyard.
 © José Campos
(JoséCampos)
在上层,我们可以找到两个房间和浴室,以提高房间的空间性,天花板梁的左边可见。
In the upper level we can find two rooms and bathroom, to enhance the spatiality of the rooms, ceiling beams where left visible.
 Courtesy of Rui Cerqueira Barros
Rui Cerqueira Barros提供
 
 
 
 
 
 
 
 
 
 
 
 
 
 
 
 
 
 
 
 
 
 
 
 
 
 
 
 
 
 
 
 
 
 
 
 
 
 
 

                    

举报

合欢小树

什么也没写

1767 作品/ 0 人气

  • 别默默的看了,快登录帮我评论一下吧!:)

    注册 登录

    更多评论

    推荐作品


    相关文章

    下载

    加入到画夹管理

    添加画夹

    提示

    右键保存、高清大图仅支持VIP会员
    名师作品集【专享】
    全网名师最多、更新最快、作品最全
    作品库【无限查阅、一键下载】
    全球最大室内作品库,超33万部
    精品资料【下载】
    全年精品资料更新超1000部
    灵感搜索【原图下载】
    中文搜索全球顶尖案例灵感图
    设计师生活馆【内购价】
    5大电商平台官方合作,专享内购价
    CAD库【模型下载】
    cad单体模型库精准搜索查找下载
    免广告打扰【屏蔽】
    屏蔽全站广告,享受纯净体验
    3D模型【送199币值199元】
    分享全网最新精品3D模型
    名师与资料完善后,价格涨至699元/年