新作|IN.OUT × 山与叁川:以山为魂,黔地风土与都市空间的共生 首
2025-10-07 11:08
The wind drifts in from the mountains and fields of Guizhou, carrying the freshness of the land and the spirit of its landscapes. Traveling across a thousand miles, it finally comes to rest at
Mountrio
, a Guizhou fusion restaurant tucked into Chengdu’s Chongdeili. This is where the palate encounters the flavors of Guizhou, and where a dialogue unfolds between contemporary design and local traditions.
风从黔地山野拂来,裹挟着草木的清新与山川的灵韵,跨越千里,最终在成都崇德里的
山与叁川
贵州融合菜餐厅驻足。这里,是味蕾邂逅黔地风味的驿站,也是以当代语言与黔地风土展开的对话场域。
The wind drifts in from the mountains and fields of Guizhou, carrying the freshness of the land and the spirit of its landscapes. Traveling across a thousand miles, it finally comes to rest at
Mountrio
, a Guizhou fusion restaurant tucked into Chengdu’s Chongdeili. This is where the palate encounters the flavors of Guizhou, and where a dialogue unfolds between contemporary design and local traditions.
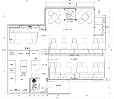
餐厅原始空间为
108
平方米的不规则形态,一棵参天大树扎根其间,成为天然的空间印记。设计团队以
接纳原生、重构风土
为核心理念,摒弃生硬的改造,用现代设计手法将黔地的
山形、山景、山灵
融入空间肌理,在充满烟火气的餐饮场景中,让食客触摸到生命的厚度,感受山野与都市的和谐共振。
The restaurant occupies an irregularly shaped, 108-square-meter site, with a towering tree rooted at its center—an unalterable mark of nature. Guided by the philosophy of
“embracing the native, reconstructing the terroir”
, the design avoids rigid intervention. Instead, it translates Guizhou’s
mountain forms, mountain views, and mountain spirit
into the fabric of the space, allowing guests to feel both the weight of life and the resonance between wilderness and city in a vibrant dining setting.
贵州多山,山地居民
依山而居、因地制宜
的生存智慧,成为设计重构空间的灵感源泉。
Guizhou is a land of mountains, where generations have lived in harmony with the terrain, adapting to its contours. This wisdom became the inspiration for reimagining the space.
原始场地存在室内外高差,设计团队未做简单平整,而是以黔地梯田为原型,将这一高差转化为
山地落差
,通过对室内空间的精准下挖,打造出三个梯度分明的用餐区域。
The site’s natural height difference between indoors and outdoors was not leveled away. Instead, the design draws on the prototype of Guizhou’s terraced fields, transforming the drop into a
“mountain gradient.”
Through precise excavation, three tiered dining areas were created.
这一设计既巧妙解决了场地高差难题,又以
无界分区
的方式,替代了传统硬隔断。错落的层级通过流畅的动线串联,不仅自然引导食客的视线落点,让行走间的视野随坡度缓缓铺展;也在保障各区域隐私性的同时,让每个餐位都能拥有独特的景观视角。
This approach not only resolves the challenge of elevation but also replaces rigid partitions with a concept of
“seamless zoning.”
The staggered levels are connected by fluid circulation, guiding sightlines and creating views that unfold gradually with each step. Privacy is preserved, yet every seat is given its own distinct perspective.
当食客落座,仿佛置身于层叠的黔地梯田之间,
一方水土养一方人
的故事,在空间的起伏中悄然上演。
Seated here, diners feel as if surrounded by Guizhou’s cascading terraces—where the timeless story of
“a land nurturing its people”
quietly unfolds within the rise and fall of the space.
设计以
框景入画
为手法,打破室内外的边界,让自然景致成为空间的
活装饰
The design employs the idea of
“framing views as living paintings,”
dissolving the boundary between indoors and outdoors so that nature itself becomes the restaurant’s most vivid ornament.
餐厅外立面采用实木框架与落地玻璃的复合构造,木质的温润与玻璃的通透碰撞,保留了自然的质朴感的同时,将室外的社区景致、天光云影引入室内,形成
景在窗外,画在室内
的交互效果,空间自然融入社区肌理。
The facade combines a solid wood frame with floor-to-ceiling glass. The warmth of timber meets the clarity of glass, retaining rustic simplicity while inviting in the shifting play of daylight, clouds, and community life beyond. The result is an interplay where
“scenery lies outside the window, while the painting unfolds within.”
针对原始场地的斜坡屋顶,设计团队新开两扇经过精密测算的天窗。白日,阳光透过天窗洒下,在地面与墙面勾勒出流动的光影。
To respond to the site’s sloping roof, two precisely calculated skylights were added. By day, sunlight sketches moving shadows across walls and floors. By night, starlight mingles with soft interior lighting to create tranquility. And in moments of storm—rain, wind, or lightning—the changes of nature become
“temporal décor,”
gifting diners the beauty of impermanence.
夜晚,星光与灯光交织,赋予空间静谧氛围;而风雨雷电之时,天地的变化更成为空间的
时间性装饰
,让食客感受自然的瞬息之美。
By night, starlight mingles with soft interior lighting to create tranquility. And in moments of storm—rain, wind, or lightning—the changes of nature become temporal decoration, gifting diners the beauty of impermanence.
同时,临街侧墙新开三扇错落的横窗,进一步强化
引画入室
的效果,优化就餐时的景观视角,让空间如同会呼吸般,与外界自然呼应。
On the street-facing wall, three staggered horizontal windows were opened to further bring outdoor views inside, enriching the dining experience and allowing the space to breathe in rhythm with the world beyond.
材料的选择则是对
山之特质
的转译。横梁采用老木包裹,粗糙的纹理承载着原生的野趣;现代轻质材料的搭配,又赋予空间灵动的轻盈感。
Material selection continues the dialogue with nature. Beams wrapped in reclaimed timber carry the raw charm of the mountains, while lightweight modern finishes introduce a sense of airiness. Linen screens and soft partitions complement one another, not as opposites but in harmony—like the wildness of the mountain paired with the gentleness of the wind—adding depth and nuance to the design vocabulary.
软隔断与棉麻屏风相互映衬,没有生硬的对立,只有如同
山的狂野
风的温柔
般的和谐对位,为空间增添了层次丰富的
设计语法
Linen screens and soft partitions complement one another, not as opposites but in harmony—like the wildness of the mountain paired with the gentleness of the wind—adding depth and nuance to the design vocabulary.
贵州风物的核心,在于对原始生命力的敬畏与珍视,设计将这份
山灵
具象化为空间的亮点。
At the heart of Guizhou’s culture lies a reverence for primal vitality. The design captures this
mountain spirit
as the defining feature of the space.
保留场地内的原生参天大树,使其成为空间的
精神锚点
。树木穿透楼层,枝叶在
室内舒展,蓬勃的生机与食客的用餐体验共生共长,仿佛让人置身于黔地山林间,与自然零距离接触。
The original tree within the site is preserved as the restaurant’s
“spiritual anchor.”
Rising through the structure, its branches stretch into the interior, where its vitality coexists with the dining experience—placing guests as if within a Guizhou forest, in intimate connection with nature.
采用明档烹饪设计,将
风物转化
的过程变为一场视觉盛宴。食客在品尝山野美味的同时,可直观看到食材从原始状态到佳肴的蜕变,味觉与视觉的双重体验,让黔地风土的魅力全方位渗透。
An open kitchen makes the transformation of raw ingredients into refined dishes a spectacle in itself. Diners enjoy not only the flavors of the mountains but also the visua l journey of produce evolving into cuisine. This dual sensory engagement allows Guizhou’s terroir to be felt in its fullest dimension.
山与叁川,早已超越了餐饮空间的定义,成为一场关于风土、记忆与创新的深度探索。设计团队以
为线索,用当代设计语言搭建起黔地山野与都市生活的桥梁,让每一处细节都在诉说远山的故事,每一次用餐都成为与自然的温柔对话。
Mountrio
transcends the definition of a dining space. It is an exploration of terroir, memory, and innovation. Using the mountain as its narrative thread, the design team builds a bridge between Guizhou’s landscapes and urban life through the language of contemporary design. Every detail tells a story of distant peaks, and every meal becomes a gentle conversation with nature.
平面图
立面图
项目名称
山与叁川MOUNTRIO贵州融合菜
项目地址|中国|成都
项目面积|108㎡
设计年份
2025
06
完工时间
2025
08
设计公司
in.out studio
主创设计
杨宇航(Barry)
设计顾问|晓欧
项目摄影|李阳
项目撰稿|
Edy
杨宇航(
Barry)
in.out studio
创始人 / 工作室主理人
对现代商业空间有高度敏锐嗅觉、视觉和感觉的设计专业劳作者。
IN.OUT -
从空间出发
多维度思考
多角度立场。
理性线条与感性动线结合,从无到有,里外结合。

PintereAI








