新作|丹本设计 • 一抹绿意 自由的家 首
2025-10-11 19:33
家是色彩的画布,每一种色调都在描摹
生活的模样。
“色彩为笔,材质为墨,艺术为魂”,在极简主义的框架下,通过材质、色彩、艺术与自然的多维融合,打造出一个既充满视觉冲击力,又蕴含细腻情感的当代空间,重新定义了“家”的美学边界与艺术可能
 
                                                                                                                     
                                                            01
AESTHETIC FIELD
美学场域
本案
“突破常规的视觉叙事”为核心设计理念,通过强烈的色彩碰撞、雕塑感的建筑构件与艺术化的软装装置,在极简的空间基底上构建出极具张力的当代美学场域。
 
                                                                                                                     
                                                            P. 01
那抹浓郁的绿色螺旋楼梯如空间的艺术雕塑,以流畅的曲线打破建筑的直角秩序,将功能性的交通空间转化为视觉焦点与艺术载体。
吊灯如悬浮的艺术装置,在极简基调中炸裂开热烈的视觉张力,让色彩不再是装饰,而是空间的
“骨骼与灵魂”
 
                                                                                                                     
                                                            P. 02
 
                                                                                                                     
                                                            P. 03
大理石纹理的洗手台,凭借其独特的肌理与质感,为空间注入轻奢精致感。
柜门的壁纸
与远处的绿色元素相呼应,在统一的色调中增添视觉层次与艺术趣味,使整个空间既符合实用需求,又充满独特的设计韵味,成为连接自然与现代生活的温馨角落。
 
                                                                                                                     
                                                            P. 04
 
                                                                                                                     
                                                            P. 05
夹层的休息空间
以墨绿色沙发为视觉核心,其浓郁色彩与独特纹理,既彰显自然生机,又自带艺术张力
 
    
                                                                                                                     
                                                            P. 06
02
DINING ROOM
客餐厅
客厅
以原木的温润与金属的冷冽形成材质张力,搭配浅灰布艺沙发的柔和质感,让空间在
“硬与软”“暖与冷”的对比中,既保持极简风格的利落感,又传递出可触摸的生活温度。
 
    
                                                                                                                     
                                                            P. 07
 
    
                                                                                                                     
                                                            P. 08
 
    
                                                                                                                     
                                                            P. 09
燃烧的火焰为空间带来温暖的视觉与感官体验。艺术画作的点缀,为空间注入个性与创意。
 
    
                                                                                                                     
                                                            P. 10
 
    
                                                                                                                     
                                                            P. 11
 
    
                                                                                                                     
                                                            P. 12
开放式布局让餐厨、起居空间自然串联,定制木柜的弧形设计柔化了空间边界,既实现了功能的高效整合,又营造出
“流动的生活场景”。
从咖啡角的精致陈设到起居区的舒适布局,每一处功能设计都围绕“人的生活习惯”展开,让空间成为“服务于生活,又高于生活”的情感容器。
 
    
                                                                                                                     
                                                            P. 13
 
    
                                                                                                                     
                                                            P. 14
 
    
                                                                                                                     
                                                            P. 15
厨房
大理石中岛台凭借其独特的纹理与冷冽质感,成为空间的视觉核心,既满足实用功能,又为空间注入轻奢精致感。
墙面的特殊木质纹理装饰,与整体木质基调相呼应,增添了空间的艺术层次与自然韵味。蓝色线条吊灯与柜体把手等细节,为空间带来一抹灵动的色彩点缀
 
    
                                                                                                                     
                                                            P. 16
 
    
                                                                                                                     
                                                            P. 17
 
    
                                                                                                                     
                                                            P. 18
 
    
                                                                                                                     
                                                            P. 19
以简洁的浅色调墙面为背景,搭配造型独特的壁灯,通过光影的巧妙运用,为空间增添了层次感与温馨感。
 
    
                                                                                                                     
                                                            P. 20
 
    
                                                                                                                     
                                                            P. 21
• 03
THE BEDROOM
卧 室
儿童房以抽象线条壁纸为视觉基底,波普风格艺术画则以夸张的色彩和结构主义形式,形成视觉冲突与对话,让睡眠空间成为沉浸式艺术体验的延伸。
 
    
                                                                                                                     
                                                            P. 22
 
    
                                                                                                                     
                                                            P. 23
 
    
                                                                                                                     
                                                            P. 24
主卧背景墙的弧形线条与壁灯结合,弱化硬朗的边界,营造柔和的休憩氛围。
 
    
                                                                                                                     
                                                            P. 25
 
    
                                                                                                                     
                                                            P. 26
墨绿色的电视支架与床背则成为点睛之笔
——将自然中的生机绿意抽象为几何形态,既保留自然的治愈感,又赋予空间艺术张力。
 
    
                                                                                                                     
                                                            P. 27
 
    
                                                                                                                     
                                                            P. 28
 
    
                                                                                                                     
                                                            P. 29
• 04
ANALYSIS
DIAGRAM
分析图
 
    
                                                                                                                     
                                                             
    
                                                                                                                     
                                                             
    
                                                                                                                     
                                                             
    
                                                                                                                     
                                                             
    
                                                                                                                     
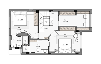
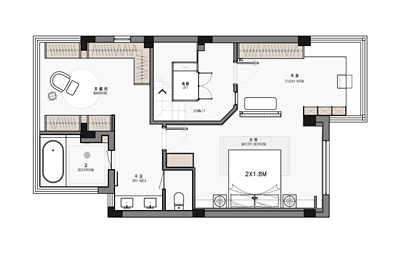
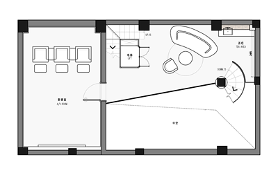
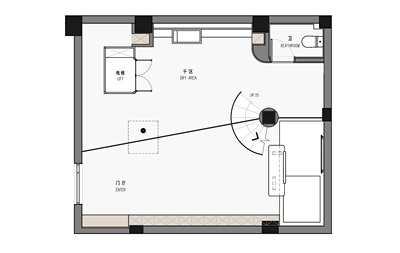
                                                            滑动查看 1F 2F 3F -1F -2F
平面图 P. 30
INFO
- 项目名称 -
玖溪花园
- 设计机构 -
丹本空间设计
- 设计主创 -
金丹
- 设计团队 -
杨威 刘怡
- 项目面积 -
320m²
- 项目地址 -
浙江 安吉
- 项目摄影 -
ingallery摄影
DESIGNER
 
    
                                                                                                                     
                                                            金丹
丹本空间设计创始人 - 设计总监
 
    
                                                                                                                     
                                                            丹本空间设计成立于
2013
年,是一家以“重构空间的情感与美学边界”为核心理念的新锐设计事务所,深耕居住、商业空间设计领域,致力于在功能与艺术的平衡中,为每一个空间赋予独特的灵魂。
团队由兼具国际视野与本土洞察的设计师组成,擅长以材质的对话、色彩的叙事、艺术的渗透为设计语言,打破风格的刻板定义,从居住者的生活习惯、情感需求与审美偏好出发,打造
“既具视觉冲击力,又充满人文温度”的定制化空间。
无论是充满艺术张力的个性居所,还是兼具商业价值与美学表达的公共场域,我们始终坚持
让设计服务于生活,让空间生长出故事
的创作逻辑,在每一个项目中探索设计的更多可能,为客户交付的不仅是一个空间解决方案,更是一种可感知、可共鸣的生活方式提案。









 
             
                       
                                 
                                 
                                                 
                                             
                                         
                                                                                 
                                                     
                                                     
                                                     
                                         
                                         
                                         
                                         
                                         
                                         
                                         
                             
                     
             
                        
                    
 
            
        
