廖丽雪 • 漫 栖 首
2025-10-13 20:22
家,是什么?
是地图上的一个固定坐标,也是情感记忆的温柔容器。
所谓
“家的N次解”,
不过就是把
“我想要的生活状态,植入每一寸空间中”,
正因如此,我们总在用不同的方式
“解”家。
01
LEISURELY
COMFORTABLE
悠闲惬意
空间是居住者生活态度及气质的具象表达。在每一个项目的演绎中,我们都希望让居于此处的业主,能放慢节奏、享受生活。
推开门的那一刻,亮起的暖光开启了居家的序章。每一个行走转身、或落座躺卧,都是生活的温柔注解。
P. 01
P. 02
P. 03
P. 04
这里,以白色基调铺展空间画布,天然纹路的木质缀于其中,显现于墙、柜及地面,将自然的呼吸感带入室内。
光线自外至内,洒落于家具器物的轮廓之上,一动一静中为家居日常镀上了一层柔光。
P. 05
P. 06
P. 07
餐厨区,是入户后的第一帧场景画面。
在与食材的对话中,找到了忙碌生活之外的宁静与满足。美食盛放于圆桌,升腾的热气裹挟着幸福的味道,弥漫于每一个角落。
P. 08
P. 09
P. 10
P. 11
现代生活中,客厅早已不是一个
“单一功能”的空间场域,它承载着个人放松、社交互动,以及对生活的无限遐想。
随手从开放式层架抽出一本书册,窝在沙发上或躺卧在客厅角落的休闲椅上,偷得浮生半日闲。
P. 12
P. 13
P. 14
• 02
ENJOY
THE TIME
ALONE
享受独处
沿着地脚灯指引移步至书房,切换至自由的精神天地。轻掩上门扉,便将喧嚣隔绝在外,转而向内与本真自我坦诚相遇。
P. 15
P. 16
P. 17
一整面墙的开放式书柜,有序收纳着不同类型的书籍,依循类别构筑出可被直观感知的立体知识图谱,抬手便能从熟悉的区域抽出那本承载特定记忆的书册。
P. 18
P. 19
P. 20
书房与主卧相邻而设,保持相对独立性的同时,通过材质与光线的隐性对话达成了微妙平衡。这种人性化的功能分区设计,让思维的流动与身体的休憩自然衔接,衍生出充满温度且适配于居住者生活状态的动线逻辑。
P. 21
• 03
COMFORTABLE
HEALING
舒适治愈
重组后的主卧经过优化升级后,扩大了视觉及使用尺度,生活动线也更为流畅。睡眠区、衣帽间及卫浴间三大功能模块整合于统一场域,建构出一个独立的休憩单元。
P. 22
P. 23
原建筑中的阳台区域,一部分延展为书房外部的多功能区,另一部分则被纳入主卧内部,演变为松弛感的私密角落,柔软的沙发是拥抱疲惫的怀抱,茶几上摆放着当季鲜果,与精致的茶器,共同陪伴着居住者享受当下。
P. 24
P. 25
P. 26
两个孩子的成长空间以
“分合有度”为核心理念,在保障独立卧室私密性的基础上,通过开放式公共动线串联起共享功能模块,入口处精心规划了复合型功能场域:双台盆洗手台、独立卫浴间,并利用过道墙面设计了系统化的收纳区。
在这种“开放共享和私密舒适”的叙事结构中,
既满足了日常起居的高效运转,
在朝夕相处的细节中悄然培育手足间的默契共鸣。
P. 27
宽窄有度的过道,确保了双人并肩通行的舒适感,也为沿途的功能区留出了合理间距。墙面的艺术挂画与嵌于系统柜中的隐藏式光源形成对话关系,让每一次转场都更具韵律美感。
P. 28
睡眠区的设计中,摒弃了繁复装饰的束缚,以留白手法将视觉焦点凝聚于家具质感与色彩,也为休憩时光预留出丰富的想象空间。
P. 29
P. 30
P. 31
P. 32
P. 33
在这个住宅项目中,设计师不仅仅是在追求
“设计感”的外在表达,也是在寻求一种新型生活方式,于有限的尺度中获得最大的自由度和舒适感,让家真正成为容纳生活温度与鲜明个性的专属场域。
• 04
ANALYSIS
DIAGRAM
分析图
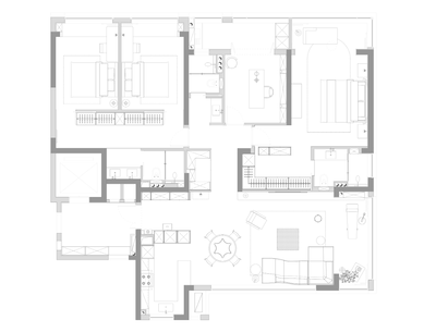
平面图 P. 34
INFO
- 项目名称 -
檀境里
- 设计机构 -
丽雪空间设计
- 全案设计 -
廖丽雪
- 项目面积 -
185m²
- 项目地址 -
浙江温州
- 项目摄影 -
吴昌乐
DESIGNER
廖丽雪
丽雪设计创始人 - 设计总监
40UNDER40
2018-2019
)中国(温州)设计杰出青年
第四届金瓦奖
2018
年度居住空间
十佳
设计
2019
金尺杯国际设计大赛
获住宅空间设计类
铜奖
2019
第九届筑巢奖
获大户型
金奖
2019
金堂奖年度杰出作品
第五届包豪斯奖国际设计大赛
专业组
铜奖
2020
第十三届大金内装设计大赛
公寓组
银奖
2021
木兰奖
住宅空间银奖;
202
第十
届大金内装设计大赛
公寓组
20
20-2021
届筑巢奖
普通
户型
专业提名
2021
金腾奖年度住宅公寓空间设计大奖
提名奖;
40UNDER40
20
23
-20
24
中国
浙江
当代
设计杰出青年
IHIDA
人居空间设计奖
-2023
年度十佳陈设艺术空间;
20
23
十一
届筑巢奖
获大户型
优秀奖;
MAGNUM OPUS

PintereAI








