新作|朱小地:井JING×胡同美术馆 首
2025-10-16 20:12
通过建筑与艺术语言延续历史记忆,
使当代人真切触摸
老城的人文温度与传统智慧。
01 项目定位:
以艺术语言织补老城文脉
在北京老城的肌理深处,景山东路东侧的三眼井胡同,曾是老北京“围井而居”生活记忆的鲜活载体。这里不仅保留着四合院灰砖叠砌的建筑遗存,更承载着“甜水井”滋养下的胡同文化脉络。朱小地工作室以“一砖一瓦”入口装置、“井JING和”胡同美术馆三个空间为载体,通过建筑与艺术语言延续历史记忆,使当代人得以真切触摸老城的人文温度与传统智慧。
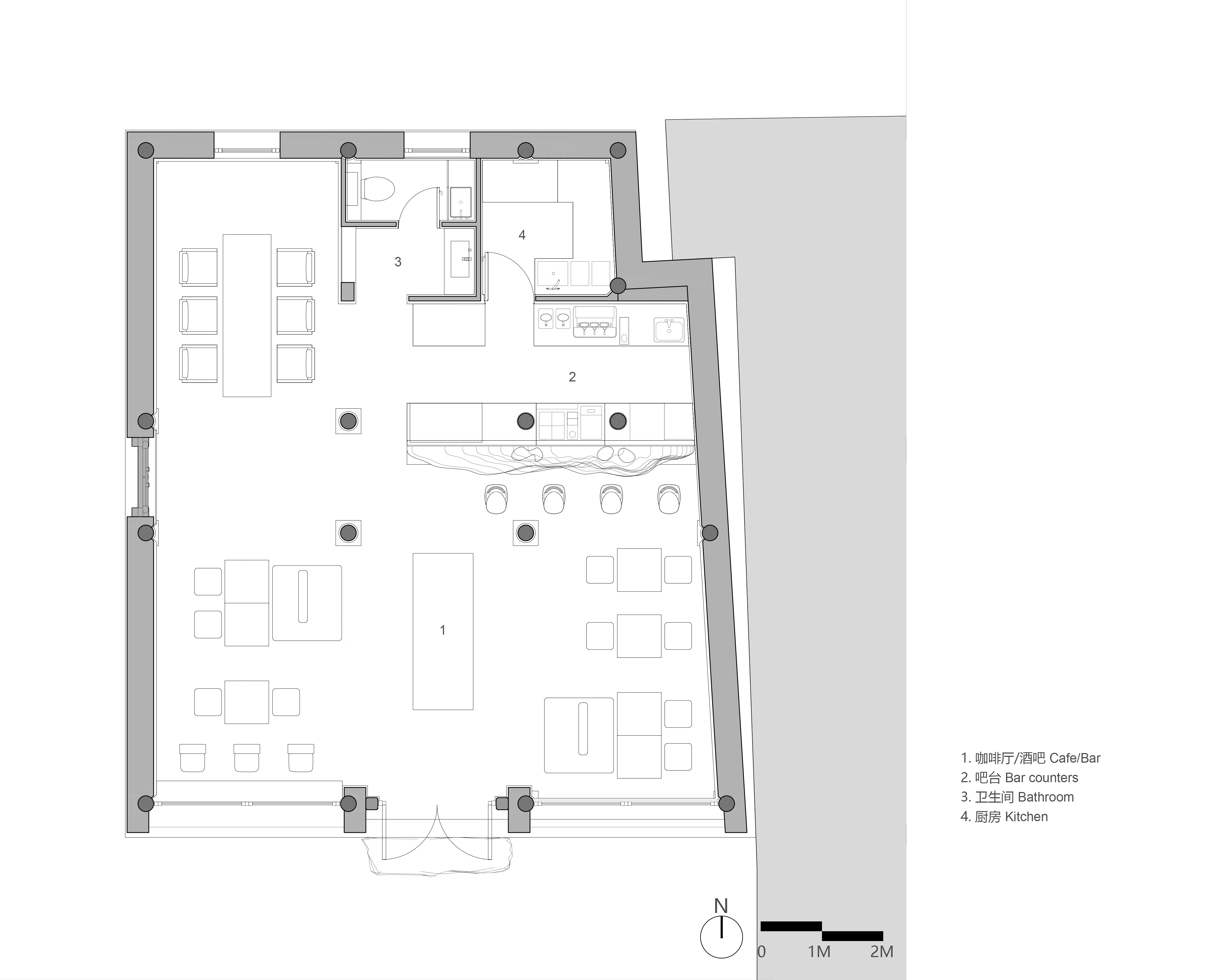
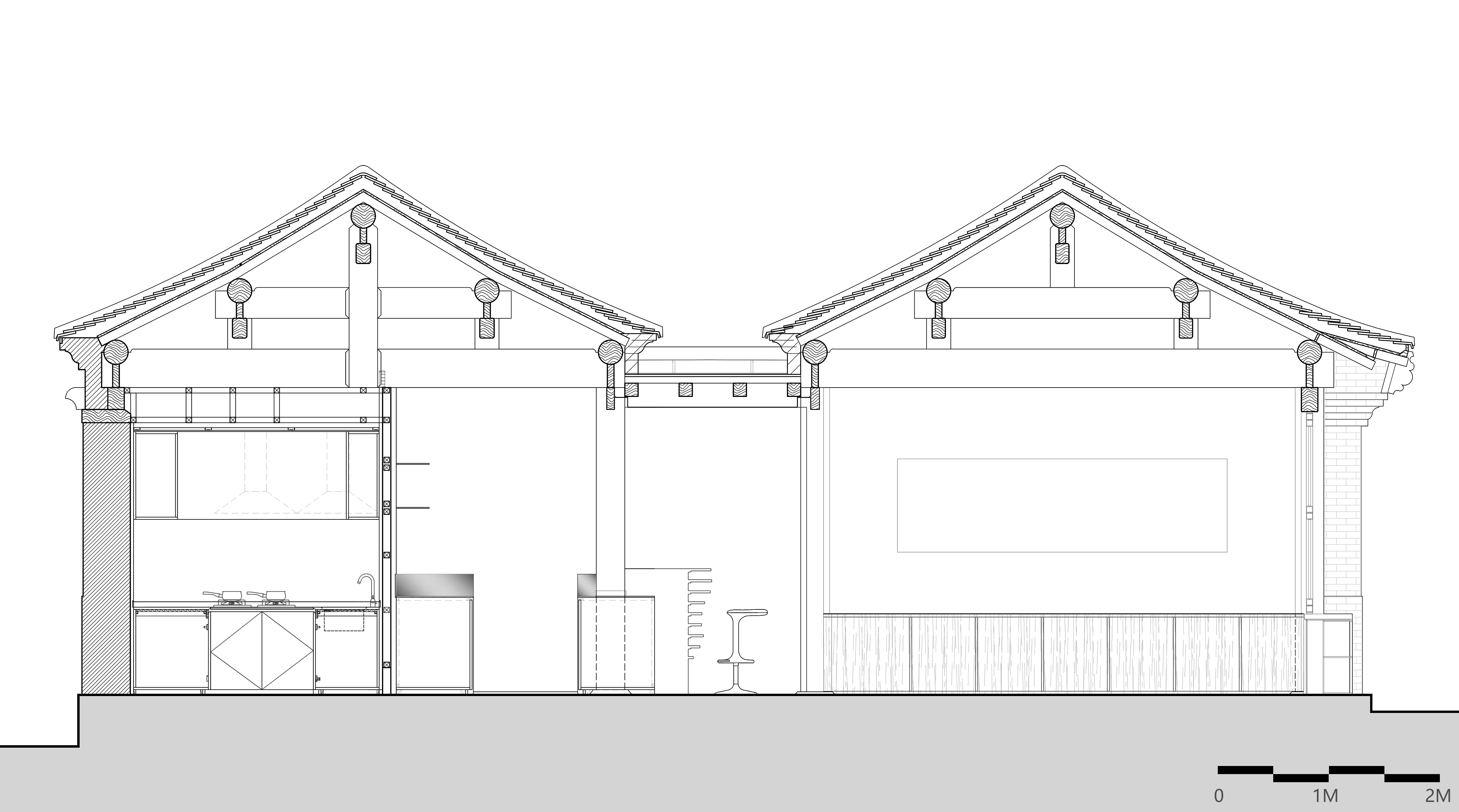
|项目图纸
→ 左右滑动,
查看项目图纸
从左到右依次为:总平面图、平面图、剖面图、剖面图。
02 设计理念:
以空间流动串联时间记忆
项目以“井”文化为核心,采用“微介入 功能补位”策略,在保留胡同肌理的同时巧妙植入新功能,再现“围井取水、共享邻里”的生活场景。通过注入市井烟火气与公益情怀,使百年胡同在延续邻里记忆的同时,焕发新的生命力。
以“流动”为空间线索,通过建筑体量、装置形态与光影变化的互动,营造“记忆可感知、时光可对话”的空间意象。从“一砖一瓦”的入口序曲,到“井 JING”室内外空间的柔和渗透,再到“胡同美术馆”的线性延展,形成连贯而富有节奏的建筑体验序列。将老北京“串胡同、进院落”的传统生活场景,转化为现代人“可进入、可停留、可记忆”的当代场所。
03 设计策略:
艺术视角下的记忆唤醒
“一砖一瓦”:建筑原型的当代表达
“一砖一瓦” 以三眼井胡同西口景观整治与形象提升为切入点,以公共艺术为城市更新植入载体,从胡同与四合院肌理中提炼 “砖”、“瓦” 这两个承载老北京记忆的原型。
“一砖”改造前后
北侧“一砖”的灵感源于传统灰砖墙的砌筑逻辑。设计将其抽象为金属花格结构,巧妙地遮挡了街角的变压器。花格间嵌入已入驻胡同的商家标识,使装置既成为一面灵活的导示墙,不仅在虚实变化间创造出动态的视觉效果,同时成为胡同入口的建筑记忆锚点。
“一瓦”
南侧的“一瓦”同样以巧思取胜,朱小地工作室将废旧混凝土管道依据老北京筒瓦屋面的做法进行拼接,表面饰以彩色瓷片,呼应传统琉璃瓦的绚烂色彩。这些管道错落堆叠,形成可供休憩与嬉戏的趣味设施。孩童穿梭其间,重现“上房揭瓦”的活泼场景,人们倚坐片刻,亦成为胡同画面中自然的一景。即便在南侧建筑的阴影里,瓷片也能折射出明快的光,让沉寂的巷口重获活力。
井JING:传统风貌融入艺术格调
胡同转角的“井JING”空间,其命名则是对“井”文化最细腻的诠释。室内北侧吧台用深色哑光石材与银色波浪金属框架,在柔和灯光映照下,墙面与地面浮现光影肌理,恰似井水中泛起的涟漪,轻轻搅动时光。
南侧0.8米高的悬浮窗台搭配可调节折窗,构成灵动的柔性界面。大幅玻璃窗将自然光均匀引入,巧妙框取胡同的灰墙、绿蔓与行人身影,交织成一幅随时间流动的生动画卷。室内外边界在光影渗透中逐渐消融,空间与胡同日常浑然一体。
夜幕降临时,敞开的折窗连通内外。庭院夜色与绿植光影漫入室内,靠窗设置的木质卡座以温润质感承接这份自然的馈赠。人们安坐其中,既可感受木材的细腻纹理,又能沉浸于庭院夜色,体验“嵌入院落”的独特意境,诠释“人在室中坐,景自院中来”的空间诗意。
悬挂的半透艺术卷帘是空间的灵动之笔。它采用杜邦纸与亚麻纤维混纺材质,轻盈透气,帘面印有朱小地的油画作品,随风轻漾间,色彩随光影晕染,将四季晨昏的景致叠加在一起。卷帘降下时是 “虚实交错的艺术场”,同时为来此消费的人们提供半私密的围和环境。卷帘升起时则释放垂直空间,让各个局部区域瞬间顺畅衔接,形成完整的空间。卷帘升降之时,恰似“井中提水”的生动意象,不仅柔化了建筑的刚性边界,更让艺术成为连接情感的纽带。
屋顶的木构屋架虽然经过打磨翻新,但龟裂纹理依然昭示着胡同文化的底色。这份来自时空的厚重感,与半透卷帘和水墨画作的轻盈交织,仿佛历史重新走进了现实。
吊顶区域的黑色镜面不锈钢与灯光配合,营造出宛如置身水下的戏剧性空间体验。
悬挂的朱小地实验水墨作品,是“井JING”空间内外的点睛之笔。墨色晕染间,老北京的屋檐轮廓与生活温情悄然流动,柔和了建筑与胡同的边界。这些作品如同自胡同肌理中生长而出的“新骨”,既带老墙温度,亦含当代宁静。水墨意境与空间的“日咖夜酒”日常、公益艺术活动相融,最终让“井JING”成为一处安顿情绪、品评生活滋味的精神家园。
胡同美术馆:艺术空间引领社区共生
穿过“一砖一瓦”与“井JING”,便步入名为“胡同美术馆”的开放艺术空间。设计通过拆除违建释放出6-7米宽的公共区域,既保留了胡同原有的亲切尺度,又赋予其广场般的开阔气场。地面采用特制混凝土,维持粗砺自然的质感,管道井与线性排水沟坦率暴露,实用功能与老城质朴美学融为一体。
两侧流动式花架构成空间的核心元素。弧形穿孔板设计不仅增强视觉通透感,更便于雨水快速渗透。阳光透过孔隙在地面洒下斑驳光影,藤蔓沿结构攀爬生长,随四季更迭为空间注入自然生机。
花架形成的半圆座椅复刻“沿井而坐”的传统休憩场景,成为促进社区邻里交往的催化剂。居民在此闲话家常,游客驻足拍照,不同人群在此自然相遇、交融。这一场景既还原了老北京胡同的生活记忆,也书写着新的老城故事。
艺术装置“月亮门”
位于“井 JING”与胡同美术馆之间,朱小地创作的“月亮门”以两扇交错而立的半月形镜面不锈钢构成,构建出一个轻盈而具有凝聚力的视觉焦点。这一装置既界定空间,又连接场所,成为艺术与记忆的交汇点。
设计以现代不锈钢材质,重构传统月亮门的形意。内侧镜面映照老墙斑驳,镌刻时光印记;外侧镜面反射人流穿梭,定格当下场景。新旧影像于此交织成一场无声对话,让胡同的历史与当代浑然相融。
“月亮门”不仅是一处视觉标志,更激发人与空间的互动。人们步入镜面之间,身影与历史光影重叠,仿佛完成一场与老城的轻声对话。未来这里也将融入书画展、非遗市集等活动,使艺术成为日常体验的一部分,持续激活胡同的公共生命力。
如今的三眼井胡同,已不再是一条寻常巷陌,而是化身为一座没有围墙的生活剧场、一个持续生长的文化样本。它悄然印证着,真正的更新不在于覆盖过去,而是让记忆自然流淌进今天的生活。在这里,历史文脉与当代价值彼此滋养,胡同不再是凝固的砖石,而是持续激发热情、容纳故事的生命现场。
项目信息
项目名称:井JING×胡同美术馆
项目地点:北京
项目面积:井JING 114㎡,胡同美术馆 864㎡
设计时间:2024年11月-2025年08月
竣工时间:2025年08月
项目业主:北京首开东成城市更新建设运管有限公司
设计内容:建筑改造及室内设计、景观、装置、标识设计
设计团队:朱小地工作室
主持建筑师:朱小地
机电配合:墨臣建筑设计有限公司
装饰混凝土技术顾问:北京中景橙石科技股份有限公司
照明设计顾问:北京光湖普瑞照明设计有限公司
项目摄影:朱小地、棉布、史云峰、张哲鹏
朱小地
朱小地工作室创始人、主持建筑师
朱小地,毕业于清华大学建筑系,曾任北京市建筑设计研究院党委书记、董事长、总建筑师。2014年成立北京市建筑设计研究院朱小地工作室,2020年创立朱小地工作室;教授级高级工程师,国家一级注册建筑师,享受国务院特殊津贴专家;住建部科技委建筑设计专业委员会副主任委员,住建部节能绿建专业委员会委员,中国美术家协会建筑艺术委员会副主任;先后兼任清华大学双聘教授,中央美术学院、中国科学院大学人居科学学院、北京建筑大学客座教授;《建筑学报》编辑委员会委员,《世界建筑》编辑委员会委员,《建筑创作》编辑委员会委员,《城市空间设计》编辑委员会委员。
理念阐述
传递观念、激发情感的建筑才能最广泛、最强烈地引发观者的体验。为此,朱小地将当代艺术思维引入建筑创作,不断拓展建筑学边界,寻找东西方共享的独特性,创造出极具个人风格的系列作品。
工业文明主导的建筑设计强调空间生产,试图把建筑塑造为兼具实用性和纪念性的永恒物质存在。而随着时代发展,新的科技文明正在变革我们的生活、工作和思维,大众欣赏的角度与广泛传播的途径,使建筑语境带来巨大的变化。城市影像与建筑信息在海量媒介中飞速流动,意义空间成为逐渐脱离物质实体的文本对象。如何让作品被广泛认知、快速印象、清晰阅读、准确理解和深度共情成为当下建筑创作的新议题。
其创作路径可以归结为互动性、观念性、场地性——为了快速建立广泛认知和印象,需要让建筑实体及其多重文本与观者有效互动;借助建筑实体精准传达文化观念、社会意识和创作者个体感悟;深度根植于建筑所在场地的时空唯一性,才能确保观念的精准从而引发深度共情。因此,朱小地工作室对每一个项目都会进行场地、空间、媒介、观念与表达的系统研究。
创作延伸
在设计实践之外,朱小地通过出版物、展览等,表达对建筑、文化、艺术的思考,议题涉及当代艺术、城市公共空间、城市更新、传统建筑研究等多个领域,出版《中国城市空间的公与私》、《朱小地作品集》、《冒险——朱小地建筑装置》、 《图径 · 朱小地当代水墨》 、《天地之间的人文探索 - 朱小地与“又见”剧场》 、《中国传统建筑解析与传承(北京卷)》、《新生于旧-城市有机更新与品牌运营》等多本专著。2022年朱小地创办的法原博物馆开馆,主要展出其个人收藏的传统建筑木构精品,并策划了一系列相关内容的展览,就此系统地展开对传统民间建筑的史学研究。
以建筑师独特的角色和视角出发,朱小地将对建筑学的理解运用在艺术创作之中,举办个人装置展览“庙雨”、水墨实验“容迹”、影像展“无处不从容”;参与群展 “方块字”、“竹钢”、“清明上河图”、““临界”、“时间塔”等;并策展“新生于旧 – 2019北京国际设计周城市更新主题展”。
朱小地工作室由国家一级注册建筑师、教授级高级建筑师朱小地领衔,工作室团队深耕建筑设计领域,始终坚持“回应场地特质、融入文化内核”为设计理念,将当代艺术理念与建筑功能无缝衔接。既彰显专业水准,更传递对文化传承、人与自然共生的深刻思考。业务覆盖公共建筑、城市更新、建筑装置及艺术创作。代表作品:又见五台山剧场、又见敦煌剧场、麦积山游客中心、深圳坪山“软广场”、北京清核INNNG国际人才社区等。

PintereAI








