日式独白 首
2025-10-22 19:36
当今的日式风格私宅设计,延续了极简线条以及质朴材质,更聚焦与自然与禅意的交融,让场所与屋主从精神的层面上更加的契合。把家的颜色做的安静,家才能在这个画布里自由的生长。今天分享的两个案例来自参拾柒号设计与纵远联行设计。
隐喻
| 参拾柒号设计
台北120㎡日式侘寂私宅
这套来自台北的120平私宅设计以日式“侘寂”美学为核心灵感,强调自然、简约和舒适。设计师通过中性色调(米色、原木色、白色)以及自然材质(木材、水泥、亚麻织物)的运用,营造出一种安静且富有层次的氛围,同时融入了现代极简主义的设计语言,让空间兼具现代感与传统韵味。
整个空间的动线设计非常流畅,主要功能区(客厅、餐厅、厨房)采用开放式布局,最大限度地引入自然采光,增强空间通透性。卧室和私密功能区通过隐形门和屏风隔断与公共区域分隔,既保证了私密性,又避免了空间的割裂感。
软装以“少即是多”为原则,家具线条简洁,色彩柔和。大量使用天然材质,如亚麻沙发、原木餐桌椅、藤编灯具等,既呼应了设计主题,又提升了空间质感。装饰品的选择非常克制,多为枝叶、陶瓷花瓶等自然元素,营造出一种禅意的静谧感。
餐厅与厨房采用一体化设计,开放式厨房通过岛台与餐厅相连,增强了互动性。木质餐桌与岛台延伸设计形成视觉上的连贯性。厨房柜体采用原木与水泥质感面板结合,既保证了耐用性,又提升了空间的现代感。餐厅吊灯选用经典的 PH 灯,柔和的光线为用餐区增添了温馨氛围。岛台兼具备餐、轻食吧台功能,下方的抽屉和储物柜提供了充足的收纳空间。
客厅以低矮的沙发和茶几为核心,营造出下沉式的休闲氛围。背景墙采用大面积留白搭配艺术装置(如枝叶插瓶),既提升了视觉焦点,又保持了空间的呼吸感。沙发选用亚麻面料,触感柔软且易打理;茶几和边几采用原木与黑陶结合,质朴且具有设计感。通过间接照明(如踢脚线灯带)和吊灯的组合,营造出温暖且富有层次的光影效果。
卧室延续了整体的简约基调,通过隐形门与公共区域分隔,保证了私密性。床头背景墙采用微水泥材质,搭配木质床架,营造出自然质朴的睡眠氛围。床头区域采用壁灯与间接照明相结合,避免了直射光的干扰,提升了睡眠舒适度。卧室一侧设计了步入式衣帽间,内置灯带和挂杆系统,既实用又美观。
项目名称|
隐域
设计机构|
参拾柒号设计
项目地点|
中国 台北
项目面积|
120㎡
项目时间|
2025年
插画师的家
纵远联行空间设计
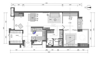
福州70㎡日式独居小户型
一张可以自由创作的生活画布。作为设计师 我们一直相信-家不只是居住的地方更是一个人气质与生活方式的延伸。 当她一位在日本生活10年的插画师、找到我们时我第一反应是这个家需要像她的作品一样有温度、有故事。这个70平福州小户型就将插画家心中的日式的家表现了出来。
屋主是一个在日本呆过十年的插画师,根据业主的空间需求,设计师将原本的三居室的房子,改为一居室且兼顾书房,将原来封闭的厨房空间改造为开放式厨房,更好的和客餐厅融合起来为一体空间把原本卫生间位置改为三分离,同时,置入整体浴室满足屋主对于洗浴的特殊需求在空间材料中柜体部分我们运用大面积,天然木头的纹理来给整个空间增加温润的自然感,墙面我们采用墙顶一体特殊纹理感的艺术漆,更好的衬托空间整体气质和氛围。
原木能带来触觉上的温润感暖白则让空间像被光轻轻包裹。这种配色既不会分散注意力又能成为承载创作的安静,背景就像画布上的底色包容一切色彩的可能。这是一个安静的背景让生活和创作自由生长。
客餐厅里一张沙发一盏暖灯、 一张边几这里没有多余的色彩与物件就像画布上的留白给呼吸和梦境留出足够的空间。沙发安静地落在原木底座上 边几、餐桌、都是温润的木色。
右侧的开放式厨房与客餐厅相邻烹饪与交谈的边界被柔化。
日式马桶间与深浸式整体浴室让她在忙碌的创作之余享受属于自己的沐浴时光。 每一个细节都带着她在日本生活的印记。
隔断采用透光材料与玻璃的透光设计让光线不被截断也不刺眼。 无论在厨房、 客厅还是工作室- 她都能感受到从清晨到傍晚的光影变化。
工作室与主卧之间由一扇推拉门相连。 推开后原木与暖白的基调依旧延续。 没有过多装饰只有一张床、 一盏柔光台灯和一扇落地窗⸺夜晚的微风和清晨的阳光都是温润日常的一部分。
平面布局图
项目名称
建总领筑
设计机构
众远联行设计
完成年份
2025年9月
项目地址
福建 福州
建筑面积
70

PintereAI








