trinity college gateway building
2017-05-03 14:25
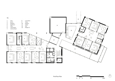
三一学院网关大楼首次提供了三一学院与墨尔本大学之间联系的物理表达。该建筑面积超过4500平方米,满足了三一学院300名居民、50名神学学生和1800名基础研究学生的需要,有25个补习室和毗邻的突破空间、戏剧工作室、学生设施和一个300个座位的礼堂。
这座建筑位于学院校园东角的锡巷上,用开放的、欢迎的方式取代了一条严酷的周边安全围栏,表达了学院与墨尔本大学的历史关系,活跃了原本黑暗而不受欢迎的大学入口。
Firm McIldowie Partners
Type Educational › University
STATUS Built
YEAR 2016
keywordsarchitecture, architecture news, interiors, interior design, portfolio, spec, brands, marketplace, products Trinity College Gateway Building
关键词建筑、建筑新闻、室内设计、组合、规格、品牌、市场、产品三一学院门户楼
三一学院门户楼首次提供了三一学院与墨尔本大学之间联系的物理表达方式。

PintereAI








