house in minami tanabe
2017-04-28 23:05
Minami-Tanabe的房子
在这条狭长的长廊上,现有的排屋
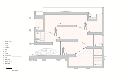
占地3.75米、深16.92米的房产被拆除,以便为新住宅让路。该设计适应于独特的地点,发挥深邃的视线。分段的分层楼层与一层地下室和三层地上楼层重叠,提供多个方向的视觉出口。
地下室有一个多用途的空间,一层是入口,二层是一个混合的起居室-厨房和办公桌空间,三层是卧室和浴室,在那上面有一个屋顶区域。
散落楼梯连接楼层,形成多个上下循环路线,给人一种漫步在房子里的形象,而不是单调的移动。该网站的性质不适合凝视外部景观,所以我们走近内部作为自己的风景。居民能够站立或坐在不同的地点在房子内,享受这一内部景观。这个想法并不是简单地设计一个花时间的地方,而是思考时间。
外面,一条不锈钢链式窗帘挂在门面上。它可以被关闭,轻轻地偏转窥探眼睛或打开提供一种扩张的感觉。虽然人们倾向于将不锈钢窗帘与金属的硬度联系在一起,但当在建筑物大小的尺度上使用时,它们会在风中飘动,传达出令人惊讶的柔软印象。其结果是,在白天保持隐私的同时,它的外观会发光,而在晚上,它会变成由室内照明照亮的闪闪发光的面纱。
项目地点:大阪市,大阪省,日本
完成年份:2016年
主要用途:住宅
场地面积:63.45平方米
建筑面积:41.49平方米
总楼面面积:92.36平方米
楼层:地上3层,地下1层
结构:钢
图片来源:Yano Toshiyuki Yano
Firm Fujiwaramuro Architects
Type Residential › Private House
STATUS Built
YEAR 2016
keywordsarchitecture, architecture news, interiors, interior design, portfolio, spec, brands, marketplace, products House in Minami-Tanabe
关键词建筑,建筑新闻,内饰,室内设计,组合,规格,品牌,市场,米纳米-田边的产品屋。
南田屋
现有的排房子在此狭长
3.75米宽和16.92米深的财产被拆毁,让路给一个新的水库。

PintereAI








