hotel indigo helsinki boulevard

2015-06-22 18:24

                            
英迪戈大道酒店位于赫尔辛基市中心的一条历史悠久的林荫大道上,周围的建筑起源于19世纪至19世纪。其任务是把原来的办公楼改造成符合历史环境的现代化旅馆。
这座建筑经过了大规模的翻修,只有60年代建造的混凝土框架才得以保存。旧的预制混凝土外墙被一座新的轻型建筑墙所取代。林荫大道正面采用多维镀锌。它的立面与它的新绝缘使建筑非常节能,因此酒店已被LEED分类。酒店采用芬兰设计和当地工艺。锌面是由一位73岁的当地白匠EskoKivi建造的,他已经在这个行业工作了50年。
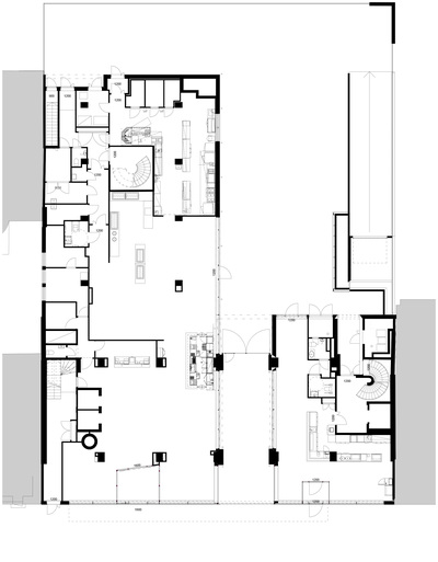
这家旅馆有120间八层以上的房间.酒店大堂位于一楼,楼下设有健身房、桑拿、蒸汽桑拿和会议室。酒店还有自己的车库,有40个停车位。
酒店客房展出了芬兰设计的各种物品,包括Minna Parikka和Iittala玻璃制品的鞋子等。酒店所在的普纳武里大道和街区,也被称为赫尔辛基设计区,拥有无数的商店、精品店和画廊。
室内设计师马库斯·埃斯科拉创造了走廊和120间酒店客房,有三种不同的主题和颜色。琳达·林科和皮塔里·波西的图形设计,独特的壁画,被用于酒店房间。这些主题受到芬兰设计和赫尔辛基造船厂的启发。酒店的色彩方案是光线与明亮的色彩结合在一起的。家具的设计风格是斯堪的纳维亚风格,具有简单、简约和功能的特点。其中一些家具是马库斯·埃斯科拉设计的。酒店客房展出了芬兰设计的各种物品,如Minna Parikka的鞋子和Iittala玻璃制品。
酒店餐厅和酒吧名为Br d,与酒店大堂无缝相连,装饰风格简单,斯堪的纳维亚风格。酒店大堂的气氛很温馨,客厅里有许多书架和不同的座位群。
建筑师:索里尼建筑师
主管建筑师:Sami Horto,Teemu Asikainen
室内设计师:Markus Eskola
用户:Restel有限公司
图片来源:Tuoma Uusheimo,http:/www.uusheimo.com/

                            

                            

                            

                            

                            

                            

                            

                            

                            

                            

                            

                            

                            

                            

                            

                            

                            

                            

                            

                            

                            

                            

                            

                            

                            

                            

                            

                            

                            
Firm Architects Soini&Horto
Type Hospitality + Sport › Hotel
STATUS Built
YEAR 2015
SIZE 25,000 sqft - 100,000 sqft
Photos Tuomas Uusheimo, TA
keywordsarchitecture, architecture news, interiors, interior design, portfolio, spec, brands, marketplace, products  Hotel Indigo Helsinki Boulevard
关键词-建筑、建筑新闻、室内设计、组合、规格、品牌、市场、产品-靛蓝赫尔辛基大道酒店
英迪戈大道酒店位于赫尔辛基市中心的一条历史悠久的林荫大道上,周围的建筑从一开始就有它们的起源。

举报

柒十二凉

什么也没写

1789 作品/ 0 人气

  • 别默默的看了,快登录帮我评论一下吧!:)

    注册 登录

    更多评论

    推荐作品


    相关文章

    下载

    加入到画夹管理

    添加画夹

    提示

    右键保存、高清大图仅支持VIP会员
    名师作品集【专享】
    全网名师最多、更新最快、作品最全
    作品库【无限查阅、一键下载】
    全球最大室内作品库,超33万部
    精品资料【下载】
    全年精品资料更新超1000部
    灵感搜索【原图下载】
    中文搜索全球顶尖案例灵感图
    设计师生活馆【内购价】
    5大电商平台官方合作,专享内购价
    CAD库【模型下载】
    cad单体模型库精准搜索查找下载
    免广告打扰【屏蔽】
    屏蔽全站广告,享受纯净体验
    3D模型【送199币值199元】
    分享全网最新精品3D模型
    名师与资料完善后,价格涨至699元/年