house 1014
2015-03-30 20:33
该地块位于历史悠久的格拉诺勒市中心,被安置在聚会墙之间的城市住宅结构中。可利用的空间狭小而细长,只有6.5米宽,可从两条街道到达。由于现有建筑物破旧不堪,只有保存得相当完好的主立面才能保持一定的遗产价值。
业主的愿望是区分房屋中的两个区域:家庭区,在那里必须进行日常家庭生活;第二个区域,与第一个区域完全独立,功能独立,不明确地用作起居室,或欢迎偶尔的客人,以及组织膳食和聚会。根据规划规则,街道对齐后,沿地块的两个区域的分区自动出现。住宅区位于主要街道上,而地块的西侧被中央花园隔开,成为车辆出入的隔离区。
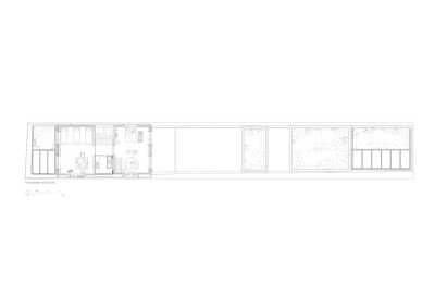
地块的东西方向和通道街道的狭窄使得在整个街道的正面很难获得好的太阳能。这种情况,增加了在底层实现隐私的困难,导致我们从前面的街道线向后移动,在房子的两侧创建了出入露台。这些露台可以增加太阳能,同时创造过渡空间,无论是在街道和房屋之间,还是在室外和室内气候之间。半覆盖和切实可行的空间,可伸缩屋顶,允许捕获能量在冬季以及通风贯穿整个夏天。这样既解决了中央大街的行人入口问题,又解决了车辆从对面进入的问题,避免了通常由这种用途产生的典型的次要和经常被忽视的空间。这些空间的隐私、光线、空间和热舒适的特性使得房子可以从一端到另一端被使用和感知,而没有任何隐藏的或残余的空间。这些生物气候空间成为连接一条街道和另一条街道的一系列区域的第一步,提供了各种各样的条件、特征和属性之间的明显区别。这一系列的空间和热条件创造了一层53米长,总共345平方米,专门用于最频繁和集体使用的房子。它与一条长而连续的走廊同时工作,允许进入位于楼上和地下室的住宅的私人和服务区。
每个房间都经过单独处理,但与下一个房间密切相连,清楚地确定了每个空间的具体用途-同时也是整个空间的一部分。这种方法可以帮助外部空间达到居住空间的质量,从而成为房子的另一个空间。这样,这一主要底层结合了不同的室内房间,较低或更高的屋顶,更长,半外部覆盖和生物气候的房间,以及覆盖和裸露的室外房间。
空间的顺序造成了一些关于什么是内部或外部空间的模糊。同时,户外空间是有意区分的,因此,绿色植物和天然陶瓷的存在有助于在一个没有风景的情节中创造真正的景观印象。该组织基于有序空间,与房屋的结构系统完全相关,因此选择了一个从物质上加强房屋类型的墙体系统。承重墙包含每一个空间,限制了空间之间的大小和比例,使得结构在房子里对体验和感知产生了极大的限制。各种陶瓷材料,不同的皮肤纹理,壁厚和自我调节湿度和热惯量的能力,是识别每一种空间类型的经验。空间是结构,结构配置空间。
不同结构单元之间的关系产生了需要解决的不连续性,成为组织砖砌体和创造后压缩梁的一个机会,在那里实心砖层将得到加固。承重墙在石阶和衬垫之间成条分层,形成密度梯度,从底层的较薄和更实心的部分,到上层较厚和穿孔的部分。不同的结构要求的砖石作品产生不同的节奏和纹理,以实现新的表现。
材料和空间的分布优先考虑房屋的最佳被动行为,首先从生物气候庭院开始,这不仅确保在15至25 C之间的热稳定性,这是一种中间和改善的气候,而且还减少了与这些露台直接相关的空间的能源需求。结构体系和双层砖墙外墙填充了10厘米的隔震木纤维,保证了隔热板与室内热惯量之间的良好关系。
太阳能防护元件悬挂在外墙上,防止热桥与开窗脱节,作为一种二次动力元件,是一种适合多年来更换或更换的环境保护元件。
最后,房子被与地热系统相连的辐射系统改造,以便与地面进行被动的交流。除了辐射地板之外,金属板材-由地面激活的结构-作为大型散热器或辐射表面-有助于在夏季散热。这种与地温相关的高内部惯性使得在季节内能够获得非常稳定的热行为,能量消耗最低。
Firm HARQUITECTES
Type Residential › Private House
STATUS Built
YEAR 2014
Photos ADRIA GOULA SARDA
keywordsarchitecture, architecture news, interiors, interior design, portfolio, spec, brands, marketplace, products House 1014
关键词建筑,建筑新闻,室内设计,组合,规格,品牌,市场,产品屋1014
该地块位于历史悠久的格拉诺勒市中心,被安置在聚会墙之间的城市住宅结构中。可用的空间是.。

PintereAI








