escobar renovation
2016-12-08 13:14
项目说明-Escobar翻修
埃斯科瓦尔酒店坐落在20世纪30年代被称为F.Q.故事的街区,它代表了亚利桑那州凤凰城少有的几个可以称之为历史性的地区之一的特色和风味。602所住宅中的大多数仍然保留着不同的建筑风格,这使得这个地区独一无二。这一地区的住房明显比今天的平均住房小。
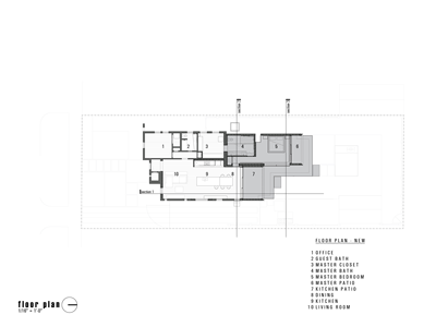
Escobar装修是对现有住宅的翻新,其建筑风格可以归类为英国都铎风格。除了一个小储藏室外,这座房子几乎100年没有被人碰过。因此,家庭空间提供了一个非常不同的需要,表明了那个时代。现有的1100平方英尺(SF)住宅被分隔成许多不同的空间,每个空间彼此封闭。凤凰城的法规和指导方针要求,任何新的外部工作都必须保持这个家园和社区的历史特征。
我们对现有住宅进行翻新和扩建的建议深深植根于一种符合当今时代客户需求的美观和功能的建筑。在公共区域的主空间中,决定使同样的足迹在规划和剖面上都更加膨胀。现有公共区域的所有墙壁被拆除,以促进一个更大的空间,其中客厅,厨房和餐厅成为一个统一的空间。这种空间的统一进一步扩大,利用现有的阁楼空间,允许在客厅上方有一个拱形的区域,同时返回到厨房和餐饮区原来的天花板高度。这个空间进一步向外扩展到后院区域,在那里,内部和外部空间合并为一个空间,由可操作的滑动玻璃门连接。天花板平面上的连续曲折移动可以扩展现有空间可以被视为更大空间的感觉。
主卧室和浴室的增加发生在新建400 SF的建筑中。从根本上讲,与历史家园的联系需要与现有家园的语言进行对话,而不是一个不同时代的传真。在类型上,加法是同情现有的家,同时把自己作为一个明显的新东西,作为一个开放的门窗形式。全高度的玻璃和可操作的玻璃滑动门导致一个封闭的露台在这种形式的挤压。一个悬臂混凝土露台和人行道统一了新的有盖露台与一个类似语言的有盖露台,毗邻就餐和厨房区域。这一新增还包括新的主浴室,在那里,门廊空间扩大到天窗,同时保持隐私。该附加是与标准的22加站立焊缝金属系统与木炭kynar 500完成。面板继续垂直从墙壁表面,成为屋顶表面作为一个统一的重要性,以增加。这个金属山墙的末端的结构进一步地重新概念化了门式刚形的图示。
一个人如何在当前的时间范围内与一个非常不同的时代的语言互动,它能是现代的吗?Escobar的翻新提出了关于语言和图像的问题,在一个1930年代的家庭背景下。一个植根于近100年后的时代的建筑的提出成为了这个项目的挑战。我们的革新努力在现有语言的范围内工作,同时建立一种截然不同的语言。这种对话将家庭的现有语言和当前语言、空间品质结合起来,从而使人们对现代和传统家园的形象有了认识。
项目数据:
建筑师:陈素图工作室,LLC-Patricia Chen Sumap和Thamarit Sumap,项目经理Aaron Bass校长
建筑公司:边缘设计:Build-Joby Dutton,承包人,Justin Novak,项目总监
地点:美国亚利桑那州凤凰城
结构工程:BDA工程师-GregBrickey,P.E.
新建筑面积:400 SF或37.2平方米宜居
翻新建筑面积:600 SF或55.8平方米宜居
项目年:2014-2016年
摄影:温奎斯特摄影-马特·温奎斯特
图形制图:陈素图工作室,有限责任公司
Firm Chen + Suchart Studio LLC
Type Residential › Private House
STATUS Built
YEAR 2016
SIZE 0 sqft - 1000 sqft
BUDGET $100K - 500K
keywords:architecture, architecture news, interiors, interior design, portfolio, spec, brands, marketplace, products Escobar Renovation
关键词:建筑,建筑新闻,室内设计,组合,规格,品牌,市场,产品Escobar翻新
项目说明-Escobar翻修坐落在20世纪30年代被称为F.Q.故事的街区,Escobar的翻新代表了它的性格和味道.

PintereAI








