波兰旅行者的家_20251018

2025-10-18 13:42

                            

                            

                            

                            
Yassen Hristov
它是一座单层住宅,完全位于地面层,坐落在松树林中,隐藏在一个广阔的如帐篷般几何形状的屋顶下。
感谢
BBGK Architekci
对gooood的分享
这座房子是为了成为一个避难所
——一个可以归来的地方,一个保存遥远旅行中纪念品和记忆的空间。

                            

                            
住宅概览
© Yassen Hristov

                            
住宅鸟瞰
© Yassen Hristov
正是带着这样的需求,旅行者们找到了建筑师
Wojciech Kotecki
BBGK Architekci
联合创始人)和建筑师
Katarzyna Mach
。最终,诞生了
Sadowski House
——“属于自己的家”:极具个人特色,略显内向,但又完全向周围环境敞开。它是一座单层住宅,完全位于地面层,坐落在松树林中,隐藏在一个广阔的如帐篷般几何形状的屋顶下。设计的初衷是让住户始终在一起。对世界的好奇心和探索未知的欲望镌刻在我们的游牧基因里。通过发现新地方,我们不仅踏上了跨越全球的旅程,还走向了自我——我们收集的记忆逐渐成为我们身份的一部分。

                            
隐藏在广阔的如帐篷般几何形状的屋顶下
© Yassen Hristov

                            

                            
玻璃结构模糊了室内和室外的界限
© Yassen Hristov

                            
如帐篷般的屋顶
© Yassen Hristov
Sadowskis
夫妇是一对充满激情且经验丰富的旅行者,他们对遥远且有时极端的目的地有着特别的兴趣——沙漠、极地地区和其他偏远的风景。经过多年的探索,他们决定建造一座属于自己的家——一个可以归来的地方,一个庇护所,一个保存记忆和他们精心收集的遥远旅行纪念品的空间。为了实现这个愿景,他们找到了建筑师
Wojciech Kotecki
Katarzyna Mach
。于是,
Sadowski House
应运而生:一个极具个人特色的“属于自己的家”,有些内向却完全向自然环境敞开。

                            
完全打开的立面
© Yassen Hristov

                            

                            
汇聚亲密与凝聚力的场所
© Yassen Hristov
这座房子建在一个森林的地块中,周围是松树林。在他们的旅行中,
Sadowskis
夫妇观察到,在不同且常常极端的环境条件下,人们如何创造出简单而高效的住所。他们对一个共享空间的原型产生了浓厚兴趣,尤其是那种被穹顶庇护的结构:像帐篷、蒙古包或冰屋。也许正是这种亲密与凝聚力——传统群体生活的特征——与他们这对一直共同生活、分享激情与兴趣的夫妇产生了最强烈的共鸣。如今,他们的需求是要创造“他们的地球之地”。

                            
概念设计
© BBGK ARCHITEKCI

                            

                            
简单而高效的场所
© Yassen Hristov
这个理念成为了项目的出发点。一个单层住宅,完全位于地面层,隐藏在一个广阔的帐篷形状屋顶下
——设计目的是让住户始终在一起。
Sadowskis
希望他们的房子能保持与周围大自然的联系,扎根于大地。因此,设计采用了玻璃结构,模糊了室内和室外的界限。在房屋的中心,建筑师设计了一个带有内庭院和可伸缩玻璃屋顶的中庭,使居民能够在屋内同时享受户外的天空。东西两侧有两个半庭院切入房体,将绿意引入室内。根据业主的要求,增加了一个
22
米长的全景滑动窗,将客厅空间打开向森林,并将房屋与花园融为一体。可移动的墙体和开阔的屋顶使光线和空间的交互变得无缝,同时也提供了自然通风——功能类似于帐篷。在空气流动中,风将森林的声音和气息带入室内。

                            

                            
客厅空间向森林打开
© Yassen Hristov

                            

                            
房屋与花园融为一体
© Yassen Hristov

                            
卧室空间
© Yassen Hristov
为了与业主的愿景相一致,建筑、室内设计和花园被视为一个统一的整体。这一切得益于与景观建筑师
Marta Tomasiak
以及室内建筑师
Monika Bronikowska
Adam Bronikowski
的紧密合作。同样重要的是
Sadowskis
夫妇的积极参与,他们从一开始就参与了概念的塑造。因此,项目不仅响应了居民的实际需求,更反映了他们的个性。宽敞、光线充足的室内空间采用自然、温暖的材料——木材、石材、陶瓷、绿植和陶土——而中庭里栽种了热带植物,结合其他元素,展现了热带现代主义的美学。这座位于华沙森林中的安静避世之所将居民带入了南方的氛围。

                            

                            
展现热带现代主义的美学
© Yassen Hristov
未来的房主还在选择材料和家具上发挥了积极作用。一个例子是他们在旅行中发现的
Vals
石英岩,这种石材仅在瑞士
Vals
山谷的一个地方开采。在客厅里,特别为女主人安排了她的三角钢琴。房子的氛围还通过来自旅行者私人收藏的众多物品进一步塑造——画作、雕塑、雕像——这些物品讲述了遥远地方的故事。它们邀请访客进入
Sadowskis
的世界:一个由个人物品构成的圣地,这些物品更具情感意义,而非物质价值。与房主不可分割,这些物品共同创造了一个“进化中的家”:一个设计上随着旅行与归来的平静节奏、纪念品与记忆的收集、以及四面环绕的日益茂盛的绿意一同发展变化的住所。

                            

                            
夜景
© Yassen Hristov
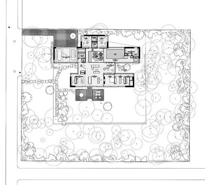
项目图纸

                            
一层平面
© BBGK ARCHITEKCI

                            
屋顶平面
© BBGK ARCHITEKCI

                            
剖面图
© BBGK ARCHITEKCI
版权©www.gooood.cn,欢迎转发,禁止以gooood编辑版本进行任何形式转载

                            

                            

                            

                            

                            

                            

                    

举报

环球设计

什么也没写

16008 作品/ 0 人气

  • 别默默的看了,快登录帮我评论一下吧!:)

    注册 登录

    更多评论

    推荐作品


    相关文章

    下载

    加入到画夹管理

    添加画夹

    提示

    右键保存、高清大图仅支持VIP会员
    名师作品集【专享】
    全网名师最多、更新最快、作品最全
    作品库【无限查阅、一键下载】
    全球最大室内作品库,超33万部
    精品资料【下载】
    全年精品资料更新超1000部
    灵感搜索【原图下载】
    中文搜索全球顶尖案例灵感图
    设计师生活馆【内购价】
    5大电商平台官方合作,专享内购价
    CAD库【模型下载】
    cad单体模型库精准搜索查找下载
    免广告打扰【屏蔽】
    屏蔽全站广告,享受纯净体验
    3D模型【送199币值199元】
    分享全网最新精品3D模型
    名师与资料完善后,价格涨至699元/年