女孩的23㎡小宅,独具品味!_20251021

2025-10-21 19:01

                            
小宅空间
Natalya Design
新作,
在城市的喧嚣中,23㎡的小公寓也能成为宁静祥和的绿洲。一位年轻女子对家的期许,在天然材料、自然色调与精妙设计的融合中,化为了现代且温暖的居住空间。

                            

                            
客厅与工作区的联动设计极具巧思,浅米色沙发搭配同色系编织地毯。靠窗的长形工作区,利用自然光营造舒适办公环境。

                            

                            

                            
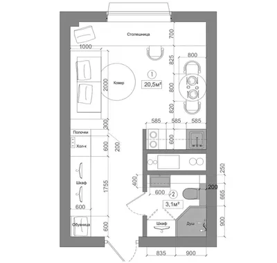
天然木材的纹理、石材的质朴、棉麻的柔软,在米白、浅棕的自然色调中交织,六个功能区域在23㎡的空间里有序铺展。

                            

                            

                            
入口大厅以木质柜体与石质地面的碰撞开启质感序章,兼具储物功能的换鞋凳,让每一次归家都充满仪式感。

                            

                            

                            
卫浴间的设计更是将功能与美观拉满,木元素的加入柔化了空间,洗衣柜与储物柜的组合,在满足收纳的同时,让洗衣动线更加流畅。

                            
空间布局

                            
内容策划 / 米兰设计之旅
未经允许,请勿转载
商务联络
13535331549
欢迎大家将米兰设计之旅设为
‘星标’
公众号
第一时间接收精选内容
近期热文

                            
100㎡,装出杂志感的家,真漂亮!

                            
女生晒出43㎡小家,高级到让人羡慕!

                            
35岁女生,独居50㎡:每天与自己相处,很快乐!

                            
一个很不错的设计号
↓↓↓

                    

举报

环球设计

什么也没写

16004 作品/ 0 人气

  • 别默默的看了,快登录帮我评论一下吧!:)

    注册 登录

    更多评论

    推荐作品


    相关文章

    下载

    加入到画夹管理

    添加画夹

    提示

    右键保存、高清大图仅支持VIP会员
    名师作品集【专享】
    全网名师最多、更新最快、作品最全
    作品库【无限查阅、一键下载】
    全球最大室内作品库,超33万部
    精品资料【下载】
    全年精品资料更新超1000部
    灵感搜索【原图下载】
    中文搜索全球顶尖案例灵感图
    设计师生活馆【内购价】
    5大电商平台官方合作,专享内购价
    CAD库【模型下载】
    cad单体模型库精准搜索查找下载
    免广告打扰【屏蔽】
    屏蔽全站广告,享受纯净体验
    3D模型【送199币值199元】
    分享全网最新精品3D模型
    名师与资料完善后,价格涨至699元/年