案例分析丨磐石之蜕_20251021

2025-10-21 19:01
01
《 废砼再生 》
设计团
队/
香港中文大学结构平衡实验室
位置 /
19届威尼斯建筑双年展中国馆
建成时间
2025年5
项目选址于广东惠州市龙潭镇的铁岗河岸。北宋文豪苏轼一千年前贬谪于惠州,或许也曾在同一条河边来回顾盼,依据着岭南风土,抒写“人生十六乐事”。千年流转,今人依循此十六雅事,沿南昆山、罗浮山之间的环山公路打造十六处驿站,提名为“「环两山建筑艺术计划」”,而我们的项目「步花洄」则是其中一站——铁岗河驿站。
作为世界上最大的混凝土消费国,中国每年产生约 24 亿吨建筑与拆除废料。传统的混凝土再利用方式无法适应当代多变复杂的城市环境。由香港中文大学王帅中教授领导的结构平衡实验室创作的《废砼再生》装置,作为第19届威尼斯国际建筑双年展中国馆的十件作品之一,重新思考了废旧的混凝土“重生”的方式,将其视作可供重构的材料而非碎料,以及未来新建筑框架的组成部分。装置创造性地使用了来自威尼斯本地的废旧混凝土,设想了一个完全由废旧混凝土构成的全新的建造体系与工作流程,其核心在于保留原有构件的结构性能,并借助成熟的工业产品,与业界专业人士合作,来最大化拓展混凝土
的再利用场景。装置来源于威尼斯当地的废旧混凝土,原为守护海堤的线性构件。经过数字建模、结构计算、现场处理之后,最终于展馆内完成最终的调试与安装。
▼装置概览

                            
▼展览现场

                            
当前工程领域的可持续实践,往往注重材料性能与结构属性,而对设计潜力探讨较少:传统的降级再利用(downcycling)逻辑——将混凝土废料粉碎再用作骨料——囿于工程领域的语境下,耗时过长且收益有限,无论是工程抑或设计领域,都正在面临可持续建造领域下的“环境转型”。
▼结构工程与建筑设计发展路径与“环境转型

                            
《废砼再生》则直接回应“废旧混凝土材料可以同时具有美学价值与结构性能”的理念,贯穿设计伊始至终,团队最终采用具有结构挑战性与视觉冲击力和力量感的“悬挑框架”的呈现方
案。装置最核心的是“砼”的旅程,也是各个主体之间相互协调与配合的路程。团队依据设计在威尼斯进行了大量考察,与策展团队沟通,最终在威尼斯主岛对岸的海滨的Fusina社区中找到废料回收公司,获得了数根宝贵的混凝土防波堤构件。进行大量测算、扫描、结构验证后,一方面,团队
与业界合作开展节点设计和生产,同时在现场对废旧混凝土进行精确切割,最终在多方协同下,混凝土构件船运至中国馆进行节点组装。
▼数据测算

                            
装置安装分析

                            
悬挑框架

                            

                            
废砼再生》的节点利用标准化的工业连接件,加快了生产流程,也大幅降低了定制构件
制作
的成本,足
以对整体项目预算及碳足迹进行精确控制。装置采用干式装配,使线性构件无需浇筑即可连接,从而便于拆卸与最终的再利用,并尽量减少现场干扰。团队有意避开了资源消耗更
大,更加笨重的钢套筒连接件,而是转而采用轻质的角钢与钢板——这套策略为混凝土材料保留了其结构完整性和后续再用的结构潜力,又以轻盈灵动的衔接模式,建构出轻重交织,对比鲜明的美学特征。
▼设计与生产流程

                            
▼轻盈灵动的衔接模式

                            
《废砼再生》是基于特定场地的实验,成为工程思维与艺术灵感的衔接媒介,深度探索了可持续与循环建造的可能:它有意刺破单一的,普遍的材料再利用研究的边界,旨在建立一种新的可持续建造模式,兼具工程与美学的表达。装置的搭建过程,是真实建造与工艺流程的在场实验和流程模拟,足以形成有价值的数据参考;也是一场艺术创作的大胆尝试,将废旧混凝土视作创意来源,实现非传统的设计表达。
▼轻质的角钢与钢板

                            

                            
▼装置细部

                            

                            
《废砼再生》装置以超尺度的悬挑配合清晰简洁的节点,完成了设计、结构以及搭建的多重挑战,在威尼斯实现了让混凝土重获新生的新宣言。
▼施工现场

                            

                            

                            

                            
注:“Spolia”源自拉丁语,指从旧建筑或其他来源拆卸下来的装饰材料或构件,用于新的结构或装饰。
▼装置平面落位

                            
▼装置立面

                            

                            
02
《 山下有松Songmont青岛店 》
设计团
队/
大料建筑 / 刘阳,孙欣晔,刘春毅,张末未
置 /
东,青岛
建成时间
2025年1月
去年8月,我们接到了山下有松品牌的空间设计项目,新店选址于万水汇聚的海滨城市青岛。在这个项目中,品牌方希望我们以「过海寻石」为线索,捕捉青岛的城市地质记忆,借由空间追溯品牌“自然、自知”的文化调性,在礁石与海浪之间寻得海纳百川的力量。
▼“过海寻石”

                            
门店位于青岛万象城地下一层,我们认为零售场域更应该是能够进行品牌传递的文化展厅。因此,遵循“向内探寻”的逻辑,为门店塑造三重包裹的空间结构,以剖蚌求珠的方式给空间赋予更多层次,形成“展示——体验——沉浸”的品牌传播动线。
▼三层空间结

                            
商场公区为空间的第一层“表皮”。店铺立面取消常规橱窗,用大面积、无边框的玻璃界面取而代之,使店铺完全向商场打开,弱化店铺与商场公区的内外边界,引导过路消费者的视线,从而最大程度地进行品牌展示并吸引客流,邀请城市脉搏渗入品牌内部生态。
▼向商场完全打开的立面

                            
空间的第二层包裹为陈列与零售空间。核心布局组织出一条明确的U型零售动线,展架依此动线形成一道连续起伏的曲面展示墙体,强烈的方向指向与视觉延续性,使购物行为成为一种有序且充满韵律的空间探索。
▼U型陈列与零售界面

                            
心区域的半围合空间模仿螺壳腔体,在店铺中围合出一个“展厅中的展厅”,使之成为整个空间中的视觉焦点。
▼模仿“螺壳腔体”的核心展厅

                            
▼“螺壳腔体”内部

                            
人可以从四面八方自由进入,但曲面墙体的高度与形状变化会自然引导人们在穿行时调整步态与姿态——或趋步,或侧身,或低头。结构柱也被包裹于此处,隐藏在嵌满贝壳的墙体之后,并成为固定LED屏的基座。结合特定的香氛与立体声场,零售区域的喧嚣会被短暂隔绝,这里更加安静亲密的空间氛围,就如同一个适合自己的包——在这个空间内,我们身体和心理上会得到某种保护。
▼变化的曲面墙体

                            

                            
▼嵌满贝壳的墙体细部

                            
▼安静亲密的展厅氛围

                            
除了空间结构 ,色彩张力、几何轮廓与材质肌理也被一同编织进空间体验,将人造建筑融入自然的神韵里。整个空间采用柔和的暖色基调,暗色调的半围合空间则形成深海洞穴般的视觉留白,吸引人一探究竟。
暖色与
暗调

                            

                            

                            
棱角分明的礁石形展台与圆润流畅的木质展架相互制衡,恰似礁石与海浪的一万次碰撞。嵌满贝壳的墙面粗粝原始,而釉面地坪光滑如镜,映出如水波纹般摇曳的倒影,在材质语言上强调着触感对比。
▼礁石形态展台

                            

                            
这里处处关照着身体本能:原始贝壳与精制材料的肌理博弈、手工温度与工业精度的互相补充、商业开放与精神私域的微妙平衡。
圆润吧台

                            
▼流畅展架

                            
▼嵌入墙体的贝壳

                            

                            
▼商业开放与精神私域

                            
▼材料细部

                            

                            
在海风与浪涌之下,自然能量转化为建筑语言,一种根植于自然符号与感官唤醒的空间体验得以完整呈现。
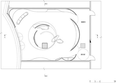
平面图

                            
▼剖面图

                            
03
《 海洋生态修复装置Nereid 》
设计团
队/
扎哈事务所( ZHA)与香港科技园公司(HKSTP)及D-Shape合作
置 /
2025年世界设计大会
建成时间
2025年
扎哈事务所( ZHA)与香港科技园公司(HKSTP)及D-Shape合作,参与2025年世界设计大会。该大会由世界设计组织(WDO)与英国设计委员会联合创立,汇聚全球设计界,共同探讨“面向地球的设计”。ZHA在大会上展示了涵盖海洋生态系统、可再生材料、城市更新与未来出行的可持续创新项目,体现了设计作为推动生态韧性的有效催化剂。
▼Nereid装置概览

                            
在本次大会上展出的Nereid装置是一个数字化建构的栖息地,旨在帮助修复位于香港北大屿山海岸公园保护区的海洋生态系统。该项目由香港科技园公司资助,ZHA基于D-Shape 开发的先进3D打印技术完成。D-Shape是香港科技园内超过2,400家活跃创新科技公司之一。
▼概念图

                            
▼概念展示

                            
ZHA与D-Shape与香港理工大学的海洋生理学与毒理学教授James Fang合作,他的研究致力于促进海洋健康与海鲜可持续发展。Nereid作为一个原型,是ZHA与D-Shape针对因气候变化、城市化加剧、填海以及海洋污染所导致的生物多样性丧失而开发的实际回应,这些因素正在以指数级影响全球沿海环境。该项目将带来修复性与水动力学效益,从而促进海洋生态系统的自然再生。
▼参观者观察装置

                            
ZHA与D-Shape设计的Nereid装置特别针对食物资源的再生,旨在促进浮游植物和滤食性贝类的生长。而这些物种则是海洋生态系统食物链的基础。
▼展览现场

                            

                            

                            
Nereid装置使用pH中性材料,以低碳混凝土浆料打造,对海洋环境安全。借助D-Shape的先进3D打印技术,生成生物仿生的装置形态,重现了天然礁体的纹理与孔隙,以便应用于多样化的沿海区域。其设计专为海洋环境而优化,模拟了海藻森林等底栖系统的几何形态,以再现自然的复杂性。这一计划与香港科技园推动创新并恢复区域海洋栖息地的使命保持一致。Nereid装置将打造再生型海洋基础设施,同时作为有效屏障,防止渔船的海床拖网等有害行为。
▼装置细部

                            
扎哈事务所设计总监Christos Passas表示:“基于对支持本地生态系统需求的深刻理解,这一原型是我们与创新技术伙伴合作所开展的更广泛探索的一部分,旨在研究并推进增强环境可持续性的举措。”D-Shape总监Mario Nuzzolese也表示:“Nereid装置展示了大规模3D打印能够支持海洋生态系统的复育。通过向合作伙伴开放我们的技术,我们将大胆的理念转化为孕育自然与创新的栖息地。”
▼大会现场盛况

                            

                            
图文
编辑|冯仕源
审核|冯仕源
参考链接
https://www.gooood.cn/concrete-spolia-by-s-equilibrium-lab-chinese-university-of-hong-kong-at-the-china-pavilion-of-the-biennale-architettura-2025.htm
https://www.gooood.cn/songmont-qingdao-boutique-shop-by-dl-atelier.htm
https://www.gooood.cn/nereid-marine-ecosystem-restoration-by-zha-hkstp-d-shape.htm

                    

举报

环球设计

什么也没写

16004 作品/ 0 人气

  • 别默默的看了,快登录帮我评论一下吧!:)

    注册 登录

    更多评论

    推荐作品


    相关文章

    下载

    加入到画夹管理

    添加画夹

    提示

    右键保存、高清大图仅支持VIP会员
    名师作品集【专享】
    全网名师最多、更新最快、作品最全
    作品库【无限查阅、一键下载】
    全球最大室内作品库,超33万部
    精品资料【下载】
    全年精品资料更新超1000部
    灵感搜索【原图下载】
    中文搜索全球顶尖案例灵感图
    设计师生活馆【内购价】
    5大电商平台官方合作,专享内购价
    CAD库【模型下载】
    cad单体模型库精准搜索查找下载
    免广告打扰【屏蔽】
    屏蔽全站广告,享受纯净体验
    3D模型【送199币值199元】
    分享全网最新精品3D模型
    名师与资料完善后,价格涨至699元/年