摩根大通全球总部大楼启用,纽约再添新地标_20251023

2025-10-23 18:37
总部大楼
JPMorganChase Global Headquarters
福斯特建筑事务所(Foster   Partners)为美国金融巨头
摩根大通(JPMorgan Chase)
设计哈顿中城的全新总部大楼昨天正式启用了。

                            
该项目位于公园大道 270 号(270 Park Avenue),
是一座
高达 423.1 米
共 60 层
的超高层
建筑,也是纽约市第六高的摩天大楼,可容纳约
1 万名员工

                            
大楼总面积达
23.2 万平
米,由
水力发电
供能,实现了
净零运营排放
。建筑室内空气质量、采光与健康标准均超越当今国际规范,体现了“
为当下打造未来办公场所
”的理念。

                            
设计团队强调的三个设计关键词:
1、可持续(Sustainable)
2、健康(Healthy)
3、连接(Connected)

                            
△建筑模型
Part 01
建筑创新
轻盈
落地
新总部建于原
联合碳化物大厦
旧址上。为满足 1 万名员工的办公需求, Foster   Partners 自 2018 年中标后,针对
地下复杂的地铁结构
狭窄街区空间
,研发了全新的结构体系。

                            

                            
△东立面和南立面
对于如此规模的摩天大楼,传统的做法通常是
深入钻探至高质量岩石
,或者
建设较浅但宽大的深桩基础
以支撑整座塔楼。

                            
然而,由于现场下方正好有两条地铁线路,这些标准方法根本无法实施。因此必须开发
创新的结构解决方案
,既能保证建筑稳固,又能避免干扰地下交通设施的正常运行。

                            
为承受摩天大楼巨大的重量,设计团队沿着地铁剪力墙布置了支撑体系,并在这些剪力墙下方加装桩基础进行加固,从而在不干扰地铁运行的前提下,确保塔楼的稳固性。

                            
建筑底部被
整体
升约 24 米
,由一系列 V 形柱(扇形柱
Fan-shaped Columns)
三角形桁架系统支撑,这些柱子将整座建筑的巨大重量均匀传导至下方经过精心布置的地基上。

                            
柱体节点图

                            

                            

                            
扇形柱与三角支撑系统
,形成轻盈通透的体量感,也让从公园大道到麦迪逊大道的街区视线更加开阔。

                            

                            

                            
从外观上看,塔楼被一组青铜色的斜交网格结构(Diagonal Megaframe)包裹。这种交叉支撑不仅提供侧向稳定性,也成为建筑视觉的主导特征,与玻璃幕墙共同构成纽约天际线中的独特节奏。

                            
整个建筑还采用了
特殊过滤系统
,引入更多外部自然空气流通,从而减少空调能耗。同时,建筑内部安装了
昼夜节律照明系统
,进一步降低了电力消耗,实现了高效的绿色办公环境。

                            
Part 02
空间组织
一座城中之城
室内,首层大堂是整座建筑与城市之间的过渡空间。
双层挑高的空间以青铜金属、浅色石灰华与玻璃为主材,营造出庄重又温暖的氛围。

                            
中庭中央的宽阔楼梯与夹层平台引导人流上行,同时模糊了“工作”与“公共”的边界。自然光透与艺术装置共同塑造了仪式感与开放性并存的“城市客厅”。

                            
室内电梯系统示意图▽

                            
会议区、展览与活动场所等多个功能节点。

                            
螺旋楼梯与连贯的露台让空间层层展开,自然光从顶部倾泻而下,形成明亮而开放的立体视觉感。

                            
室内还
意设计了一根旗杆,旗帜在人工微风的作用下轻轻飘动。既是视觉焦点,也为高挑空间带来动态感。

                            
室内由
Gensler
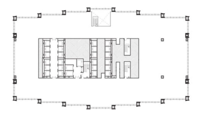
主导设计,以“灵活协作”为核心。空间采用模块化布局,允许桌面、会议区与休息区自由组合,以应对不同团队的需求。团队以“邻里单元”形式组织,形成具有归属感的微型社区。开放式平面与半私密会议区交织,既保持通透感,又保证专注度。

                            
△中层办公区平面图

                            
办公区效果图
穿插其中的咖啡角与双层高休闲区,让工作与交流自然衔接,营造出鼓励创新与社交的办公氛围。

                            
办公区效果图
这座大楼的完工刷新了纽约的天际线,也代表了全球办公建筑向
电气化、绿色化
的未来迈出的重要一步。

                            
//
将我们设为「
星标
」才能第一时间收到推送

                    

举报

环球设计

什么也没写

15995 作品/ 0 人气

  • 别默默的看了,快登录帮我评论一下吧!:)

    注册 登录

    更多评论

    推荐作品


    相关文章

    下载

    加入到画夹管理

    添加画夹

    提示

    右键保存、高清大图仅支持VIP会员
    名师作品集【专享】
    全网名师最多、更新最快、作品最全
    作品库【无限查阅、一键下载】
    全球最大室内作品库,超33万部
    精品资料【下载】
    全年精品资料更新超1000部
    灵感搜索【原图下载】
    中文搜索全球顶尖案例灵感图
    设计师生活馆【内购价】
    5大电商平台官方合作,专享内购价
    CAD库【模型下载】
    cad单体模型库精准搜索查找下载
    免广告打扰【屏蔽】
    屏蔽全站广告,享受纯净体验
    3D模型【送199币值199元】
    分享全网最新精品3D模型
    名师与资料完善后,价格涨至699元/年