青山周平新作 广州阿那亚naive理想国酒店 · 在建方案_20251009

2025-10-09 22:25

                            
△ 建筑立面效果图 ©
B.L.U.E.建筑设计事务所

                            
△ 公区与室内效果图
B.L.U.E.建筑设计事务所
图书品牌naive理想国打造的精品酒店,集合了书店、餐饮、住宿功能为一体

                            
△ 场地环境实景图
B.L.U.E.建筑设计事务所
如同一座层层堆叠的“书山”
作为地块中最靠近岸边的建筑,退台的设计也从视觉上消解了建筑体量,减少压迫感,形成宜人的尺度。晴天时,建筑与水中的倒影相映成趣,增添了一份柔美与灵动,与环境形成对话。

                            

                            
△ 在建中的“书山”建筑
B.L.U.E.建筑设计事务所
立面形象以结构为造型的核心,设计选择将外围结构体系的梁、板、柱直接暴露。建筑外形直接体现内在建造逻辑,去除多余的装饰,真实呈现结构与材料,传达原始本真的设计理念。多边形立柱形成连续柱廊,简洁有序,赋予建筑典雅的雕塑感,同时通透轻盈,模糊室内外边界,最大限度保证建筑平立面的开放自由。

                            
△ 立面效果图 ©B.L.U.E.建筑设计事务所

                            
△ 施工中的建筑立面 ©B.L.U.E.建筑设计事务所
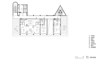
在建筑的首层和三层分别有两个挑高的半室外中庭。一层的架空中庭一面正对观景平台打开,另一面连接商业街区,成为建筑首层的空间枢纽,增强公共属性,消解封闭感,使建筑以开放姿态容纳各方来客。庭院中心设有可围坐的花池,分隔书店与餐厅,同时通过人的活动成为空间过渡与连接,使室内外相互融合。

                            
△ 一层平面图 ©B.L.U.E.建筑设计事务所

                            
△ 咖啡厅架外空入口效果图
©B.L.U.E.建筑设计事务所

                            
△ 大堂入口效果图
©B.L.U.E.建筑设计事务所
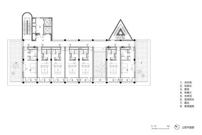
三层中庭为绿植庭院,在整齐排列的客房间引入自然光和大树,让自然景观贯穿建筑。两个挑空庭院不仅增强了建筑空间与人的互动,也打破了立面重复的韵律,形成空间的变奏,穿透的视线赋予建筑立面“呼吸感”。

                            
△ 三层平面图

                            
△ 退台与中庭空间效果图

                            
△ 建筑立面效果图
©B.L.U.E.建筑设计事务所
在设计时,我们充分考虑了在地性的表达。首层屋檐和廊柱让人联想到广州的骑楼。骑楼作为典型的外廊式建筑,具有“上楼下廊”的特点,上层居住,一层商业店铺依托敞开廊道,穿行其中,满是商业活动和生活气息,而骑楼也成为了广州的文化名片。

                            

                            
△ 施工中的廊道空间
©B.L.U.E.建筑设计事务所
项目也使用了相似的空间构成逻辑。首层的对外商业空间,包括酒店大堂、书店、咖啡吧及餐厅都排布在柱廊之下,避风雨、防日晒,为人们提供舒适的穿行和停留空间。立面设计了大量可整体打开的折叠门窗,进一步模糊室内外的界限。

                            
△ 大堂效果图
©B.L.U.E.建筑设计事务所

                            

                            

                            
△ 餐厅效果图
©B.L.U.E.建筑设计事务所

                            
△ 书店效果图
©B.L.U.E.建筑设计事务所
架空走廊上方的楼层在柱间分隔出18间面向河景的观景客房,让客人与河景直接对话,俯瞰对岸和河流景观。层层退后的造型为每间客房创造出屋檐下的阳台,即使在广州炎热的夏天也能获得一丝清凉。柱廊作为建筑的第二层表皮,一定程度遮挡了河对岸视线,为客房提供了足够的隐私。
方案在岭南传统建筑的基因中,创造出当代立面表情,承载了丰富的现代生活活动,以当代手法呼应当地历史文脉。”

                            
△ 大床房效果图

                            
△ 双床房效果图

                            
△ 套房客厅效果图

                            
△ 套房卧室效果图
©B.L.U.E.建筑设计事务所
在材料方面,整个建筑的结构主体采用红色混凝土。清水混凝土一次浇注成型的天然质感呈现出自然纯粹的特质,顺应整体建筑追求真实质朴的设计逻辑和语言,赋予建筑清雅厚重的美感。乱纹红铜板与红色混凝土搭配,运用于室外疏散楼梯和核心筒外立面。金属的精致与混凝土的粗野温润,对比中加强了立面的层次感。明快的色调也让建筑从青山绿水之间跳脱出来,带来活力和愉悦的度假氛围。

                            

                            
△ 施工中的
红色混凝土立面材质
©B.L.U.E.建筑设计事务所

                            
△ 施工中的一层挑空区
©B.L.U.E.建筑设计事务所
设计图纸

                            
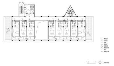
△ 二层平面图 ©B.L.U.E.建筑设计事务所

                            
△ 四层平面图 ©B.L.U.E.建筑设计事务所

                            
△ 屋面层平面图 ©B.L.U.E.建筑设计事务所
完整项目信息
项目名称:广州阿那亚理想国酒店
项目地点:广州市花都区九龙湖度假区
项目类型:酒店
建筑师:青山周平、藤井洋子、刘凌子、王嘉慧、冯蕾、陈璐、杨易欣、张昕翌
业主:中旅集团
建筑面积:2600平方米
设计周期:2022年1月—2024年7月
施工周期:2023年2月—今
主要材料:彩色混凝土、红铜板、肌理涂料
效果图:B.L.U.E.建筑设计事务所
施工摄影:DONG建筑影像
免责提示:(1)文章内图片仅供读者参考。(2)我们所转载的所有文章、图片、音频视频文件等资料版权归版权所有人所有,因非原创文章及图片等内容无法一一和版权者联系,如原作者或编辑认为作品不宜上网供大家浏览,或不应无偿使用,请及时通知我们,以迅速采取适当措施,避免给双方造成不必要的经济损失。(3)本网页如无意中侵犯了媒体或个人的知识产权,请后台私信告之,我们立即予以删除。
- END -

                            
青山周平 精彩回顾
Classic review

                            
扬州广陵 · 有熊酒店

                            
北京JM Cafe白塔寺店

                            
福州烟台山「有熊」民宿酒店

                            
衢州美术馆民宿「澡雪佳隐」

                            
分享全球大师设计 | 发掘中国设计新星

                    

举报

环球设计

什么也没写

16033 作品/ 0 人气

  • 别默默的看了,快登录帮我评论一下吧!:)

    注册 登录

    更多评论

    推荐作品


    相关文章

    下载

    加入到画夹管理

    添加画夹

    提示

    右键保存、高清大图仅支持VIP会员
    名师作品集【专享】
    全网名师最多、更新最快、作品最全
    作品库【无限查阅、一键下载】
    全球最大室内作品库,超33万部
    精品资料【下载】
    全年精品资料更新超1000部
    灵感搜索【原图下载】
    中文搜索全球顶尖案例灵感图
    设计师生活馆【内购价】
    5大电商平台官方合作,专享内购价
    CAD库【模型下载】
    cad单体模型库精准搜索查找下载
    免广告打扰【屏蔽】
    屏蔽全站广告,享受纯净体验
    3D模型【送199币值199元】
    分享全网最新精品3D模型
    名师与资料完善后,价格涨至699元/年